查看完整案例

收藏

下载
△阳光中庭
©Eugeni Pons
△北
立面透视 ©Eugeni Pons
设计单位
Dominique Coulon & associés 项目地点:法国圣迪耶德沃日建成时间:2023 年建筑面积:4,819 平方米本文英文原文由设计单位提供。法国圣迪耶德沃日小镇希望将一个废弃行政场所改造成建筑面积为 4800 平方米的文化中心,该场所的历史可以追溯到小镇重建时期。该文化中心由一个媒体图书馆、一个游客信息中心组成。原来的建筑有个中心庭院,以及毗邻的几栋房子,这里曾是该镇警察局、高等法院和商会的所在地。我们认为,把这些不同的建筑组合一起,提供当地人一个大型的公共社区综合体,是一个不错的想法。
△
建筑生成分析 ©
Dominique Coulon& associés
△
阳光中庭 ©Eugeni Pons
△ 阅览室 ©Eugeni Pons
我们之所以这样做,是因为“La Boussole”作为一个 2023 年建成的文化和游客中心,其作用不应仅限于市民学习和休闲的中心,它还应当被看作“第三场所”,为个人、团体在这里相遇和邂逅创造机会。实际上,建成之后,建筑新的结构和丰富的活动日程确实起到了这样的作用。
△自然光淡淡地投射在混凝土结构上 ©Eugeni Pons
我们决定以新的展览空间把建筑沿 Rue Jean-Jacques Baligan 街的立面封起来。而旧庭院上方将覆以一个红色和黄色的玻璃顶。新的天窗就像一个透雕茶灯架,自然光淡淡地投射在几何形状的混凝土结构上。这种带有镜面的悬浮立方体突显的空间张力效果,正是我们一直追寻的。
△ 东立面一侧透视 ©EugeniPons
△旧庭院上方的玻璃天窗 ©Eugeni Pons。设计通过这样的方式,便形成了一个占地 300 平方米的阳光中庭。在这里,工作和休闲空间无缝连接,创造了一种视觉上和事实上的连续性。视觉上,室内景观和核心区里所有的功能混合在这个两层通高的空间里。事实上,这个新的中心提供了各种类型的公共空间(包括一个展览空间、一个电子游戏中心以及一个种子图书馆)。这些空间分布在地面层和一层。储藏间设置在地下一层。行政办公室全部设置在二层。
△阳光中庭©Eugeni Pons
两组亮红色的大台阶是这个项目的标志。它们交错分布在阅读空间的两侧,强化了这处社交核心空间对人们的吸引力,让他们朝向这里汇聚。
△红色的大台阶©Eugeni Pons
我们在原来庭院下方设置了储藏室,因此可以抬高庭院标高一米,用同一标高来连接现存建筑。另外,曾经停车场所在的南侧位置,现在设计成了一个阅读花园。
△儿童空间©Eugeni Pons
△阅读花园 ©Eugeni Pons 建筑外立面被简化和重新设计风格,来标志圣迪耶德沃日的重建。通过优雅低调的设计,新的空间很好地跟周边环境相融合。
△西立面透视 ©Eugeni Pons<br>这些新的不一样的空间旨在打破原有建筑的单调,它们就是建筑宣言,给予了“La Boussole”新的身份,创造了新的标记,每个标记都以一种特别的形式呈现。<br>当探索这个地方时,你会感到由一系列开放和封闭空间交替产生的一种惊喜之情。这也是为什么我们会选择创造一个迂回的路线,让人们从宽敞的前广场经由一个和缓的坡道进入建筑。
△
入口广场 ©Eugeni Pons
前广场一直延伸了整个西立面,在那可以望见画廊里面,然后由此进入前台接待处。站在前台位置,你视线会被充满自然光的中庭所吸引。位于其右,你可以通过通透的南立面,看见整个阅读花园。
△前台接待空间 ©Eugeni Pons
△从儿童空间可以望见南侧的阅读花园©Eugeni Pons
△入口休息区 ©Eugeni Pons
△充满天光的阅览室 ©Eugeni Pons
△旧书空间 ©Eugeni Pons
△多功能室
©Eugeni Pons
△ 新结构 ©Eugeni Pons
△ 楼梯细节 ©Eugeni Pons
设计图纸 ▽
△总平面图 ©Dominique Coulon&associés
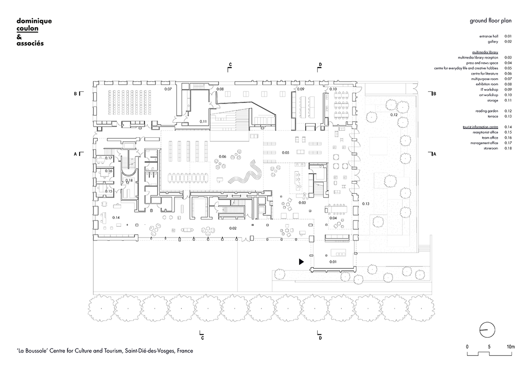
△ 地面层平面图 ©Dominique Coulon & associés
△ 一层平面图©Dominique Coulon
&
associés
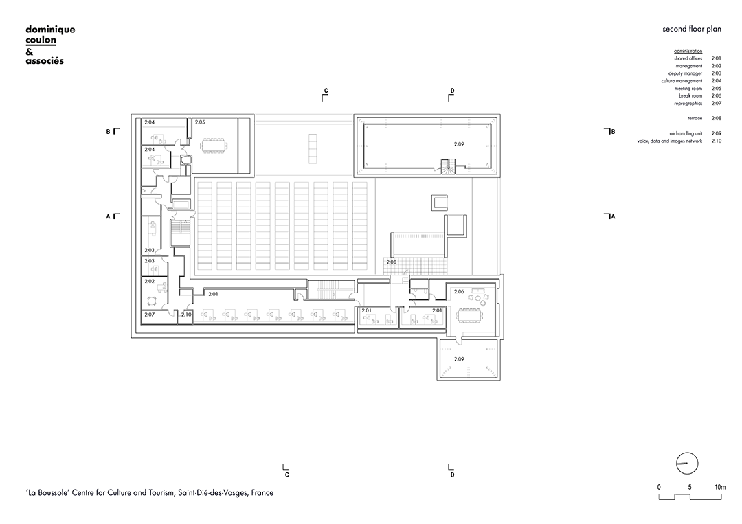
△ 二层平面图©Dominique Coulon & associés
△地下一层平面图©Dominique Coulon&associés
△立面图 1 ©Dominique Coulon&associés
△立面图 2 ©Dominique Coulon & associés
△剖面图 1 ©Dominique Coulon&associés
△剖面图 2 ©Dominique Coulon & associés
完整项目信息
Location: 2 place Jules Ferry, 88100 Saint-Dié-des-Vosges, France
Contracting owner: Communauté d’Agglomération de Saint-Dié-des-Vosges (public authority of the Saint-Dié-des-Vosges urban area)
Architect: Dominique Coulon
Project manager: Dominique Coulon & associés
Project supervision: Steve Letho Duclos, Javier Gigosos Ruipérez
Assistant architects: Hannes Libis, Mathilde Blum, Yannick Signani
Worksite supervision: Javier Gigosos Ruipérez
Engineering consulting firm (Structure): Batiserf Ingénierie
Engineering consulting firm (Electricity): BET Gilbert Jost
Engineering consulting firm (Fluids): Solares Bauen
Economics: E3 Économie
Acoustics: ESP-DB Silence
Landscape gardener: Bruno Kubler
IT security: BET Gilbert Jost
Programme: Multimedia library, exhibition room, multipurpose room, workshops, tourist information centre, reading garden
Floor area: 4,819m2
Cost: €10,533,000 excl. VAT
Schedule:
Competition: December 2016
Examination of project: January 2017 to October 2018
Project execution: April 2019 to November 2022
Delivery: 2024
Firms:
Arches Démolition (demolition and asbestos removal)
ID Verde (gardens)
Batico 88 (general earthworks, structural works, metal framework, elevation restoration)
SAS Coanus (roofing, watertightness, glass roof)
René HELLUY (exterior metalwork)
LAUGEL et RENOUARD (locks, fences, gates)
KAPP Échafaudages (scaffolding)
Plâtriers et Plaquistes de l’Est PPE (plasterwork, indoor suspended ceilings)
HUNSINGER (indoor joinery, furniture)
Francesconi (tiling)
Europ Revêtements (glued-down flooring)
SARL LENOIR F et N (indoor paintwork, cleaning and finishing works)
LTBO Ascenseurs (lifts)
BRUYNZEEL rangements SAS (mobile shelving)
SARL Éric Theisen (plumbing, sanitary installations, wastewater system)
DALKIA (heating, ventilation)
SODEL (electricity)
Photography: Eugeni Pons 编辑
廖兴昊 视觉 饶安林 校对 袁蓓祺
客服
消息
收藏
下载
最近
















































