查看完整案例

收藏

下载
都市里的自然居所
“蝉鸣忽止而风骤停,不得不撒开满怀的青翠榆钱儿串,跳下人高的枝桠蹦到干硬的泥地,从低飞的蜻蜓和遍地的刺蛾里往大路飞奔。无尽的油绿稻田里缀着劳作的人们黑色的剪影,家门口参天的榉树在不远处摇曳生姿。转入水杉林婆娑树阴的时候,泥地已然浸润的松软疏糯。穿过枣树和野场菜圃,跃过石板和高门槛,在狂风携雨呼啸卷到后背之际,用全身力气合上吱呀而粗糙的旧木门板,奋力旋下插销,把自然的风暴挡在门外。终于可以抹一抹沾泥的赤脚,蹭着青树皮的胳膊,在高而小的斜天窗微弱摇曳的光与尘里,在潮湿土腥味的弥漫里,算算全村的开放野外电影的日期,并等待雨停了。”
▽项目概况©龙慧燕
这是九零年苏中乡村一个普通夏天的下午,是农业时代关于原野、生产、居所不自知的深刻印记。在快速迅猛的增量城市化进程中,虽然不得不赞叹于设施提升、材料进步、高效互联和急速扩张的奇观场景,那样自然、平衡、深刻、简练、富有创意和适应性、令人振奋且持续协同创造的田园诗歌日渐消失,而其核心特质对于可持续人居环境的真实作用被忽视低估或谬用约束。矫饰、过度、冗余、片面、僵化的各类美学和方法披着刺激和惊奇的外衣、掩去真实目的轮番登场,强行塑造单调同质、格格不入而周期极短的“塑料玫瑰”。时过境迁,三十余年的城市化进程终于转入结构调整、存量更新和乡村复兴并行的转型阶段。“乡野之家”缅怀于农业生活的浪漫和积极特质,实验在都市生活的技术框架里去除繁琐、重新融入自然人文。
▽平面草图© 一绗建筑工作室
▽入户大门©龙慧燕
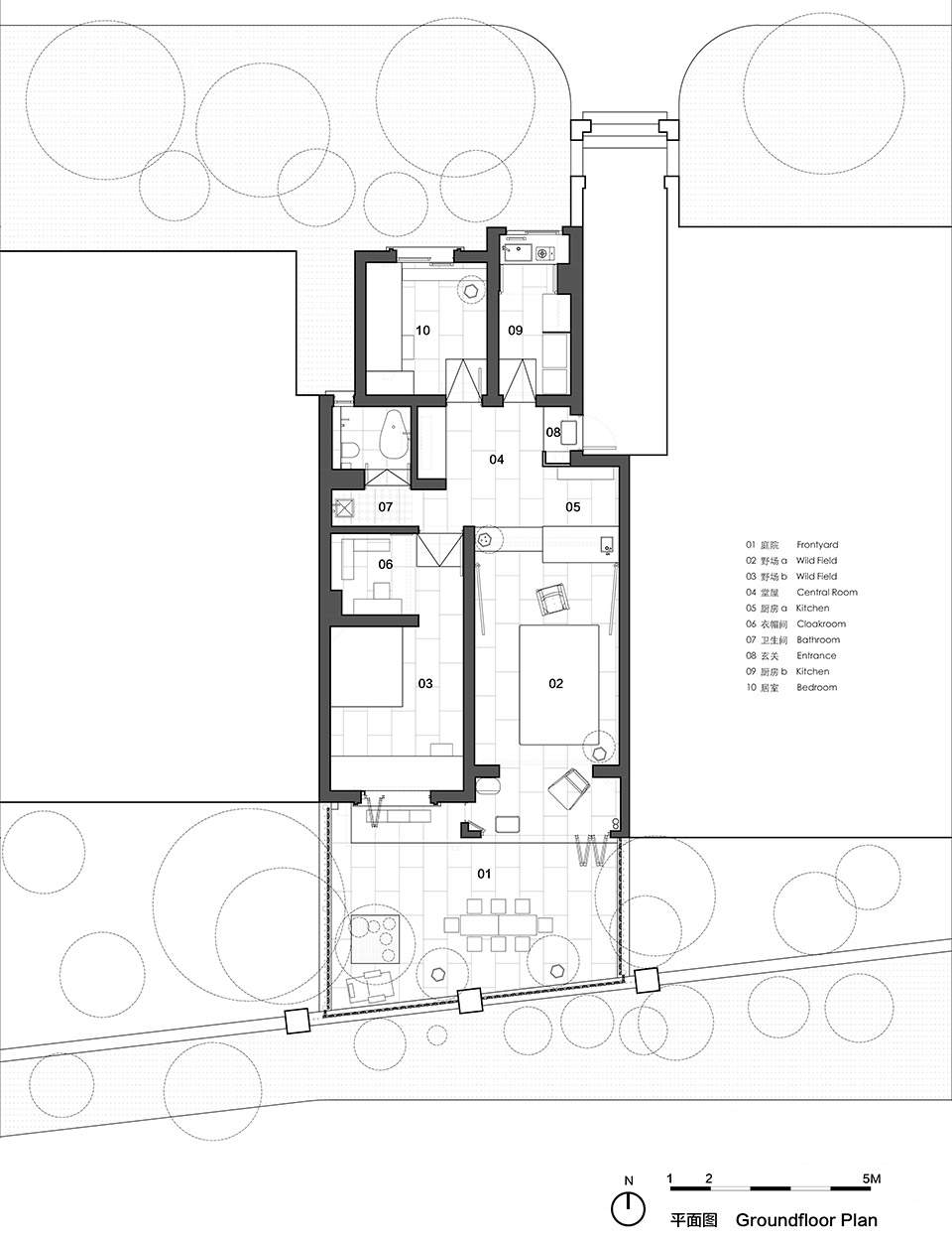
原房屋是2000年典型的联排多层住宅,底层100.2501349㎡,带南向30.2501349㎡小院。通过户内外比例调整、建立过渡空间、不平整地面、明暗调节、尺度徐变和空间适应性设计等方法的交叉运用,改变此类住宅的典型使用方式。
▽多重层次、尺度徐变©龙慧燕
野场
项目首先拆除了原厅堂通向小院的门槛,在原主卧对着院子的窗口内外设置地台踏步并新增雨棚,院落和这两部分整合成为80.2501349㎡洄游自由、无需过度照看的户外场所,我们称之为野场。从比例来看,户内外面积发生了转换。全折叠的系统门窗仅在暴雨等极限天气关闭,日常使用里,除了椅子,地台和地毯外,植被、阳光、风和各类昆虫充满这个场所,自然的生发赋予朴素鲜活而隽永的特质。巨大的空旷鼓励了木工手作、家具刷漆、好物摆拍、长桌野餐、瑜伽健身、檐下听雨、林间阅读、棋牌游戏、衣物晾晒、翻土浇灌、草木修剪、果实收获等一系列活动,两个巨大的升降投影幕带回了露天电影场景,黑色背光板同时作为高效的遮阳调节装置。两个高悬的三角形亚克力灯形同星月。这里也是猫的乐园。每日景象绝不相同,人通过常态化的适应性改造和自然、居所发生深层次的连结融合。这一行为本身吸引了邻里和临界厂区的关注兴趣,虽然隔着围墙和楼层,大家开始讨论建造方法、盆栽经验、邻里生活和事务,家重新成为信心、给养和认同的居所,而非隔离之地和形式的囚徒。
▽野场空间改造示意图©一绗建筑工作室
▽全开放“野场”©龙慧燕
工艺方面,室内外通铺米黄色哑光地砖,墙地满涂浅咖色无机灰泥,老化的院墙瓷砖经同色保护漆重新覆盖,铁锈栏杆保持同样高度由土黄色聚氨酯空心砖加固。刺激复杂的形式色彩让渡与简单温和的氛围,以匹配松弛自然的状态。
▽院落概览©龙慧燕
堂屋
原入门区域的方形餐厅被抬高18公分,并向五个方向伸出五个触手,建立由户外向户内转换过渡的序列。平面上呈风车形,共计25.2501349㎡,我们称之为堂屋,与野场以宏大的浅咖色烤漆偏轴旋转门相隔。由野场进入堂屋再到其他居室都有踏步和斜坡,整个地面并不平整,所以这一过渡空间序列更多由脚底压力的转变得以感知而非视觉。没有单纯的交通空间,伸向野场的地方组合了水泥浇筑的原色中岛台和开放餐边柜,是日常的餐桌,可以完成简单的西餐制作,能为户外活动提供酒水咖啡,也是工作台和讨论桌。斜坡则并置了一组深古铜色烤漆铁艺开放衣架和梳妆台,也适合安静的单人工作。伸向厕所的部分放置了沙漠色透明树脂台盆,伸向厨房的区域密集排布了冰箱洗碗洗衣烘干等设施,伸向入户门的位置是鞋柜与无线设备,而中心区域的地台与壁龛宜于读书喝茶和小憩。中岛台常被用作高凳,台阶用作观影和高难度俯卧撑,坡道是猫的跑酷场,充满野趣。堂屋面积不大,层次多功能繁复,日常里经常出现类似电影分镜和大景深的场景,一个实际被压缩且分区的空间,在心理和使用上反倒被放大和延伸了。
▽堂屋空间改造示意图©一绗建筑工作室
▽台阶与中岛©龙慧燕
▽风车形平面©龙慧燕
虽然并没有作为设计的目标,但有一个有趣的结果随着不平整地面和过渡空间的建立呈现。野场区域门窗洞口均达到2.4m高且宽度很大,堂屋部分的门洞仅有1.8m高且宽度较小,尺度随进落徐徐变化。从院落北望视线略微抬高,透视效果被放大,空间深且远且暗。而从堂屋回望需要略微俯瞰,透视效果被抵消,庭院光亮和绿意如画在眼前。种种非常规尺度和视觉的偏差调动对于变化的细微感官,加深空间印象。
▽斜坡©龙慧燕
▽开放衣架©龙慧燕
▽地台©龙慧燕
居室
其余的25.2501349㎡包含厕所、中式厨房和一间卧室,是真实意义上的私密居室。厕所和中式厨房极小极简,而卧室将床铺、储藏柜、空调、灯、窗帘、电视投影幕整合成一组高低错落的家具。所有标高皆可坐卧,所有方向都可以投影,绝大部分的野餐桌椅、乐器音响、被褥软垫和生活杂物都被收纳在此,为野场和厅堂的拓展使用和变化提供可能。
▽居室©龙慧燕
明暗调节
如果我们回顾起自然生活里令人记忆深刻的瞬间,必然有与光影相关的时刻。炎炎大日从密林缝隙投入的斑驳,皎白月色在原野洒落的清辉,萤火虫在暗中起舞,磷火于墓间游荡。黑影幢幢里远处的暖色盏灯,风雨飘摇中竹叶在天窗的剪影,蜜蜂钻透的砖墙流入的点点昏黄,破旧椽子和门缝里削入的如刀光亮,光和影相生相伴,日和夜交替轮转。
乡野之家寻求这样均衡的明暗氛围。野场日间光照充足,光影斑驳变化多端,两块落地投影幕用以调节光照。入夜时整体昏暗,仅有两盏星星一样高悬的三角锥形led灯渲染80.2501349㎡的大空间,明确标志夜晚的到来,这也是全屋唯一有直接照明的地方。堂屋和居室进深较深,白天光照柔和,可以通过门扇的关闭达到全暗的效果。夜间所有的灯光均经过灰泥遮罩石膏板或者浅咖色喷涂铝板过滤和导向,模拟自然光从各个角度、高度以各种形式渗入屋内的场景,单体灯光照功率不高但数量众多,可以随需要改变。从院落看来,穿过深沉的黑暗的野场,乡野之家在不远处灯火摇曳。
▽天光与月灯©龙慧燕
适应性调整
让我们暂且抛开关于从农业生活到如今都市商品房得与失的冗长考据与讨论,就可持续住宅所需具备的若干特质作如下归纳:居所形式应调整至恰如其分符合真实需求,而非强制推销千人一面的商品属性亦或浮于表面毫无实指的笼统风格。唯其确认基本身份,多样性得以保存,长久活力才具备可能。其愿景绝不浮夸,结构力求简练,避免失衡的目的和冗余的修饰妨害自然生发的过程。在基本结构里,务必保留具备“野场“属性的未定义场所,不仅仅是通过日常生活和居所发生高度连结和深刻体验,更应具备激发创意、持续演变的动力和可行性。可持续的居所不在建造之初得以完成,而在日复一日的适应性调整里趋于完善,最终获得相对长久而接近永恒的的周期。
▽自然的灯光©龙慧燕
▽盥洗室©龙慧燕
乡野之家的创造,才刚刚开始。
▽平面图© 一绗建筑工作室
▽剖面图© 一绗建筑工作室
项目名称:乡野之家
项目类型:建筑
设计方: 上海一绗建筑工作室
项目设计:2023
完成年份:2024
设计团队:姚文轩 龙慧燕
项目地址:上海市控江路1169
建筑面积:103.2501349㎡
摄影版权:龙慧燕
材料: 瓷砖 灰泥 铝合金 木饰面板 玻璃
客服
消息
收藏
下载
最近







































