查看完整案例

收藏

下载

翻译
Architects:MacKayCurtis
Area:133m²
Year:2022
Photographs:Simon Wilson
Lead Architects:MacKayCurtis
Structural Engineers:Dunning Thornton Consultants
General Constractor:Sheffield Construction
Design Team:Jo MacKay
Technical Team:Sam Curtis
Country:New Zealand
Text description provided by the architects. The owners' brief for this holiday home was simple: maximize the sun, the views, and the outdoor living. They wanted large outdoor living areas to spend their time relaxing outside, not inside. The house is a simple response to this brief; providing a delicate intervention into the landscape with a small footprint, to allow the owners to connect with the surrounding landscape without dominating it, whilst blurring the line between inside and outside.
The steep, elevated site provides sweeping views over Mawhitipana Bay below and is covered in mature protected Pōhutukawa trees, which form a large dominant green canopy. A long, timber deck, spanning the entire width of the narrow site, is delicately inserted between the Pōhutukawa trees to avoid their roots, while being cradled by their canopies. The deck is north-facing and takes advantage of the views and the sun while providing large outdoor living areas. The timber box for sleeping and bathing is placed above the deck, and the area below is enclosed with glass to create a semi-outdoor living space on the deck.
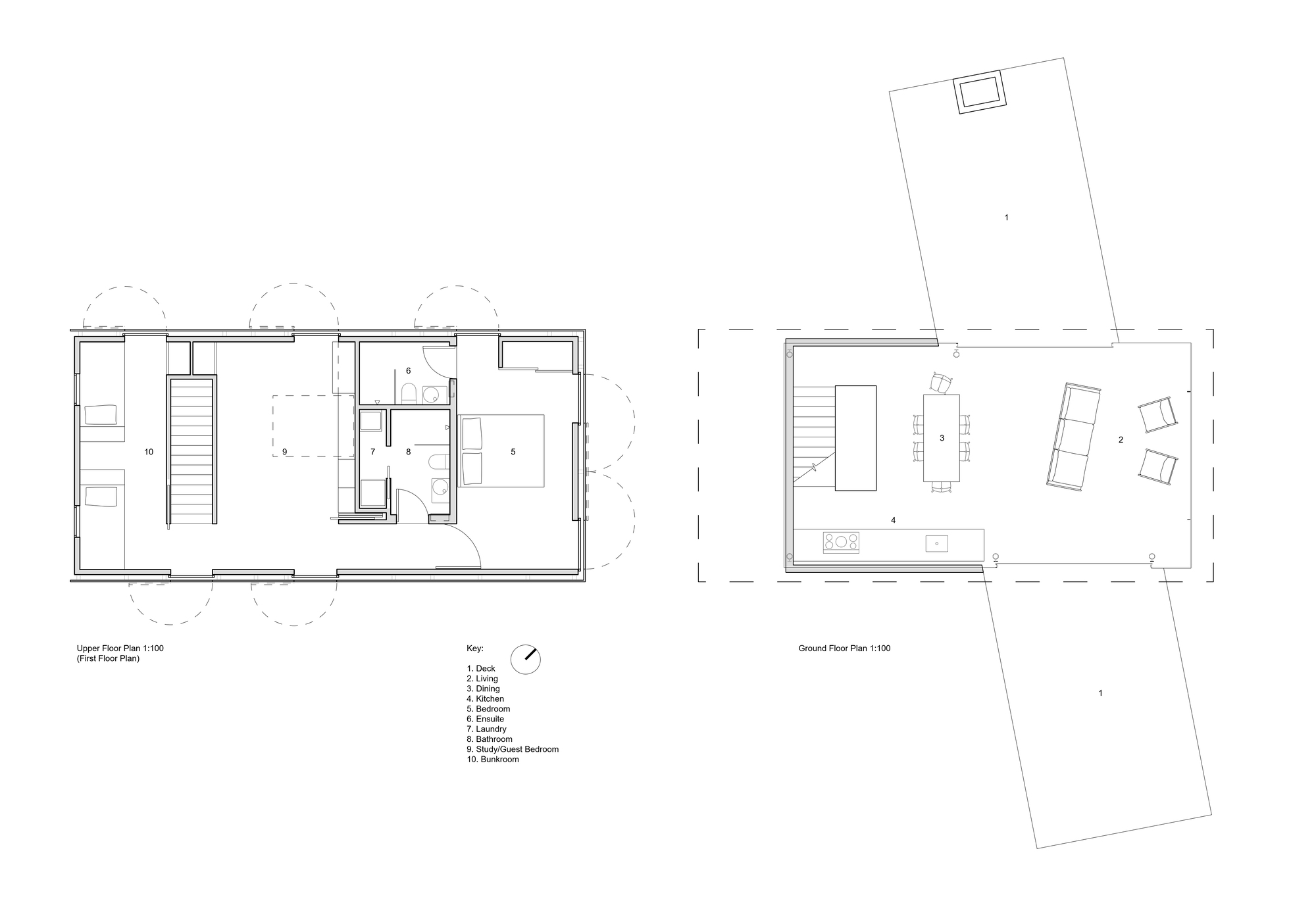
The result: a simple retreat comprising of a long deck for living, over which hovers a timber box for sleeping.Splitting the required floor area over two levels provides a logical functional split while maintaining a relatively small building footprint and a modest mass that touches the existing ground lightly.
The ground floor is glazed on all four sides and comprises a kitchen, living, and dining areas. The rear of the ground floor is partially embedded into the ground to allow the required kitchen cabinetry to retreat; so, with sliding glass doors drawn back, this area can expand uninterrupted to include the decks running from east to west, providing the owners with a flexible range of options for being inside, outside, or somewhere in between.
The upper floor timber box is held aloft on six steel columns and is clad in a cedar rainscreen with integrated timber shutters. The timber shutters provide the upper floor spaces a sense of enclosure, in stark contrast to the transparency of the ground floor spaces below. The large timber shutters hide the full-height windows that slide into a hidden cavity behind the cedar rainscreen. This allows the shutters to be closed while the windows behind are open to allow the sounds of bird calls and waves on the beach below to filter through.
Project gallery
客服
消息
收藏
下载
最近





















