查看完整案例

收藏

下载
项目名称:波兰Zsoms体育馆位置:波兰
照片:马尔辛·布拉塔涅茨·朱利乌斯·索科夫斯基
这个手势既有力又微妙。我们没有进行预期的庭院开发,而是提议拆除旧的太小的大厅和多年来增加的建筑。在他们的地方建造一个新的大厅,保护并明确关闭了学校、操场和街道之间的庭院。一个强大的垂直块,建立在一个已经存在的结构中,被它吸收。立面不是空间的硬性划分,它与周围环境相互作用-庭院通过高高的玻璃窗穿透大厅,木质立面成为露台,球场爬上立面,更衣室的屋顶成为学校游戏的礼堂,并提供了观看大厅内部的机会。大厅、水平布局和带新电梯的楼梯允许从学校进入游泳池,并通往以前难以到达的楼层。这个动作由一个眼神游戏来补充。
大厅地板俯瞰游泳池的水和楼上健身房的运动,攀岩墙俯瞰竞技场观众。背景是柔和的,以适应学校丰富多彩和自发的生活。墙壁和地板的原始混凝土、轻质天然木材和钢材占主导地位。精心调配的颜色有助于连接空间。标志,匾额,油漆栏杆和选定的墙壁,指引你到一些地方,大厅的深蓝色地板流向游泳池的水。在习惯领域也保持连续性。之前的活动在新空间中找到了更舒适的位置。一个大礼堂取代了小礼堂,培训室从附属建筑搬进了新大楼,健身室可能会变暗,成为学校戏剧俱乐部的房间。建在现有结构中的新大厅成为连接组织。
波兰Zsoms体育馆外部实景图
波兰Zsoms体育馆外部实景图
波兰Zsoms体育馆外部实景图
波兰Zsoms体育馆外部实景图
波兰Zsoms体育馆外部实景图
波兰Zsoms体育馆外部实景图
波兰Zsoms体育馆内部实景图
波兰Zsoms体育馆内部实景图
波兰Zsoms体育馆内部实景图
波兰Zsoms体育馆内部实景图
波兰Zsoms体育馆内部实景图
波兰Zsoms体育馆内部实景图
波兰Zsoms体育馆内部实景图
波兰Zsoms体育馆内部实景图
波兰Zsoms体育馆内部实景图
波兰Zsoms体育馆内部实景图
波兰Zsoms体育馆内部实景图
波兰Zsoms体育馆内部实景图
波兰Zsoms体育馆内部实景图
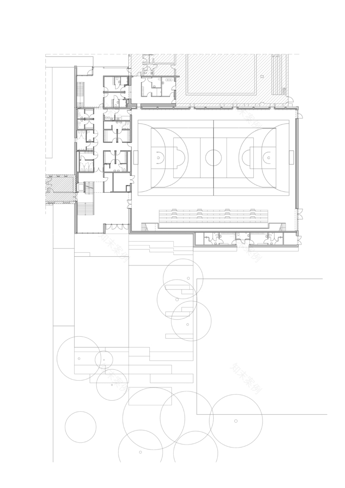
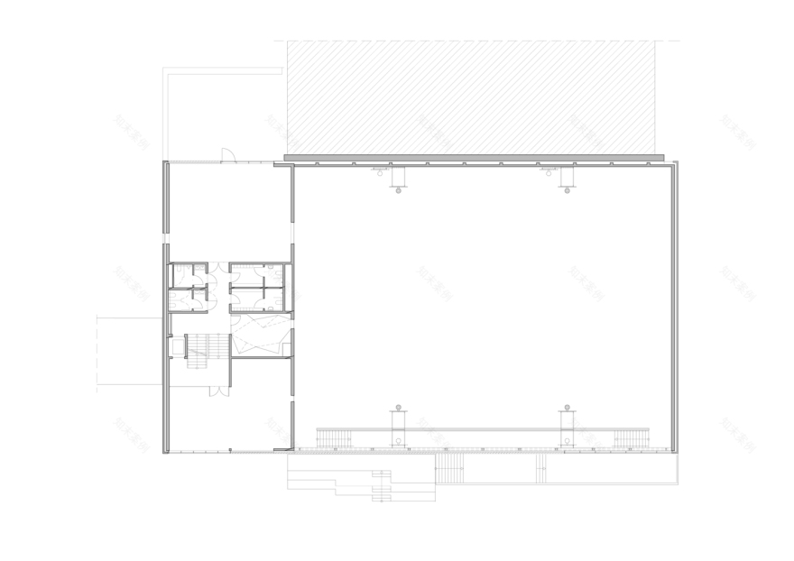
波兰Zsoms体育馆平面图
波兰Zsoms体育馆平面图
波兰Zsoms体育馆平面图
波兰Zsoms体育馆剖面图
波兰Zsoms体育馆剖面图
波兰Zsoms体育馆剖面图
客服
消息
收藏
下载
最近




























