查看完整案例

收藏

下载
设计师夫妇倪伟锋与项舒倩,喜欢一切简单纯粹的事物,他们的作品里,总是富有力量与深意。对于“家”的规划,他们追求精神世界的绝对纯洁与干净,试图寻找一方能让人静下来的居所,且能承载日常迸发的有趣灵感。
△在嘈杂的市中心打造一番静谧天地
本案位于温州市中心,紧邻浙江第一高楼——世贸大厦,拥有优越的地理位置与绝佳视野,但也同样要面对比较喧闹的自然环境。对于NX夫妇来说,如何做到“出则繁华,入则宁静”是该项目改造中要面对的最重要的一个命题。
△项目视频
关于安静的两道课题一是空间本身的绝对安静二是人居于空间内的心静
对于静的理解,NX夫妇有自己的坚持,“静”一方面是空间的绝对安静,另一方面他们也希望能够得到心灵上真正的安静。对于前者,他们通过挑选隔音的窗户,以及全屋系统的隔音处理,可以达到相对寂静的室内环境;而关于后者,灵魂上的安静,源自于设计师对空间的理解,源自于与自然的相对平衡,这也引申到了本案的第二大主题——“自然”。
一个好的设计可以感受到自然的流转
设计师将空间大面积敞开,以落地窗的形式迎接阳光的照射,随着每天的日升日落,阳光以不同的角度照进室内,可以在空间的各个区域感受到来自阳光的转变,仿佛是光围着空间在游走,不断展示着一日之中的无穷变幻。
△光影流动
人虽居于室内,却能感受到来自户外的光影流转,感受清晨拂晓的微光,感受午间恣意而热烈的暖阳,以及属于傍晚的温柔黄昏。
△蛋壳灯|KARMAN,寓意新生
光透过不同的结构、材质、肌理……留下不同的光影构造,这是设计师玄妙的手笔,对空间本身不加修饰,而是通过光与影,为丰富的结构描红,不动声色地展示空间最本身的魅力——结构之美。
△结构在光下成影
将露台营造成空中花园,以敞开的形式与外界联通,置身其间时,位于地面的城市公园与空中的人工花园,仿佛融于一体,形成立体的自然联动,天空与地面的界限逐渐模糊。
家之于人应是以体验感为先
我们无法去定义一个空间是否成功,但对于家居空间来说,适配主人日常生活,且能带动生活习惯的正向发展,是无可非议的。
△以餐厅为中心,联通客厅、厨房、吧台区、阳台、多功能房以及玄关和楼梯间
为了营造一个明亮通透的空间,设计师以打开的手法将空间各处紧密相连,以餐厅为中心向外辐射,去除不必要的隔断,光在空间中自然流淌,不被结构束缚。
同时,完全开放的空间带来更亲密的家居体验,亲情不再被框架所阻隔,使家庭成员间的交流更轻松舒适。
△更衣室沿过道而设,提供丰富的储藏空间
包括二层的主卧空间,不似寻常的绝对私密,而是即融合又独立,严谨的办公与惬意的居家,也并不对立,在适宜的空间里,为各种生活方式留有余地。
△小女儿房间
△大女儿房间
至于女儿们的房间,并没有为了迎合空间的整体性而去延续清爽简单的装扮,而是在尊重孩子自身喜好的前提下去规划。设计师希望在这个家中,每个人都能有一方完全属于自己的空间,不因一切外物所妥协。
△洞石细密的孔洞带来的肌理质感,仿佛会呼吸
细节处的点睛之笔源自对生活的执着
NX夫妇在看过了太多复杂的装饰之后,愈发向往绝对的纯粹与干净,并热衷于在日常生活中,收集能够带来灵感的小物件。
大面积的储物空间,营造“空无一物”的生活体验。学会“藏”与“守”,是维持干净简约生活的必经之路。
△雕塑来自|津巴布韦
日常生活中的收集,逐渐填入空间中,家居空间有意思之处便是这随着生活而日渐丰盈的人情味。每一个看似简单的物件,对于主人来说,都承载着无可替代的记忆。
△玄关灯来自|FONTANA
△灯具来自|INGO,像一块轻盈的手帕
他们从四十多平方米的住宅,搬入这四百多平方米的空间中,需要转变的不仅仅是生活方式,更是对于空间的理解。他们将小空间中“藏”的概念,运用于如今大的空间里,释放更多的“空”交予“间”,形成纯粹而有质感的生活方式。
△一层平面图
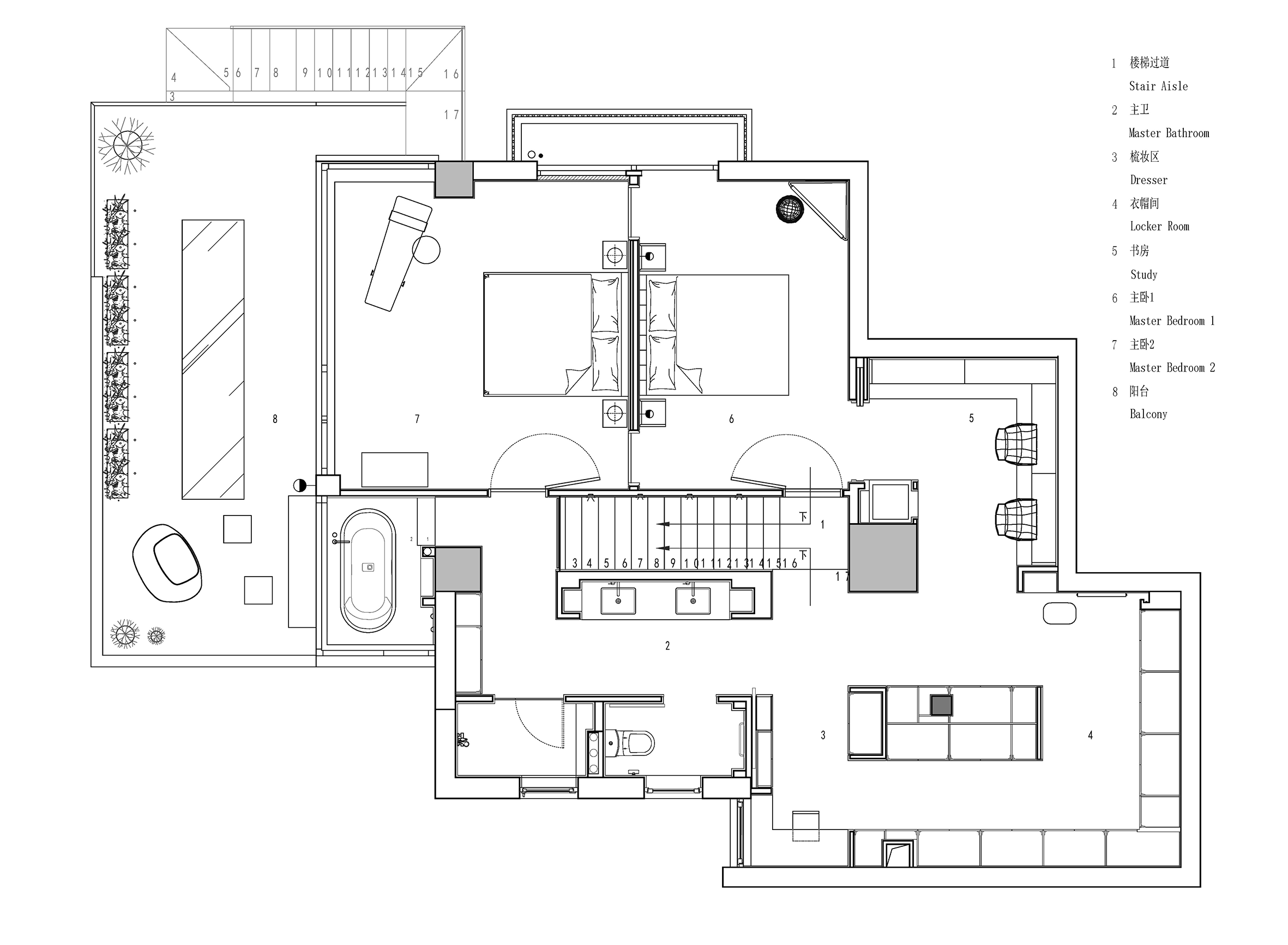
△二层平面图
项目名称|简单的艺术
公司名称|NX设计
项目地点|中国 浙江 温州
项目面积|400.2501349㎡
主案设计|倪伟锋、项舒倩
项目摄影|瀚墨视觉-叶松
设计时间|2021.1
完工时间|2022.5
主要材料|艺术漆、橡木、岩板
倪伟锋&项舒倩
NX设计联合创始人
NX设计,是由倪伟锋先生与项舒倩女士夫妻搭档在2019年创立于温州。用严谨专注用心的态度去负责每一个项目,以质量、细节和耐用性作为对每个项目的基本要求。目前主要的服务项目包括住宅空间、别墅、办公空间、商业空间、艺术空间等,提供全案硬装设计与软装设计。NX以其高端和个性化的客户战略,深得客户信赖,致力为客户带来通透舒适的设计。
客服
消息
收藏
下载
最近





















































