查看完整案例

收藏

下载
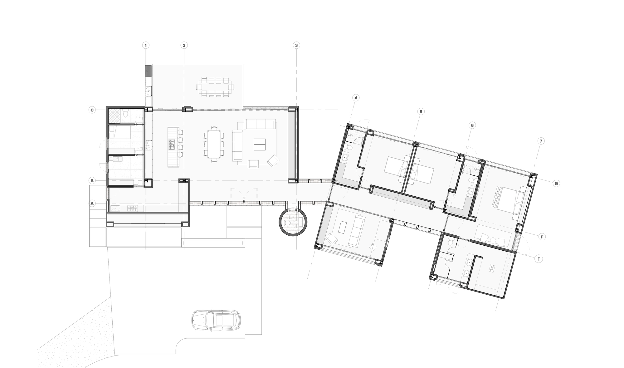
为 4 名成员开发这座住宅的主要目标是找到空间与外部的连续关系,使项目周围的森林成为主要参与者和吸引力。 因此,体量中有序曲,伴随着落地的彩色玻璃窗,允许与自然的联系和模仿。
它所展示的材料,如二次烧制的工艺砖、夹板混凝土、原钢和木材,在它们的a-tempority中与环境和谐相处,保持其自然特征,并允许以这种方式不与选址碰撞,但 而是与之融合。
这些材料不仅是外部的一部分,而且在内部也相当令人身临其境。
这个参数在共享区域的天花板上很清楚,我们希望突出显示,工艺砖从立面材料转变为覆盖空间的加泰罗尼亚拱顶,使其与外部的连接更加清晰,营造出温暖舒适的氛围 空间。
这些空间由外部视觉控制,通过花园中断的走廊将共享区域与生活空间和房间连接起来,这些走廊是室内的一部分。
自然光和人造光是共同的关键因素,确保白天自然光进入所有区域,并在晚上准确地强调项目的重要性。
项目设计:ALH Taller de Arquitectura
项目面积:370.2501349m²
项目年份:2021
项目摄影:Mateo Soto
设计师:ALH Taller de Arquitectura
语言:英语
客服
消息
收藏
下载
最近























