查看完整案例

收藏

下载

翻译
Firm: SARBJIT BAHGA, Principal Architect, BAHGA DESIGN STUDIO LLP
Type: Residential › Private House
STATUS: Built
YEAR: 2020
SIZE: 1000 sqft - 3000 sqft
Introducing 'Less Is More' & 'Minimalism' In Rural Punjab: Sarbjit Bahga-Designed, Jatinder Rana's House At Rampur Bilron.
This small and modernist house for Jatinder Singh Rana - a young forest officer and his small family, is located in his native village Rampur Bilron - a quiet rural setting in Punjab. Rampur Bilron is a small village located in Garhshankar tehsil of Hoshiarpur district in Punjab. It is situated 11 km from sub-district headquarter Garhshankar and 42 km from district headquarter Hoshiarpur.
The present scenario of development in rural Punjab is dominated by mushrooming growth of large, ill-designed, modern houses owned by neo-rich people who are mostly non-resident Indians working abroad. These houses, largely designed by quacks, have been built with the sole aim of ostentatious display of their wealth rather than getting comfortable indoor environment to live in. To make matters worse, the designs of these houses have been influenced largely by a new class of intruders in the architectural domain - the so-called Vastu Consultants.
This house at Rampur Bilron does not fall in the above-stated category. It has been conceived to set an example of comfortable living in all seasons with a built form which is nonexhibitionist in outlook. Designed on the concept of "less is more", this house is an ideal example of how a minimalist architectural approach, which economizes on space, light, and mass, can lend itself to an aesthetic yet functional building. Restraint and austerity emphasise geometric form, focussing on the basic structure rather than superfluous features or elements which serve no purpose.
The house demonstrates creative use of lines, shapes, fenestrations, blocks, materials and colours which lend it a strong, simplistic and minimalist expression. A conscious decision was taken jointly by the architect and the owner to design the house in a truly professional way to evolve a built form which is truthfully expressive of the internal functions, unadorned, seamless, monochromatic, and enduring. It was also decided that special efforts shall be made to make the house climatologically comfortable throughout the year. The covered, semi-covered, and open spaces should be evolved in consonance with this aim.
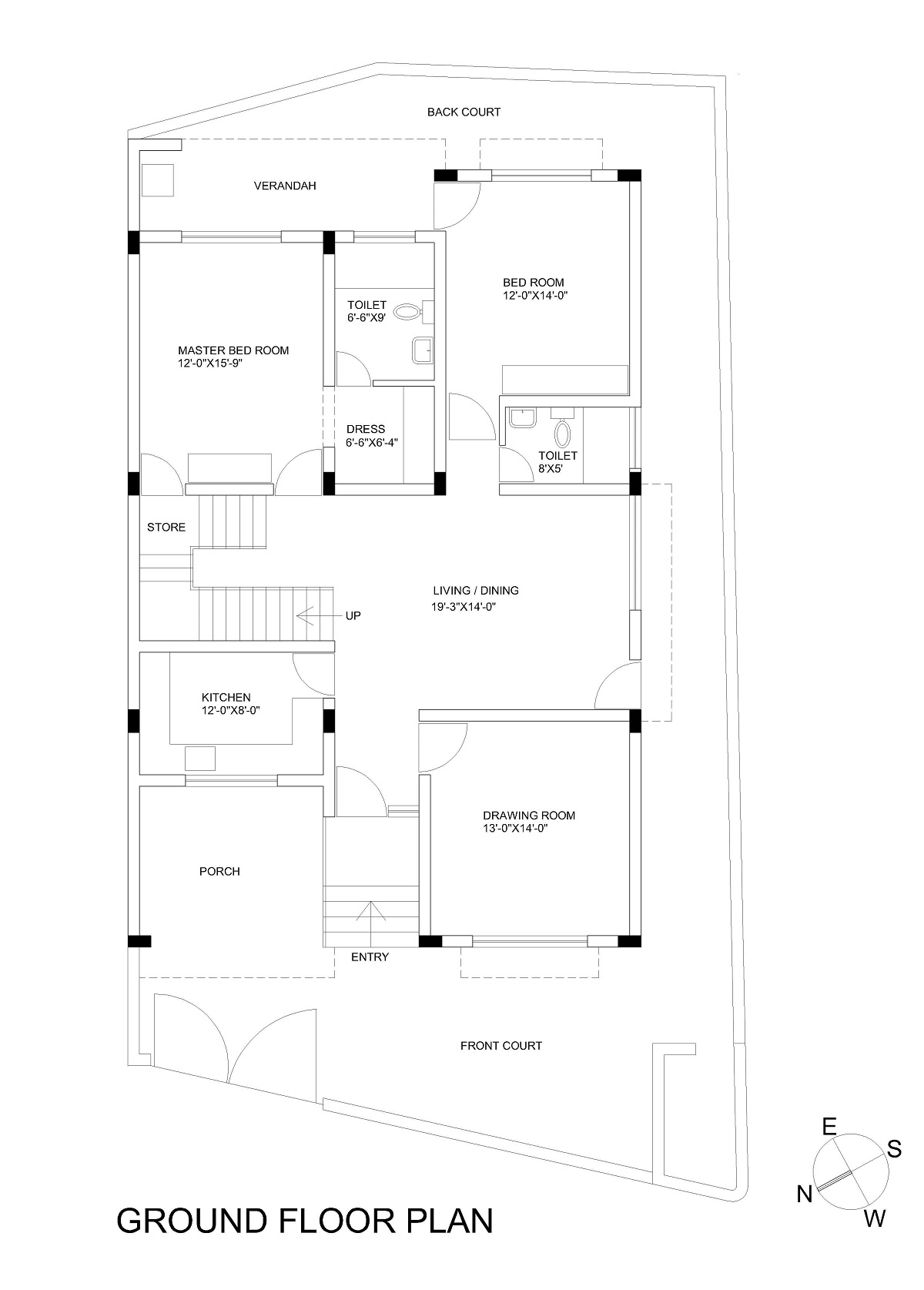
Keeping in view the small size of the plot, the built-up mass has been made to abut on the north-east, common wall thus, leaving open space on the other three sides. This space not only ensures sufficient natural light and cross ventilation in the interiors but also adds to the foreground for better appreciation of the built form. To provide safe access, entry to the house has been taken from the northern corner, away from the T-junction of the front approach road and the side street leading to the interior of the village.
As one enters the house there is no confusion in finding the main door as it is conspicuously facing the pedestrian way. Kitchen has been kept at a place next to the car porch so that the lady-of-the-house can keep a vigil on the entrance while working in it. The core of the house that is, the living and dining, has been so placed as to open on the south-west side. Thus, it draws an abundance of natural light and cross-ventilation. Also, one can get out of this place for a sit-out or walk in the open space.
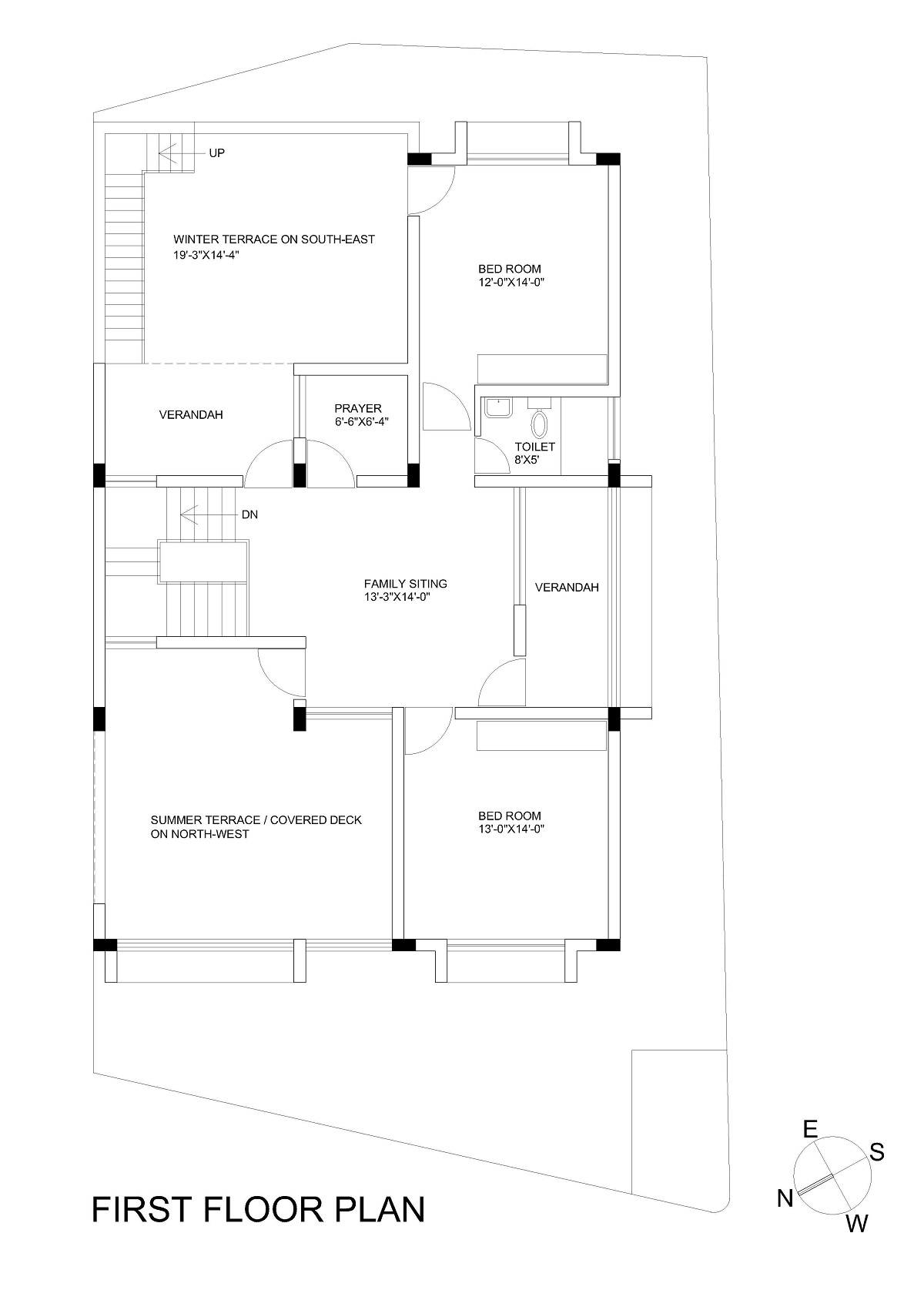
At the upper floor level, two spacious terraces have been carved out. One on the south-east or rear side for enjoying the morning sun especially in the winters, and a panoramic view of the village. This terrace has been conceived as "winter terrace". The other terrace which is termed as "summer terrace", falls on the north-west or front side. This terrace has been designed as a covered deck to protect it from the hot western sun. It thus remains cool throughout the day in summers and serves as an ideal family space. The wide openings on the north-west and north-east sides provide spectacular views of the surrounding village.
The central lobby or family sitting area at upper floor level also draws natural light from the south-west side. The fenestration on this side is well protected by a deep verandah. This verandah too serves as a semi-outdoor sitting space enlivened by a scenic view of the village. The house, though is located on the north-western fringe of the village, yet it affords the much needed visual communication with the rural landscape around. Due to the judiciously placed fenestrations, the house has very little dependence on the artificial light throughout the day thus saving a lot of energy.
The house though is small yet it is aimed at to change the mindset of the people and the trend of visual vulgarity of new rural houses in Punjab. Instead, the emphasis should be on the creation of pleasant and comfortable interiors. Feedback from the owner shows the favourable results in this regard.
Project Details:
Location: Village Rampur Bilron, District Hoshiarpur, Punjab.
Owner: Jatinder Singh Rana.
Architect: Sarbjit Bahga, Bahga Design Studio LLP., Chandigarh.
Contractors: Narinder Kumar (Civil Works), Nimma (Woodworks).
Area of plot: 2735 Sft. (254 sqm.)
Covered area on all floors: 3200 Sft. (297 Sqm.)
Completion: 2020.
客服
消息
收藏
下载
最近


































