查看完整案例

收藏

下载
项目名称:捷克HYTTA度假屋
位置:捷克
设计公司:Adam Hofman + Dominik Ilichman
人类天生就是创造者。实现自我梦想和理念,让我们感到充实。然而,我们经常会遇到当今时代特有的障碍:持续性的消息打扰,电子噪音,以及需要持续检查我们的手机的需求。这些纷扰妨碍我们充分发挥潜能,深入研究对我们至关重要的问题。因此,Dominik Ilichman和Adam Hofman创造了Hytta——一处处于自然之中的现代小木屋,在这里你可以不被打扰的创造和反思重要的事情。建筑师的主要目的是设计一处可以自然融于周围环境的居所,为思考和激发灵感提供充足的空间。融合了自然、私密性和高质量的工作空间的Hytta让人可以从日常生活中的喧嚣中解放自己,并且探索新的想法和真正珍视的事物。设计的目的是斯堪的纳维亚式的极简主义。没有任何不必要的元素来打扰人。
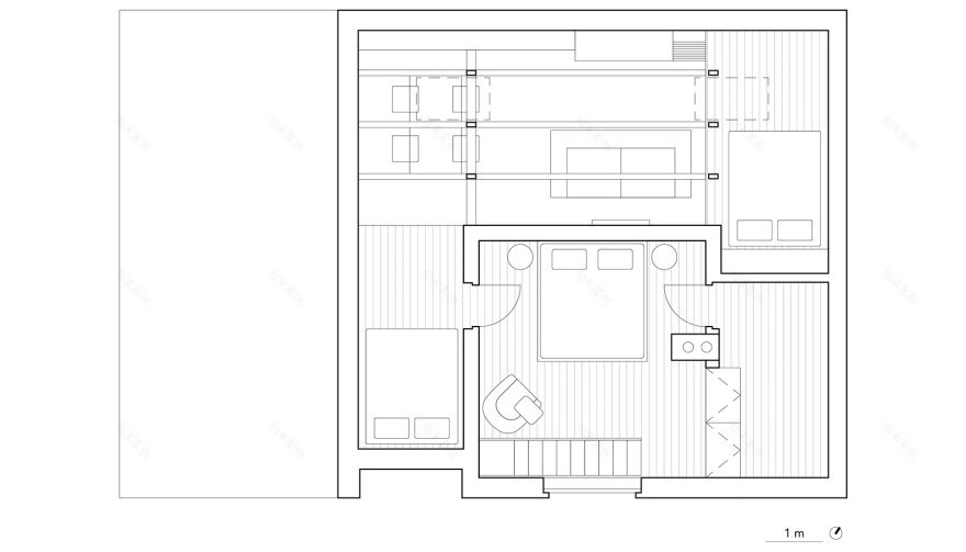
同时,Hytta包括我们今天所习惯的标准,让人感到舒适,能够不受干扰地集中精力。露台和每一面的窗户将室内空间和周围环境相连,使自然也成为创造力与灵感的源泉。Hytta坐落于松树林边缘的一处朝南的斜坡上,将小屋和附近的社会隔绝开来,提供了足够的私密性。小屋的平面受到过去的狩猎小屋的格局影响,维护了其原有的规模。一层包括起居室、厨房、门厅、浴室、 杂物间和可以从室外进入的户外浴室。主要的居住空间有一个高耸的斜坡屋顶,为创造性提供了宽敞的空间。从客厅可以进入浴室,黑色砂浆和家具提供了引人注目的亲密氛围。精致的金属板制成的厨房中的楼梯,它由钢索悬挂,优雅地升至主卧室。
主卧室朝东,清晨的阳光从大窗户洒下,让您在舒适的床上欣赏大自然的唤醒。还可以从卧室进入一处舒适的角落。第二个角落位于主客厅上方的小阁楼中,可以通过楼梯进入。两个角落都提供了额外的睡眠区域,使 Hytta 最多可舒适地容纳六人。在客厅中,橡木制成的餐桌不仅是用餐空间,也可以作为工作空间。技术设施,包括电脑显示器,可以很方便地从图书馆的一个柜子里延伸到桌子上方。Starlink网络服务和生物动力照明进一步提高了工作空间的质量,生物动力照明在天黑后不会发出蓝光,从而促进睡眠。
Hytta的主要供热由烧木头的铁炉子提供,同时地热也提供辅助的温度控制。高质量的放松体验也是不被打扰的创造性的重要组成部分。这就是在Hytta的几米外有一处带有冷浸浴缸的现代芬兰桑拿浴室。该设施位于一处微微倾斜的地形上,当你享受桑拿时可以俯瞰不受干扰的林中景色。桑拿室占地6m x 3.5m, 其中包含休闲区、淋浴间和芬兰桑拿房本身。和Hytta一样,桑拿室同样体现了斯堪的纳维亚极简主义精神,炭化木覆层外墙也使其融入了周围的自然环境。建筑是用土螺钉锚固的,通过一个钢制坡道进入设施,给人一种轻盈的愉悦感。
捷克HYTTA度假屋外部实景图
捷克HYTTA度假屋外部实景图
捷克HYTTA度假屋外部实景图
捷克HYTTA度假屋外部实景图
捷克HYTTA度假屋外部实景图
捷克HYTTA度假屋外部实景图
捷克HYTTA度假屋外部实景图
捷克HYTTA度假屋外部实景图
捷克HYTTA度假屋外部实景图
捷克HYTTA度假屋外部实景图
捷克HYTTA度假屋外部实景图
捷克HYTTA度假屋外部实景图
捷克HYTTA度假屋外部实景图
捷克HYTTA度假屋外部实景图
捷克HYTTA度假屋外部实景图
捷克HYTTA度假屋内部实景图
捷克HYTTA度假屋内部实景图
捷克HYTTA度假屋内部实景图
捷克HYTTA度假屋内部实景图
捷克HYTTA度假屋内部实景图
捷克HYTTA度假屋内部实景图
捷克HYTTA度假屋内部实景图
捷克HYTTA度假屋内部实景图
捷克HYTTA度假屋内部实景图
捷克HYTTA度假屋内部实景图
捷克HYTTA度假屋内部实景图
捷克HYTTA度假屋内部实景图
捷克HYTTA度假屋内部实景图
捷克HYTTA度假屋平面图
捷克HYTTA度假屋平面图
捷克HYTTA度假屋平面图
捷克HYTTA度假屋剖面图
捷克HYTTA度假屋立面图
客服
消息
收藏
下载
最近




































