查看完整案例

收藏

下载
Trieu Chien
靠近赤道线的热带国家越南在当代建筑的发展史中逐渐崭露头角,特殊的气候条件使当地建筑的维护周期不得不缩短至3年左右。无论是为了优化土地利用效率的狭长型建筑场地,亦或是传统建筑的迭代更新,其设计都离不开自然、低成本等生态化的标准,通过质朴的用材诠释与自然共生的理念。
Terra Cotta Workshop
Tropical Space
越南·广南
©Trieu Chien
Terra Cotta工作室是由一座越南传统砖窑改造而来的综合体,已有二十多年历史的砖砌结构依照如今的使用需求被改造为折叠砖墙与圆柱体块的组合,在保留部分制陶工作间和窑炉的同时额外增加了游客体验区域,借以普及相关的手工艺文化。
©Trieu Chien
简练的几何空间被两堵5.4m高的砖墙划分为三个区块,并以此为纽带,凭借镂空的设计建立视觉上的联系。位于外侧的游客体验区通过冗长的走道与Terra Cotta工作室相通,工匠的日常工作区域则位于靠近河岸的一侧,通过天然的湿度条件创造良好的作业环境。
©Trieu Chien
02
Trau Quy House
TOOB STUDIO
越南·河内
©Trieu Chien
Trau Quy House是为一户中年年龄段的家庭定制设计的住宅,业主十分向往简单、怀旧且私密的生活模式,因此建筑师TOOB STUDIO以此为出发点,利用自然缓冲区域及细节设计将内部空间与熙攘的街市分隔,营造独立静谧的空间氛围。
©Trieu Chien
狭长的生活区域以入口处的门厅与种植区为隔,通过微妙的高低变化形成了自然的过渡关系,面向街道的铁艺大门使杂音被隔绝在外,同时凭借顶部的天窗来弥补采光方面的弱势。上层的起居间与卧室依靠镂空的铁制楼梯串联,令下层区域也能沐浴在温暖的阳光中,提供家的归属感。
©Trieu Chien
03
The TUBON
Hinz
越南·平阳市
©Quang Trần
这座位于越南平阳市的漆器展厅在几十年来一直以其长满青苔的传统瓦片屋顶为视觉标志,承载着悠长的文化传统。在此番由Hinz负责的改造重建工程中,建筑师保留了特色的屋顶形式,并利用钢筋与青砖组成的现代结构呼应其材料肌理,形成统一和谐的表达风格。
©Quang Trần
展厅内部分为三个相连的区域,呈不同角度的墙体与柔和的拱形门洞交接组合,构造出一系列特殊的锐角展陈空间,使直与曲、秩序与随机、传统与现代等对比性的形式表达交织在一起,诠释了贯穿整个设计的包容性理念。
©Quang Trần
04
Crystal Restaurant
NH Village Architects
越南·河内
©Hiroyuki Oki
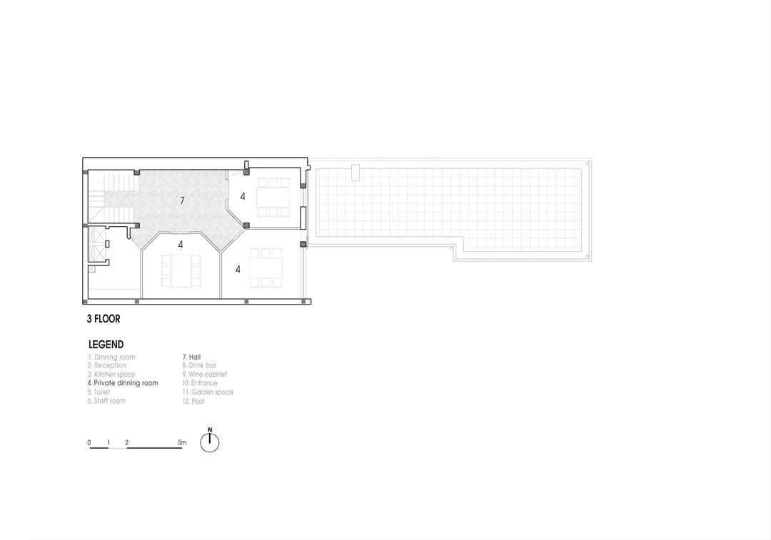
位于河内老街中的Crystal餐厅由一座形状狭长的建筑改造而成,场地中的一棵保留树木是外部景观的核心元素,从门头侧边向内延伸的庭院为一旁的用餐区提供了自然的外部视野,并通过尽端的水池营造兼顾美学与小气候的空间氛围。
©Hiroyuki Oki
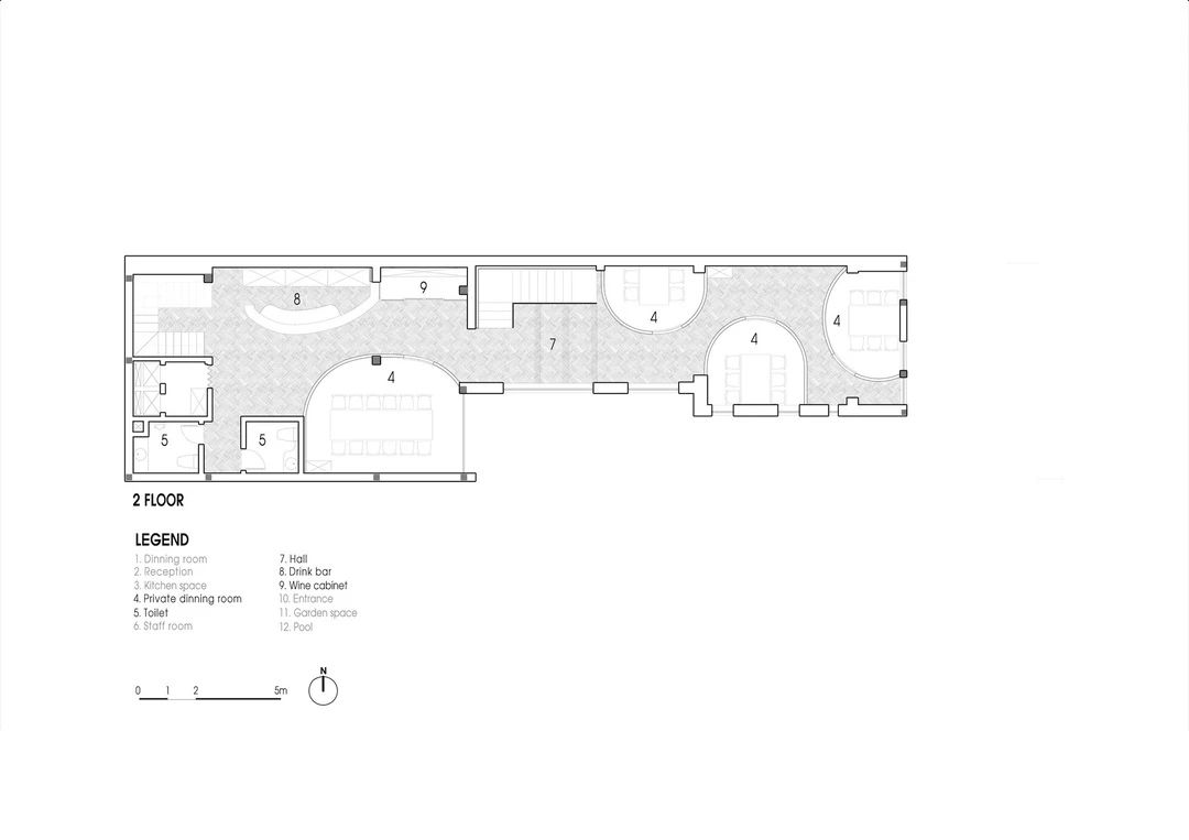
一层的公共用餐区使用深邃的色彩拉开了室内外的对比,上层的包间则以天然水晶的肌理为灵感,借助半透光的粗纹玻璃作为不同单间的分隔,营造出色彩斑斓的灯光反射效果。此外,餐厅的开口设计均充分考虑了采光通风与景观等多重要素,为顾客提供开放舒适的用餐环境。
©Hiroyuki Oki
客服
消息
收藏
下载
最近








































































