查看完整案例

收藏

下载
房屋,世田谷区,日本
设计师:Terada Hirate Sekkei
面积: 177 .2501349m²
年份:2021
摄影:Ben Richards
首席设计师:Naoki Terada, Kenichi Hirate
设计师:Terada Hirate Sekkei
城市:世田谷区
国家:日本
设计师描述 | Designer description:
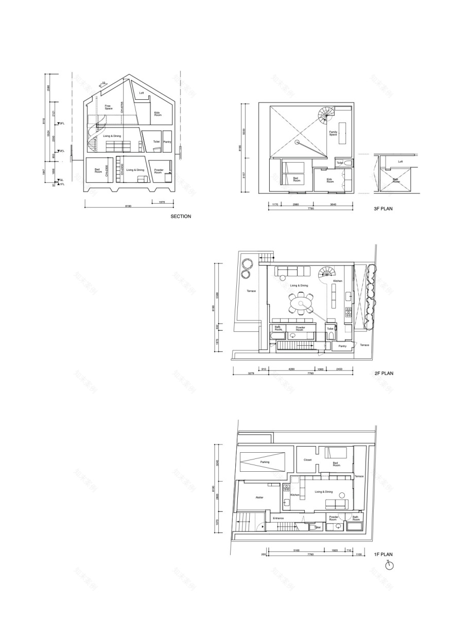
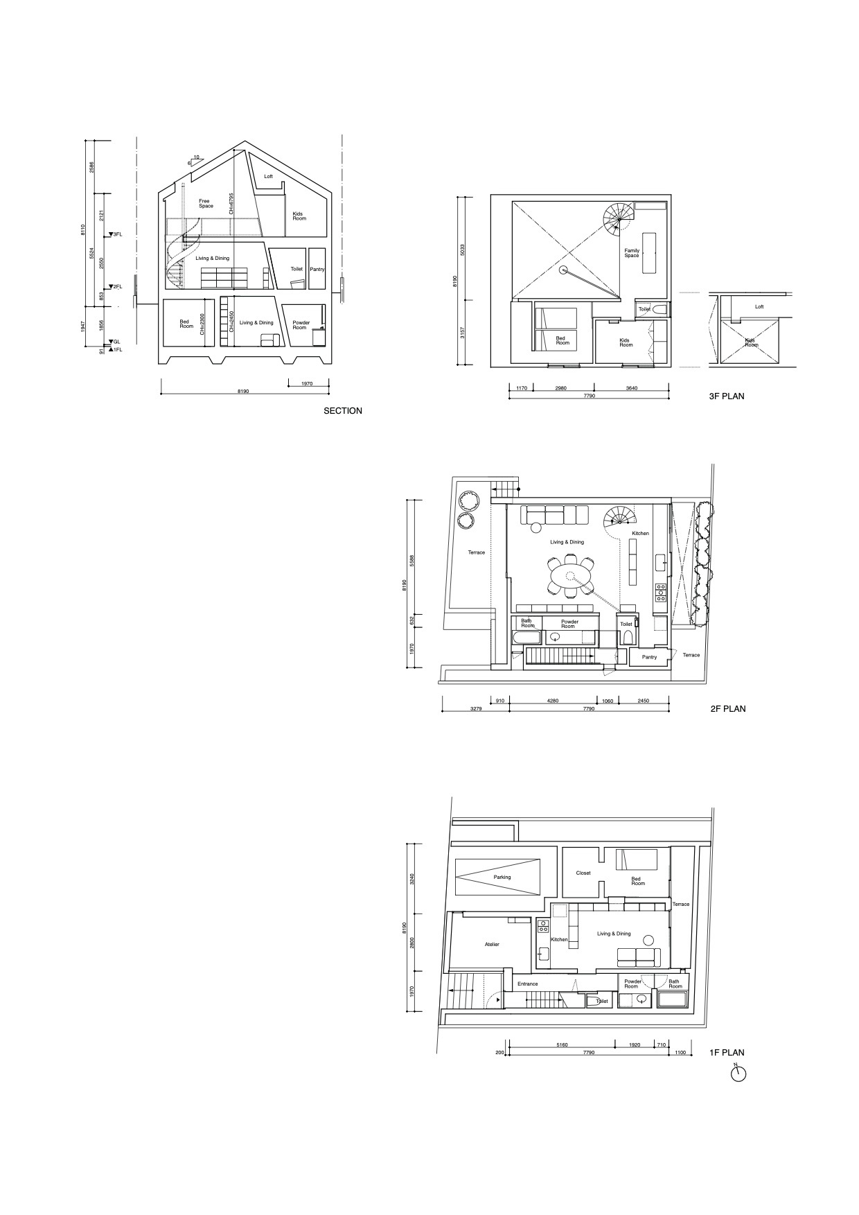
位于东京高户站附近一个安静的住宅区内,是一座黑色建筑,坐落在混凝土平台上方。 这座建筑实际上是一栋专为容纳五口之家(父母、父母和女儿)而设计的房子。 就在主干道旁,穿过其主要入口,有几个台阶可以引导您向下,左侧有一堵对角墙,似乎向上穿透整个建筑物并到达顶部的屋顶。
向二楼延伸的黑色楼梯采用与外墙相同的材料制成,左侧是一扇带角度的黄色大推拉门,通道与对角墙对齐。 在这扇黄色门之外是起居和用餐区,一楼有一间卧室和开放式学习区。
照亮的黑色楼梯将您带到二楼,在那里,一扇红色的门通向一间完全覆盖着白色 100 平方毫米瓷砖的浴室,整个空间都存在对角墙。 宽敞的天花板高度高达 6.8m,带厨房的开放式起居和用餐区配有 50 年代和 60 年代时代的家具。 除了定制设计的沙发和灯具外,不锈钢厨房也采用原始定制设计。 起居用餐区也通过一扇3.6m宽的滑动玻璃门与露台相连,将内部空间延伸至开阔的户外。
沿着这个起居用餐空间的螺旋楼梯上升,您将进一步到达房子的 3 楼。 在这里,俯瞰二楼的是一个标志性的红色“生活塔”沙发,在黄色的背景下,进一步扩大了整个家庭的生活区域。 “生活塔”还用作观看墙上投影图像的座位。 此外,两间卧室位于这一层。 第一个是带阁楼的儿童卧室(通过窥视孔)与下面的起居/用餐空间相连,然后主卧室以深蓝色合成,配有定制的窗帘和床罩。
项目完工照片 | Finished Photos
设计师:Terada Hirate Sekkei
语言:英语
客服
消息
收藏
下载
最近
























