查看完整案例

收藏

下载
对市区有 20 年历史的公寓进行三维改造。通过减少分隔上下楼层的钢筋混凝土骨架,营造出地面般的景观以及宽敞的内部空间。住宅、绿化和城市之间的关系,您可以感受到高层独特的城市景观,这个项目可以成为现代库存再生的案例研究。
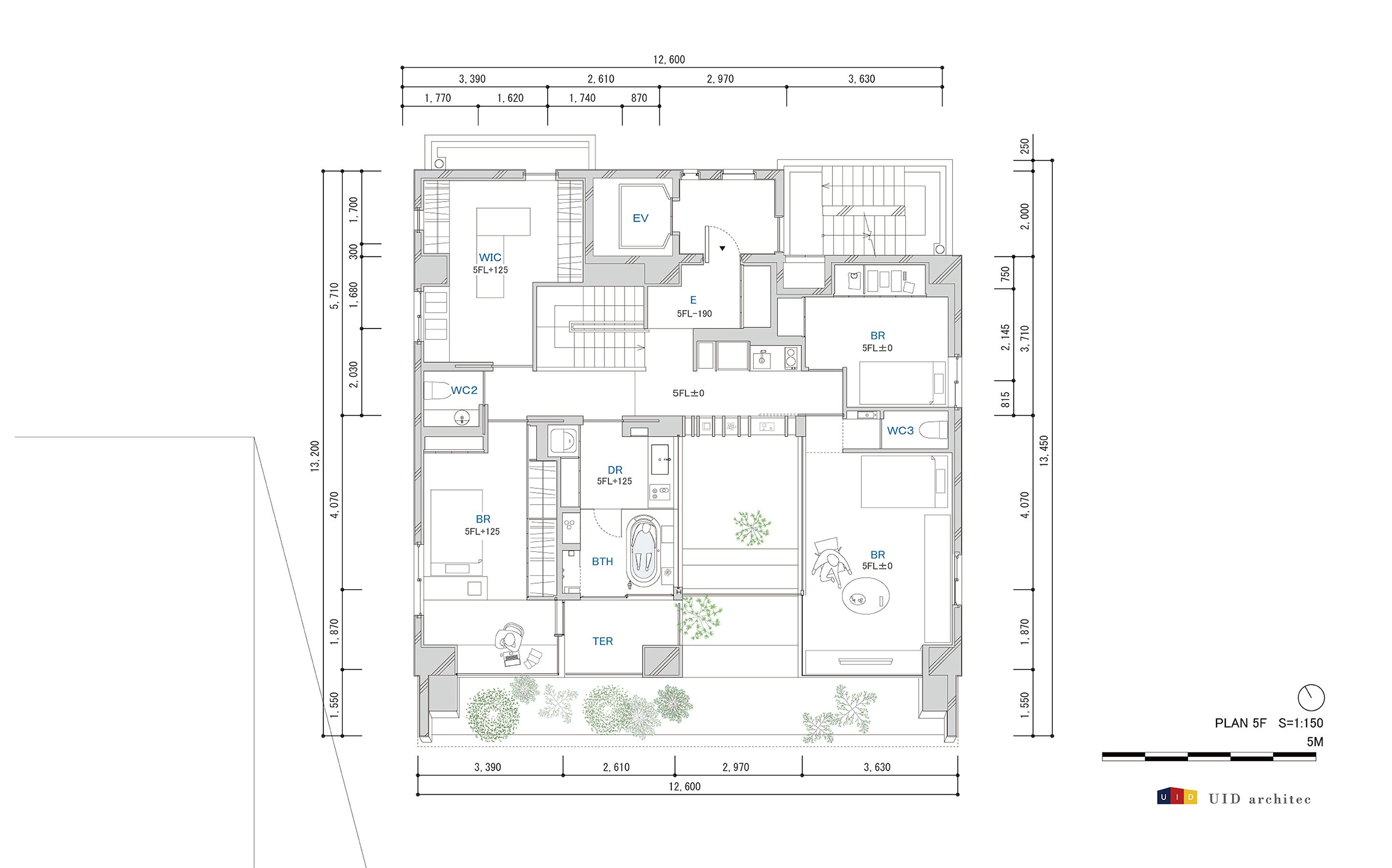
它是对市区一栋20年历史的高层公寓楼的两层改造。在一般的公寓中,楼层高度和露台等相同类型在垂直方向上有效堆叠,因此表层趋于均匀和单调。此外,楼层越高,与地面分离的生活越只履行房屋的功能,情况与可以感受到丰富的自然花园(=地球)的环境相去甚远。这一次,试图将业主拥有的高层公寓楼的4楼和5楼改造成新的住房船只时,每天都在忙碌的业主夫妇的要求是一个可以放松并花时间在家里。遇见。孩子们长大了,他们把时间放在了优先位置,通过减少不必要的房间,我们考虑了一个你可以感受到合适的建筑面积和充满自然的土地的空间。具体而言,首先,去除现有窗扇所在的内外边界表面,并扩大外部花园面积。除了五楼的阳台外,减少不必要的楼板以创造垂直开放性,并将剩余的交叉框架结构作为整个建筑的新立面设计。这使得种植高大的树木成为可能,阳光透过漂浮在空中的花园照射到室内空间。营造了一个自然环境,您可以在其中感受到树枝和树叶波动的阴影,您可以感受到前所未有的可靠地球。近年来,许多公寓装修都通过拆除隔板并在水平方向上扩展,或剥离饰面,制成质朴的容器。在这种情况下,这种即使在连接上下层和高层建筑类型(如公寓)的三维设计中也不放弃景观设计的解决方案是通过与业主的对话而诞生的。我希望这将成为当前供过于求且需求下降的高层公寓楼具有新附加值的库存再生的案例研究。这片新土地在漂浮的房屋、花园和城市之间建立了联系,您可以在其中感受城市景观。
平面与结构图:
设计师:UID Architects
坐落:Hiroshima / Japan
语言:English
客服
消息
收藏
下载
最近

























