查看完整案例

收藏

下载
建筑事务所 DROO 在伦敦仓库大楼的顶部增加了四套公寓,室内设计灵活,旨在促进共同生活、家庭教育或在家工作。
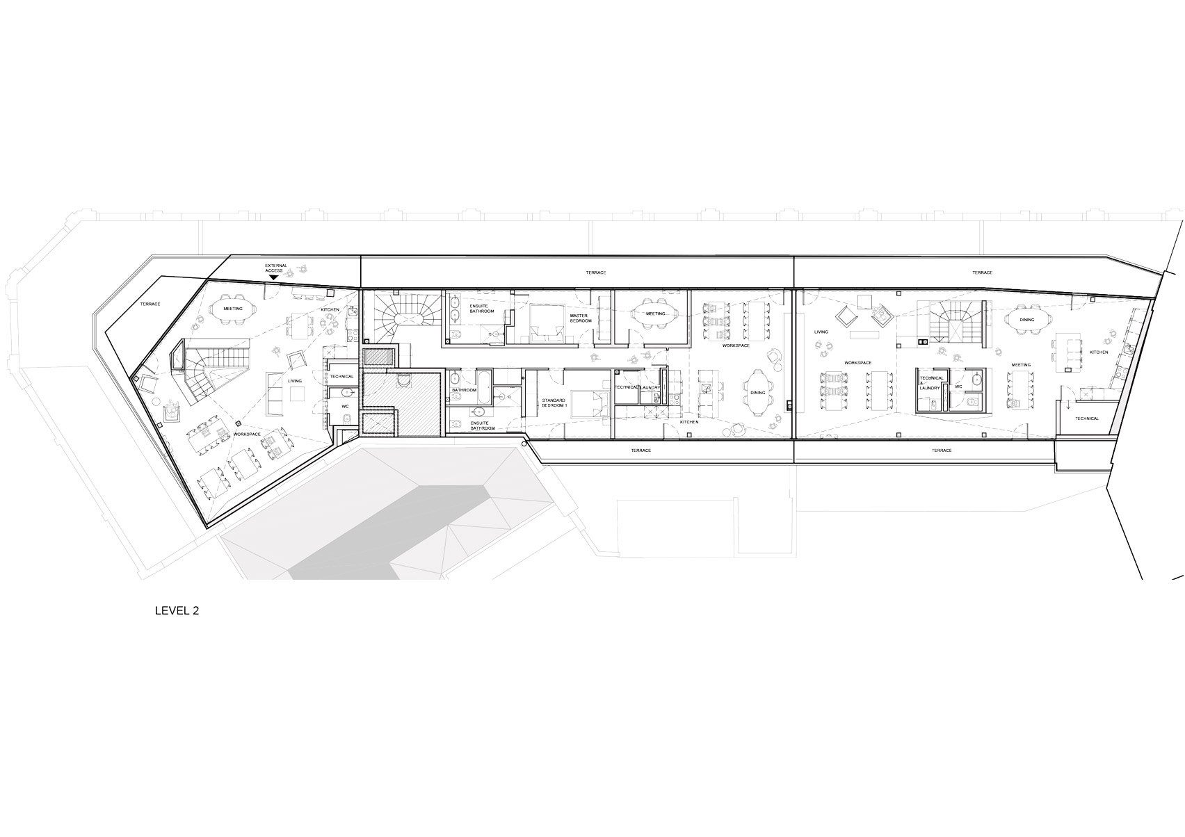
该项目涉及在 City Approach 的护墙后面开槽两层玻璃层,这是一座位于伊斯灵顿保护区的六层高的爱德华时代砖砌仓库建筑。
这些两居室和三居室公寓建于大流行期间,旨在适应各种不同的生活环境。
它们可以由家庭或共同生活的共享者占据。 它们还可以允许同时进行各种活动,使居住者更容易在家工作或学习。
DROO 联合创始人 Amrita Mahindroo 说:“由于技术越来越普遍,许多家庭正在向混合工作安排转变。”
“大多数人都将工作带回家,并兼顾某种生活/工作生活方式,无论他们的空间多么适合。”
Mahindroo 告诉 VssZan:“我们无法改变技术的本质,通知在左侧、右侧和中间弹出,影响了我们为工作生活和家庭生活设定界限的能力。”
“然而,我们可以设计空间上不同的边界,让人们觉得他们可以在空间上将自己与家庭日常生活的其他部分分开。”
City Approach 公寓以多种方式做到这一点。
首先,每个家庭被分为两个区域。
对于两个多层住宅,它们按楼层分开,而单层住宅则简单地一分为二。
第一个区域包含最私密的空间,即卧室和浴室,而第二个区域是促进家庭和工作活动的社交区域。
在这些区域内,根据特定的活动创建了不同的区域。
在社交区域,有不同的用餐和工作区域,以帮助将这些活动分开。 每个家庭还设有专门的会议区,设计时考虑到了 Zoom。
两套多层公寓还在私人区域设有独立的休息室或学习空间,为居民提供更多选择。
其他细节则更为微妙,例如,超宽的走廊为办公桌或座椅提供了空间,而壁龛则创造了舒适的角落,让内向的居民感觉更舒适。
“我们彻底改变了开放计划,”马欣德鲁说。 “我们长期以来一直认为,开放式计划在空间上是可取的灵活性,但它们是外向者为外向者设计的空间的结果。”
“为包容性而设计意味着要考虑使各种人感到安全和高效的空间类型,为亲密和隐私进行缩放,并提供正确的声学,”她说。
City Approach 是 DROO 最近在伦敦完成的一系列住宅项目中的最新一个,紧随其后的是一座带有“皱巴巴的纸”立面的建筑和一个带有戏剧性弯曲窗台的街区。
该项目的建造具有挑战性,因为下面的楼层需要在整个建造过程中保持功能。
使用交叉层压木材框架,有助于减少现有钢结构的负荷,而三层玻璃和空气源热泵有助于降低建筑物的能源使用。
尽管该项目是在大流行之前设计的,但 Mahindroo 认为它展示了未来的房屋将如何适应自那时以来发生的生活方式转变。
“我认为生活/工作是经济转变和育儿的结果,而不仅仅是大流行,”她说。 “我认为这些混合安排将继续存在,因为它们是朝着更具包容性的工作未来迈出的一步。”
摄影:
Henry Woide
室内:DROO Architects
MEP: Andrew Reid
结构:Fairhurst
策划顾问:Firstplan
ROL 和派对墙:Fidler Associates
CDM: Fidler Associates
声学:Syntegra
防火:Affinity
客服
消息
收藏
下载
最近












































