查看完整案例

收藏

下载

翻译
Architects:Architectare
Area:478m²
Year:2018
Photographs:Leonardo Finotti
Manufacturers:Ambient Air,Apicoar,Roma Mobili,Sá Martins
Lead Architect:Flavia Quintanilha, Rodrigo Fernandes
Landscape Design:Daniela Infante
Lighting Design:Maneco Quinderé e Associados
Structure And Foundations:Broker Engenharia
Installations:Paulo Castro Instalações
Pool:Aqualar
Construction Company:Helio Szwertszarf e André Luiz Santos
City:Itaipava
Country:Brazil
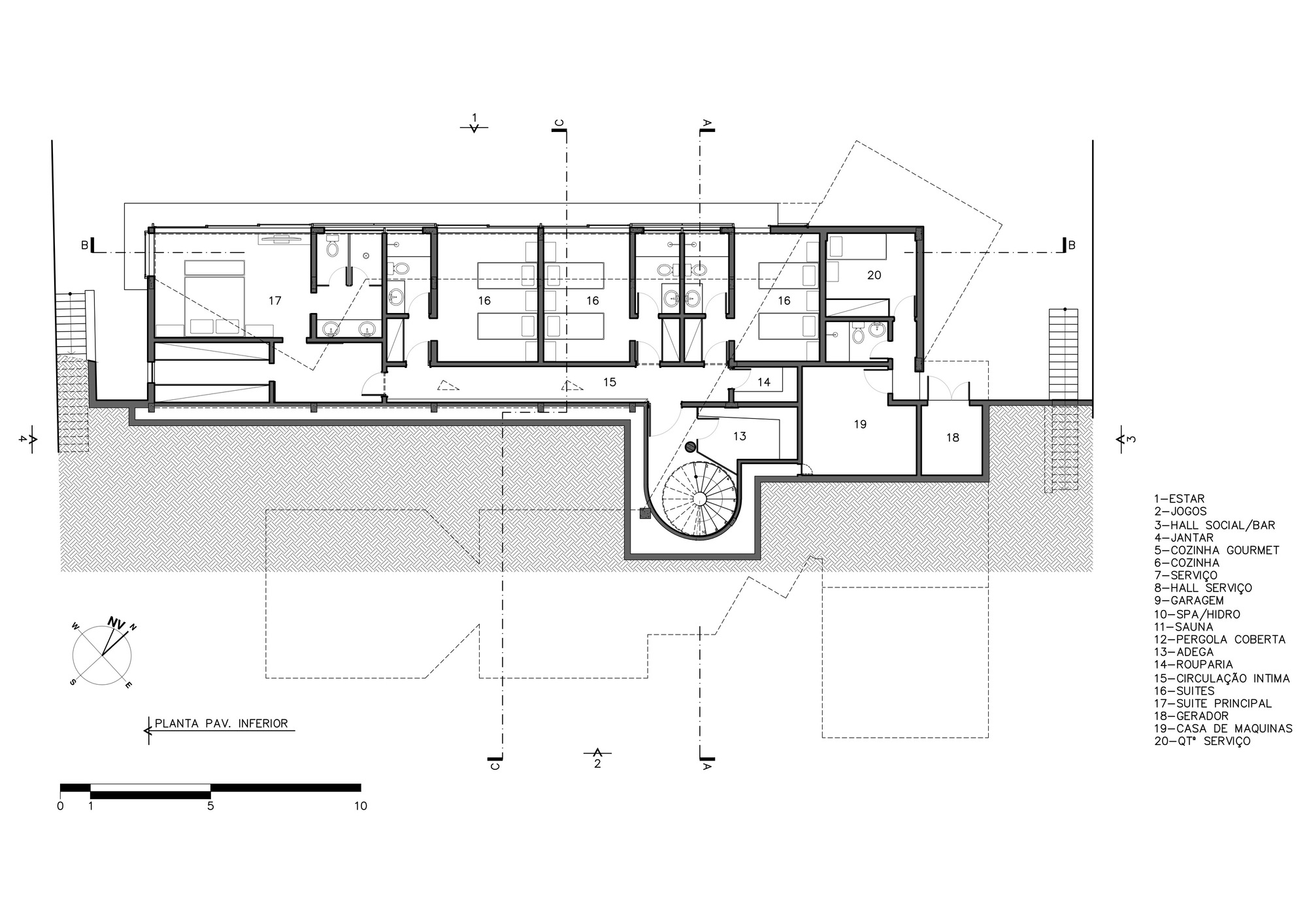
Text description provided by the architects. Designed to be a summer house, the clients wanted all the social and service activities in the house to be isolated from the intimate area. As such, the building was sectored so that visitors only had access to the first floor, while residents and guests could stay on the lower floor without being disturbed.
As the house is located on a very steep slope, with access from the top, a cut was made in the land for better implementation of the program and privacy from the street, so that a small hill could isolate the street and the roof of the lower floor would serve as a ground for the first floor, expanding the area of the plateau generated by the cut.
The choice of this design also contributed to the house having a much smaller and more interesting apparent volume, since half of the building could be buried. The infinity-edge pool at the end of the building acts as protection without the need for a guardrail to obstruct the view.
When you enter the social area of the plot, the house's vocation for entertaining is immediately evident. The main volume, clad in slate tiles and with a V-shaped floor plan, dominates the lawn and welcomes guests, who are directed through one of its many openings by a gentle staircase that turns into a bridge, crossing the water mirror and arriving at the entrance hall, from where you can access the staircase to the lower floor and the rest of the house's leisure areas. To the left are the games room with bar and living room with TV. To the right are the dining room, kitchens, gym and sauna, which hangs over the end of the house, making the most of the view.
As this is a summer house, the entire volume was designed to function as a large veranda, opening up completely to the land in front and the view. The uses are also not so rigid and can vary according to the organization of the door sets. For example, the dining room can be a formal dining room when the doors are closed or function as a porch for the pool when the doors to the veranda and kitchen are open. The kitchen itself can have various configurations, such as being totally isolated from the living room when the doors are closed or functioning as an open gourmet kitchen, while also allowing the back to be isolated or not, depending on whether there are employees or mess.
To soften the impact of light and the passage from inside to outside, pergolas were designed from outside to outside on the north and northwest façades, as well as cuts in the main volume, where the garden enters, bringing the outside into the rooms.
To contrast with the coldness of the stone used on the outside, the entire interior is clad in brick and pine wood, making the rooms feel warmer and more welcoming, and so that the interior doesn't look so dark, a light granite floor was used.
The lower floor, built directly into the ground, one level below and completely out of line with the first floor, contains four suites that have a direct exit to the garden, as well as a cellar and a part of the service block, which functions in a discreet two-storey volume with an independent entrance attached to the slate-clad main body.
Project gallery
客服
消息
收藏
下载
最近
































