查看完整案例

收藏

下载
MCK Architects: 在最真实的时刻,必须亲身体验建筑。 人们必须熟悉建筑才能理解那一刻的情感放纵,头发竖立在你的脖子后面。 人们必须了解空间的影响以及它对每天体验它的人的生活产生的影响。
挤压式房屋是一种定制设计,专为它寻求提供庇护的生活特质而独特。 挤压式房屋以其绝对的谦虚和简单性吸引了居民和精通设计的公众的眼球。 它准备通过无耻地并排坐在一起并让他们受到评判来以新的方式庆祝旧的。 它提供了一种关于什么是家的当代思维方式,各种独特的细节挑战我们敢于与众不同。
他们说一个人的家就是他们的城堡。 一个无与伦比的安全、舒适和隐私的地方。 一个与生活中最亲密的人分享多年时光的地方,并在需要时获得内心的平静或独处。 Extruded House 是一个年轻的五口之家的家,他们的生活一直受到他们一个儿子的重大健康挑战的影响。
Extruded House 从一开始就是一个适度的项目,但有一个大胆的结论。 提醒人们,在谦虚和隐藏在不起眼的外表下,可以取得胜利。
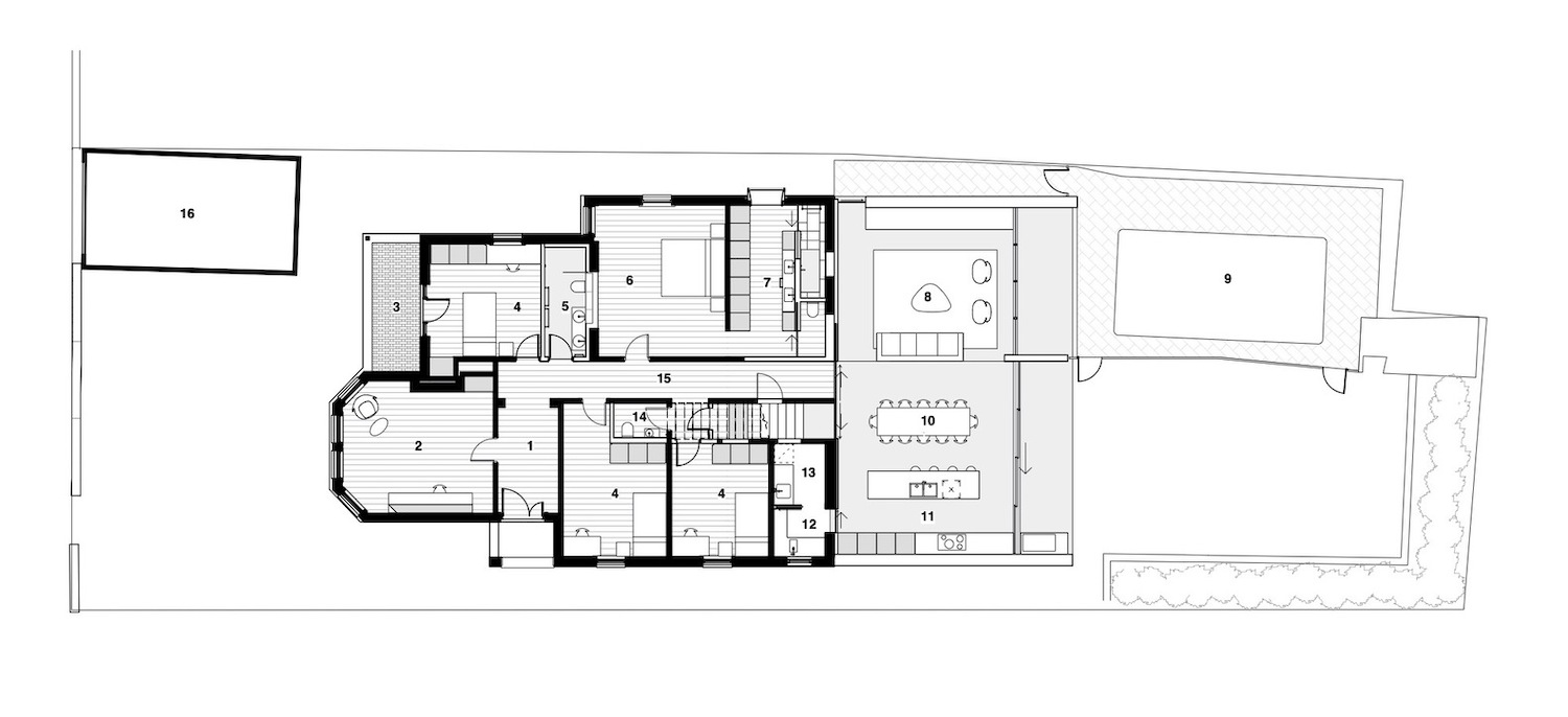
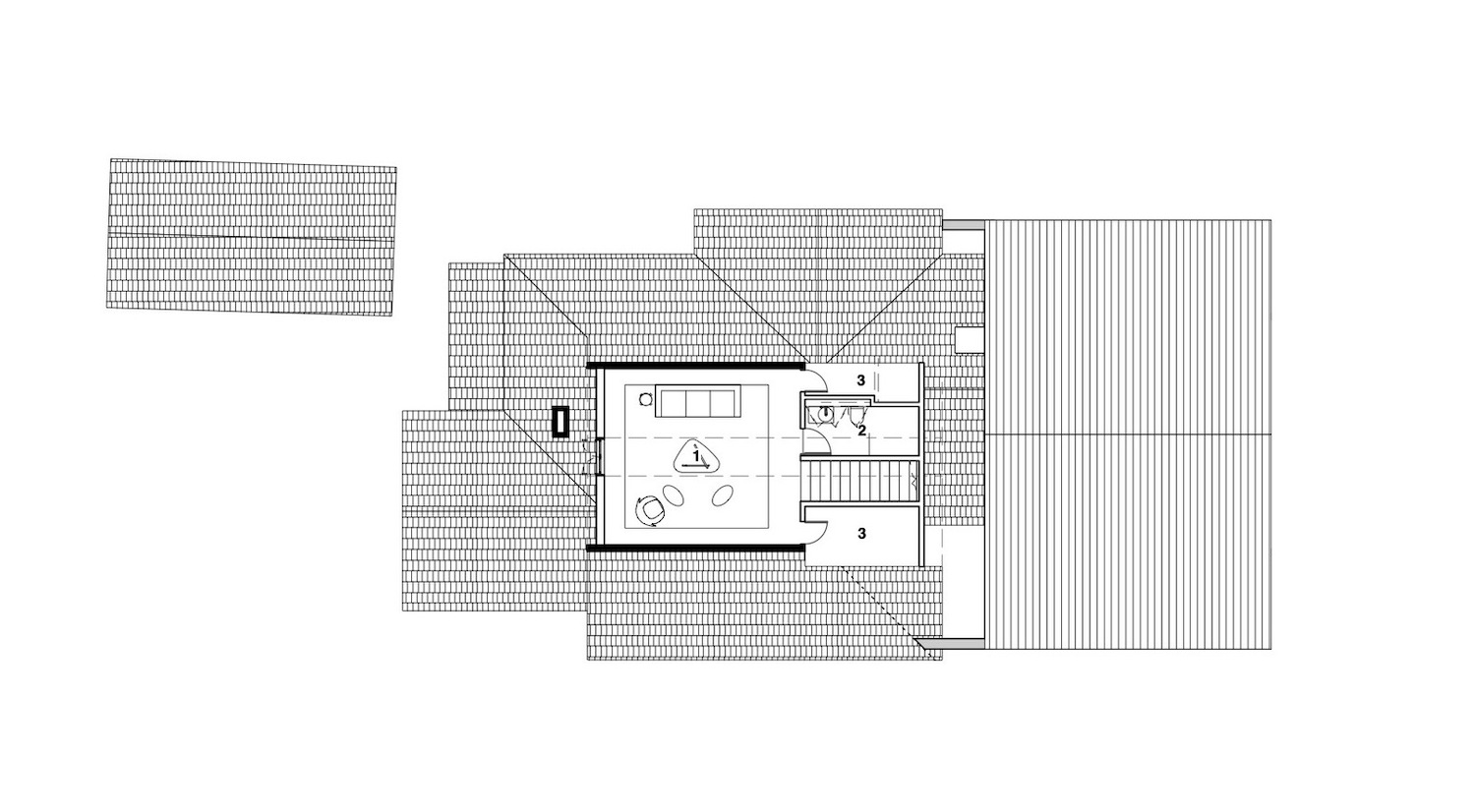
联邦式住宅的坚固骨架已被保留和改进,以提供通过住宅私人部分的逻辑流通。 在这里提供空间,让家庭成员在忙碌的一天结束时找到安静或孤独。 然而,向现有房屋的后方移动,人们被吸引到对更宏伟的事物的期望。 后围栏和借来的景观为室内提供了一个模糊的背景,当人们进入一个全宽、双高的生活区时,它是由它毗邻的联邦房屋轮廓的简单挤压形成的。 这是喘口气的时刻。尊重相邻的环境和保留现有住宅的有价值的结构是简单设计概要中的两个优点。 简单的想法,但他们对设计方法的最终影响很大,因此对成品房屋的形式产生了很大的影响。
直觉告诉我们,可以通过不增加现有形式的参数来克服对邻居的影响。 我们也知道现有的房子有很好的骨架,只是布局笨拙,所以它被赋予了一种更简单的方法来从前到后循环。 挤压现有房屋的一部分,但删除之间的所有内容,以创建一个开放的生活区,这是一个协作设计团队构思和接受的。 后立面完全是玻璃的,这样新的生活区在视觉上与后栅栏的视野一样大。
Extruded House 是一群人共同努力,专注于解决方案的质量,而不是数量。 该项目没有增加很多平方米,只是让现有的更有意义。 现在,一个宽敞的体量坐落在适度的占地面积上,但没有给场地或环境带来负担,重点放在成品上。
挤压形状的形式是用异型混凝土建造的,挑战了属于联邦住宅的面料标准,但与其历史装饰形成了平静的对比。 由于它们共享一个形状,这两种形式之间产生了强烈的对话,但它们的物质性有助于提醒我们它们各自的时刻。 考虑到这一点,新旧形式之间存在视线,除了将内部连接到后院的迷人景观外,它们还提醒业主他们现在在哪里以及他们来自哪里。 在新的混凝土外壳内有一堵木墙,它是老房子矗立在街区后面的痕迹。 在旧屋顶改变形状的地方,有机会加入高光玻璃,为现有屋顶提供南向光。
作为坚固的混凝土结构,带有墙体空腔,房屋的外壳提供了即时的热质量。后立面的黑色翅片控制直射阳光,因此较低的冬季阳光被混凝土地板的热质量控制和利用,较高的夏季阳光被内部排斥,因此在较热的日子里不会发生直接的热量增加。新生活区的双高空间通过安装在定制木格栅后面的太阳能通风机耗尽。雨水被利用和回收用于花园。新空间和现有空间都拥有充足的自然光,这意味着几乎不需要人工照明,因此白天的能源消耗也很少。
Extruded House 提醒我们,坦诚和清晰不需要留给有钱人,质量是一个真实的目标,而不是数量。需要挑战标准,以提升我们自己的经验,改进我们所知道的,并为了发明的心。
About
MCK Architecture & Interiors
是一支由屡获殊荣的建筑师组成的年轻团队,总部位于澳大利亚悉尼。 他们专注于对环境和简短敏感的高质量完成和细节的住宅和商业项目。 他们独特的美学以其经典的比例和几何形式而闻名。 他们喜欢使用意想不到的材料,这些材料具有挑战性,有时甚至令人惊讶……
项目名称:Extruded House
建筑公司:MCK Architects
项目地点:Neutral Bay, NSW, Australia
项目摄影:Willem Rethmeier
主笔建筑师:Steve Koolloos
设计团队:Jarad Grice, Ahron Best, Isabelle Orr
室内设计:MCK Architects
建筑面积:251.2501349m²
地块面积:651.2501349m²
设计年份:2016
完成年份:2018
结构工程:SDA Structures
景观设计:Mariko Design
灯光设计:Euroluce
项目建造:TOKI Constructions
主要材料:Cavity off-form concrete
业主甲方:Private
项目状态:Completed
项目类型:Residential › House
客服
消息
收藏
下载
最近








































