查看完整案例

收藏

下载
规划 | 工作室 | 主卧室 | 客房 | 主浴室 | 儿童卧室 | 定制家具
规划
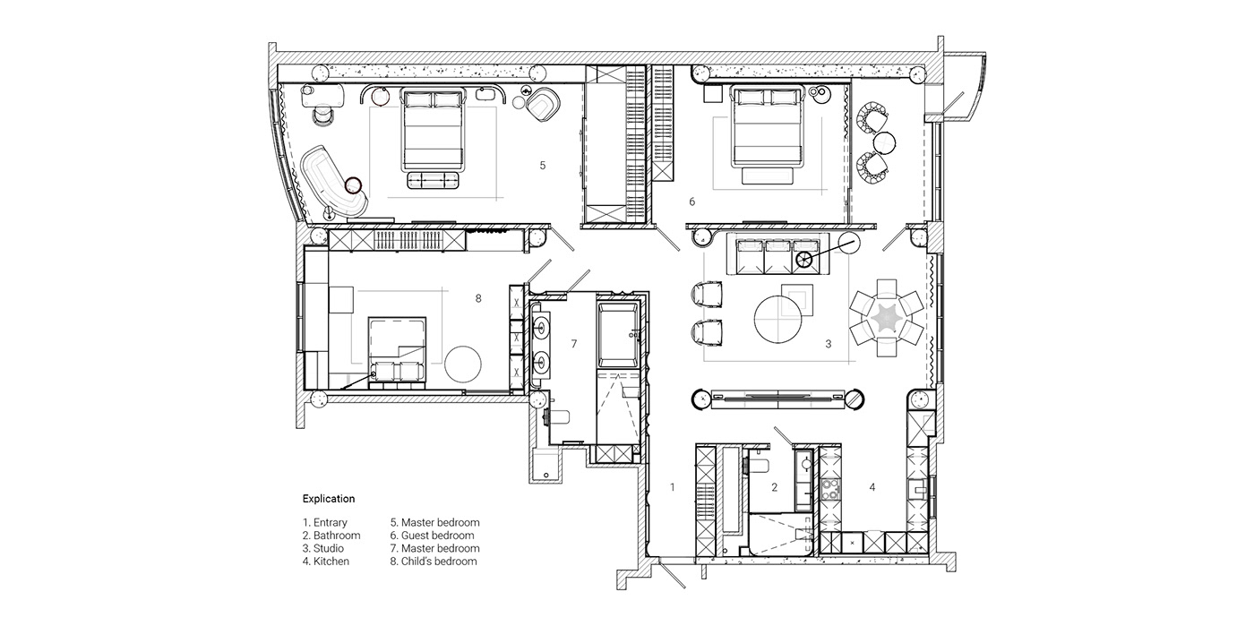
一对有孩子的夫妇的住所应该在隐私和热情好客之间取得完美的平衡——这是在哈尔科夫市中心一条安静的街道上建造公寓的主要原则。 房屋分为公共和私人街区:第一个包括工作室、厨房和客房,第二个包括主卧室和儿童卧室。 两个单元都有独立的浴室 - 这是客户的一个重要愿望。 卧室是独立的空间:每个卧室不仅有休息的地方,还有工作、运动或咖啡的地方和充足的存储空间。 工作室分为软区和用餐区以及独立的小厨房。
工作室为房间选择了温暖的色彩、舒适的材料和流线型的形状。 工作室和厨房使用两种类型的饰面和红色调,类似于小麦和成熟苹果的颜色——通过这种联想,公寓变得舒适和好客。
不需要大厨房,所以它被紧凑地隐藏在“口袋”中,作为专门的技术室。 厨房逐渐流入与客厅相关联的用餐区。 通向整个楼层的窗户可以欣赏到历史悠久的市中心的美景,让您从屏幕上分心,享受现场交流和沉思——主人需要一张六人桌来招待客人。 区域的划分不仅是由于家具的规划和布置——每个区域都有设置特定情绪的本地光源。
其中一面墙壁装饰有大理石纹理的墙纸,因此变成了一块大画布,将起居区分隔开来。 主要光源是聚光灯,它发出柔和的漫射光,接近自然。
不需要大厨房,所以它被紧凑地隐藏在“口袋”中,作为专门的技术室。 厨房逐渐流入与客厅相关联的用餐区。 通向整个楼层的窗户可以欣赏到历史悠久的市中心的美景,让您从屏幕上分心,享受现场交流和沉思——主人需要一张六人桌来招待客人。 区域的划分不仅是由于家具的规划和布置——每个区域都有设置特定情绪的本地光源。
独立的客用浴室是该项目的一个重要条件:为其分配了所需的最小面积,但为了在视觉上弥补这一点,选择了白色瓷砖、波纹玻璃和镜子来装饰墙壁。 这里唯一的黑暗元素是一个石头制成的水槽。
主卧室主卧室中使用的主要笔画是深色调与浅色调的交替,几乎是亚麻色的——它使房间富有表现力,同时延续了主题,从工作室的暖色调开始。 这个房间的主要特色是由项目作者设计的柔软床头板。 房间的比例被拉长,因此为了使其几何形状更有趣,在床上方布置了装饰灯作为额外的光源。
客卧客卧与其他房间的不同之处在于它的克制。 这是一间明亮的小房间,其中一面墙饰有石膏板,质地类似笛子。 在旁边的墙上,这种垂直的节奏变成了纺织品的褶皱——简单的配色方案辅以特定的几何形状。
主浴室
主浴室是单色的,带有一丝平衡的口音。 与客房一样,内敛的色彩不等于单调——房间以大理石和瓷砖图案的纹理变化。 两面镜子不仅具有功能作用,通过在对面墙壁的白色墙壁上反射黑色瓷砖,它们设置了这个房间的垂直节奏。
儿童卧室
孩子的房间采用温暖的中性色调,室内设计的方式是不需要随着孩子的成长而做很多改变。 有一张宽敞的床、一个自然采光的舒适工作场所、一堵瑞典墙和充足的储物空间——任何年龄都需要的通用物品。
定制家具
项目:GW APARTMENT
设计师:Maksim Muratov, Alesya Manko, Arina Pinchuk
年份:2020
状态:进行中
地点:乌克兰,哈尔科夫
作者: Ego House Architects
图片@ Ego House Architects
语言:英语
客服
消息
收藏
下载
最近












































