查看完整案例

收藏

下载
项目名称
香草舒芙蕾
项目地址
中国 · 重庆
江与城 · 翡翠岭
设计团队
李晶 何俊桥 刘佳
“不仅是历史的见证者,更是瓷韵流转,香草轻舞的艺术空间”
by. 合理空间
主人静坐院落,捧着一本未读完的书,手指梳理着柴犬的毛发,柴犬的眼睛半眯,尾巴轻摇。
午后阳光透过树叶洒落,一种宁静而惬意蔓延。
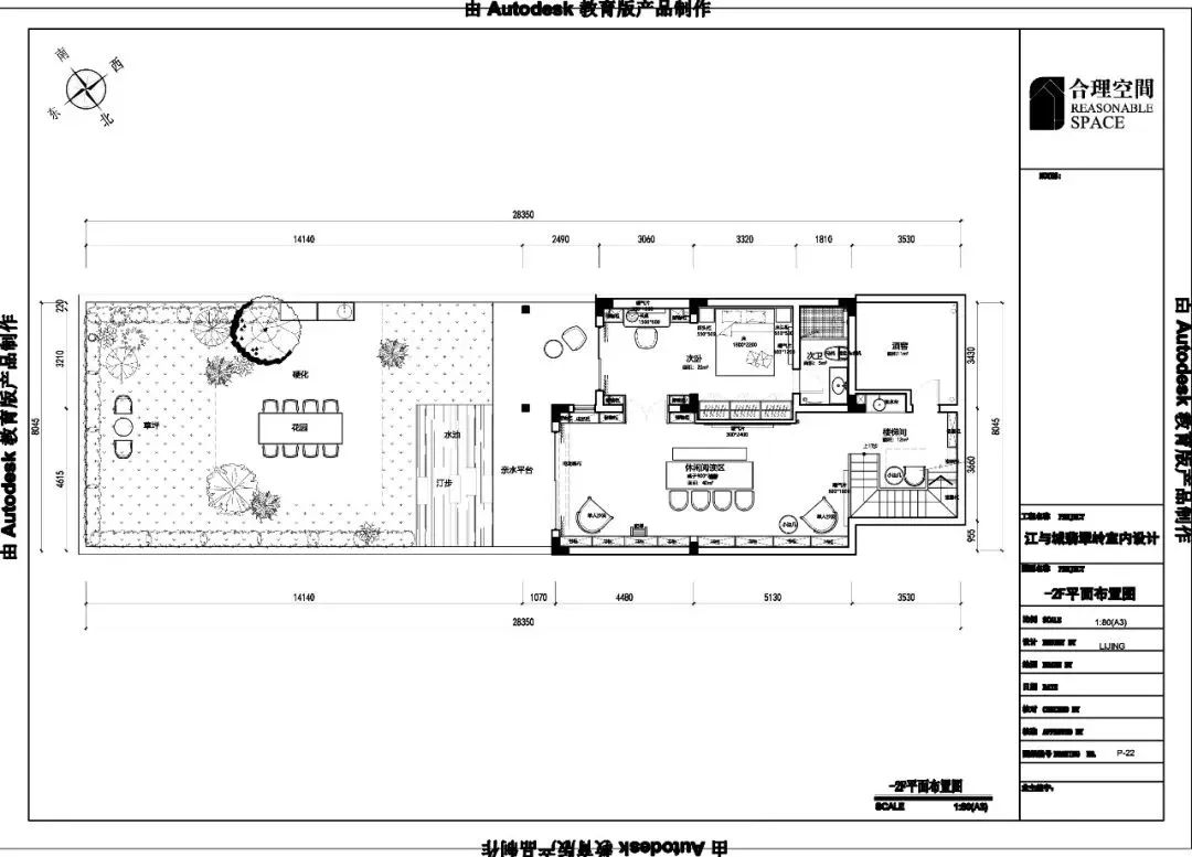
△ -F2平面布置图
Herbed Soufflé
绿意盎然与休闲阅读
双重享受
映入眼帘的是绿意盎然的花园,各种香草植物散发出淡淡的香气,让人置身于自然之中。
书籍陈列的阅读区,这里是业主品茶、读书的理想之地。
书架的设计简约而不失格调,木质材料带来温暖自然的触感,与整个阅读区的风格相得益彰。
在客厅的一角,是业主钟爱的瓷器展示区。
这里陈列着各式各样的瓷器茶具,每一件都凝聚着艺术与历史的精髓。瓷器在柔和的灯光下熠熠生辉,仿佛诉说着一个又一个动人的故事。
设计师何俊桥:“负二楼还设有一个次卧,次卧的设计同样注重舒适与实用,简洁的线条和温馨的色调为宾客提供了一个舒适的休息空间。”
△ -F1平面布置图
Herbed Soufflé
历史与瓷器的交织
美食与欢聚的殿堂
从负二楼拾级而上,来到负一楼的客厅。奶色系微水泥的墙面与地面营造出一种柔和而温暖的氛围。
软装刘佳:“厨房采用了开放式设计,大理石纹理的灶台搭配实木橱柜和黑色烤箱,既体现了现代家居的时尚感,又满足了厨房的收纳和烹饪需求。”
厨房空间通过一个宽大的窗户与室外相连,使室内空间得到了自然的延伸。窗外的一抹绿意与室内温馨舒适的装修相得益彰,是家庭聚会和朋友聚餐的理想场所。
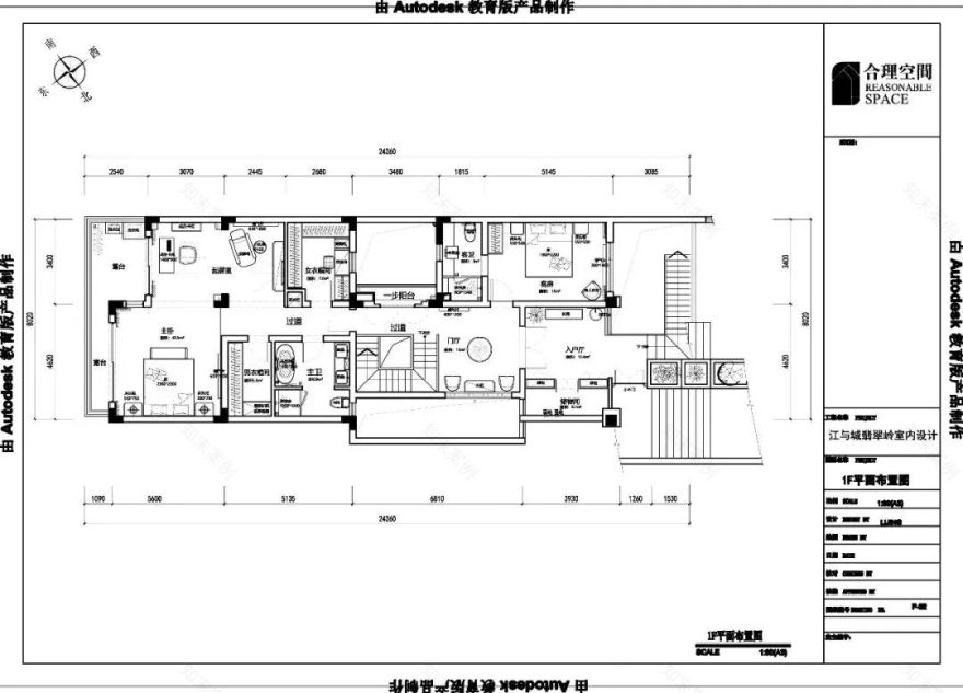
△ F1平面布置图
Herbed Soufflé
静谧私享
休憩时光的宁静角落
设计师李晶:“木质地板的使用增添了一分自然和温暖的气息,同时也提供了良好的脚感和耐久性。大窗户的设计则让自然光充分进入房间,增强了室内的明亮度,同时也让居住者能够享受到窗外的自然景色。”
软装刘佳:“天花板上的吊扇不仅为房间提供了通风的功能,还成为一种装饰元素,与整个空间的风格相得益彰。
大床放置在房间中央,使得空间得到充分利用。旁边的椅子和桌子提供了一个休闲和阅读的角落,为居住者提供了更多的活动空间。”
在这片充满瓷韵与香草气息的艺术空间中,我们仿佛跨越了时空的界限,与历史对话,与艺术共鸣。
书籍、茶具、绿色植物和精致的装饰品共同构建了一个宁静而高雅的世界,这里不仅是历史的见证者,更是瓷韵流转、香草轻舞的艺术空间。
客服
消息
收藏
下载
最近







































