查看完整案例

收藏

下载
房子,Snedsted,丹麦
设计师:Puras Architecture
面积: 126 .2501349m²
年份:2021
摄影:Mads Bjerre Madsen
首席建筑师:Søren Sarup
模板承包商:Brunsgaard A/S
结构工程:Caspersen Rådgivende Ingeniørfirma
岩土研究:DMR
混凝土结构:VBton
活力工程: LNI Rådgivende Ingeniørfirma
内饰:Maj Hartov
混凝土地板:Flib Beton ApS
城市:Snedsted
国家:丹麦
设计师描述 | Designer description:
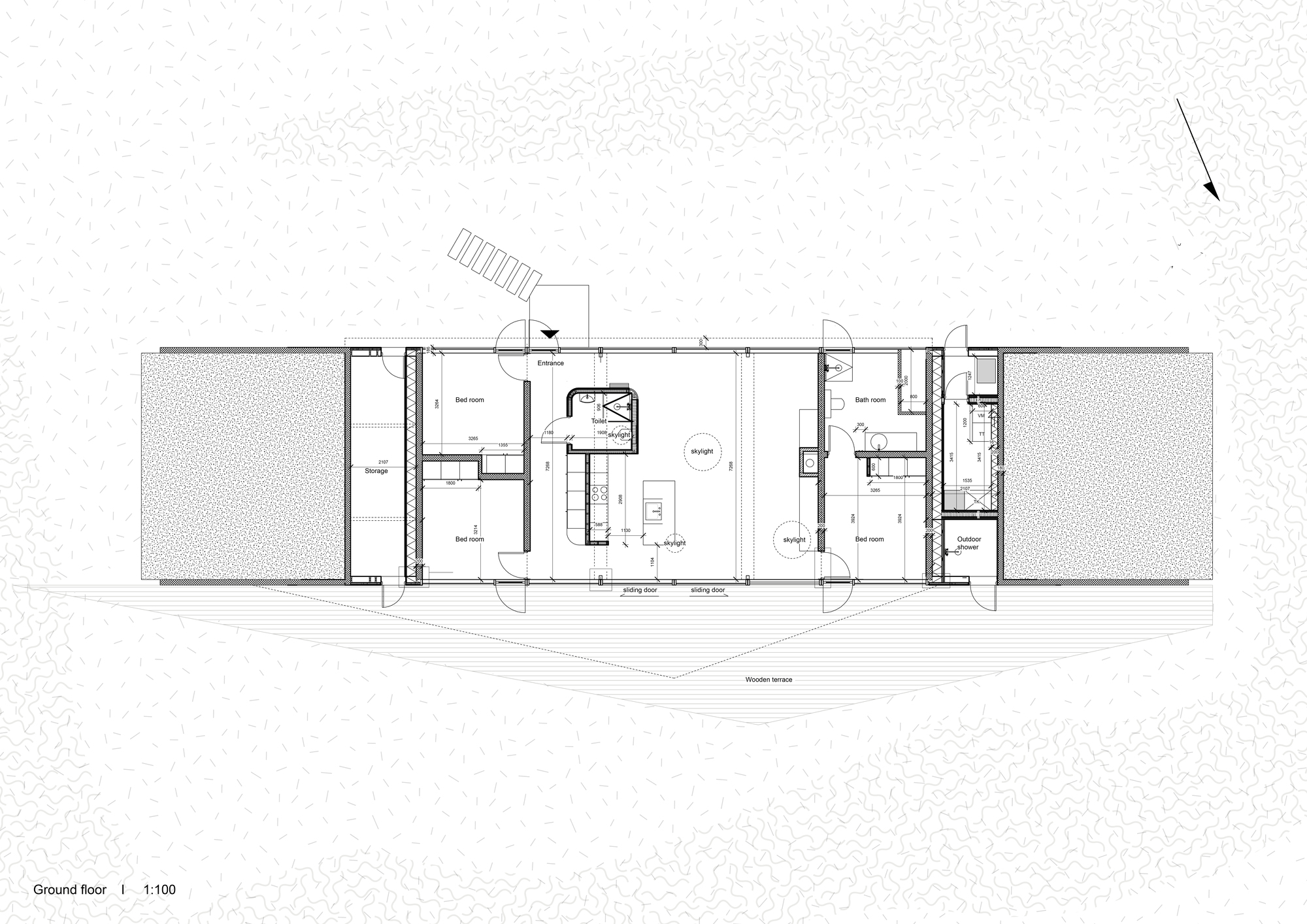
The holiday home in the Thy National Park on the Danish North Sea coast hides in nature due to its green roofs extending deep down. As the glazed front and back façades allow views right through the house, it seems to merge with its surroundings. At the same time, it confidently occupies a wide space and makes a statement with its striking triangular shape. Only at a second glance, it becomes apparent that the building is not made of wood but built of concrete. The floors, walls, and ceilings have a raw, solid appearance.
The glass façade, in contrast, brings nature into the house and allows for lightness and interiors immersed in light. Wood panelling and wooden furniture add cosiness to the cool ambience. The furnishings are a mix of Danish vintage design classics and contemporary pieces.
Bold colours – for example, the blue kitchen with a yellow wall, a red shelf or the bright orange bathroom – give the rooms personality and put guests in a good mood. In the bedrooms, the ambience is determined by raw concrete surfaces and the view of the green surroundings.
The beating heart of the 125-square-metre house is the central living area, which extends right up to the concrete gable. The bedrooms adjoin at the sides: the master bedroom with en suite bathroom and, opposite, two further bedrooms that share a bathroom. An outdoor terrace facing south echoes the triangular shape of the house. An outdoor shower located in a niche ensures refreshment on warm days.
项目完工照片 | Finished Photos
设计师:Puras Architecture
语言:英语
客服
消息
收藏
下载
最近































