查看完整案例

收藏

下载
北京,中国
Beijing, China
让空间成为有层次的记忆
Adding the dimension of time, reading spaces as layers of memory
融典餐饮旗下的高端创意品牌SOMESOME对美食体验有着大胆的理解:它可以是既现代又经典的,也可以是既时髦又有艺术感的。SOMESOME团队携手MARS星球建筑,对即将开设于北京三里屯太古里的餐厅进行了全面的空间设计与品牌诠释。身处繁华的商业中心,业主与设计师却并不愿意让就餐体验完全融入其中,而是希望为顾客打造一座闹市中的庇护所。
室内概览,overview of the interior space
亲密感 | Intimacy
正如一道美食需要各种风味进行调和并使之相得益彰,空间设计也不是对共享或亲密氛围的单一化营造,而应当是这两者的交融。从开放到半围合,再到完全私密,就餐区域被多次划分,最终形成了以一张或一组餐桌为中心的“茧”式空间。在这里既可以一起分享快乐与风景,也可以完全沉浸在自己的美食体验中。
餐厅入口,the entrance
卷曲 | Warp
如果说基于正交体系的直线和平面传递了理性主义的原则,那么“卷曲”的面则包容了更为丰富的个性:延伸或收拢,迎接或拒绝,引导或“囚禁”…… 在SOMESOME餐厅中,“卷曲”的面成为了表达对不同城市界面采取不同态度的关键媒介:当朝向喧闹的公共入口时,它筑起一道厚实的外壳,视线只能通过“挖凿”出的“山洞”瞥见一隅;而面向一览无余的窗外风景时(巨大的折叠窗可以完全开启),它又变成了薄薄一片,视线与空气在其搭建而成的十字拱矩阵中自由穿梭。
“卷曲”的面,warped surface
进入餐厅,entering the dining area
主餐区,dinner area
主餐区,dinner area
吧台一角,view of the bar
细部,details
“山洞”是实与虚、开放与私密的临界。每个十字拱由地面向上生长,延伸至顶面交错至另一侧落下,创造出半私密的“茧”式空间环境。
拱形结构与城市界面,arched structure and urban interface
利用拱的框架来取景,创造空间的几何对称
Use the frame of the arch to frame the view, creating geometric symmetry
“茧”,cocoons
大厅就餐区连续的十字拱带来的秩序感
The repetition of arches in the main dining hall generates rhythmic tempo
大厅就餐区连续的十字拱带来的秩序感
The repetition of arches in the main dining hall generates rhythmic tempo
每个拱券下的瞥见一隅又形成新的构图Surprisingly, the different angles under each arch form a new composition
每个拱券下的瞥见一隅又形成新的构图
Surprisingly, the different angles under each arch form a new composition
递进 | Progression
将时间的维度加入到认知体验中,能够使空间成为有层次的记忆。与大厅就餐区连续的十字拱带来的秩序感相比,在“挖凿”出的“山洞”间穿行则是一层一层逐步解开好奇心的体验——钻进深深的入口门廊,穿过另一道“山洞”进入卡座区,再穿过一道门才能进入包厢(也许最终要到达的是洗手间)。
在“山洞”间穿行,moving through the deep thresholds
卡座区,banquette
在当中行进时,空间被不断地挤压和释放,遮蔽和揭示, 好奇心在抵达终点时达到高潮。卡座区对称布置的两面镜子制造出戏剧性的视觉幻象,层层递进的空间体验在这里无限延展。
镜子营造戏剧性的视觉幻象,illusion of an infinite journey
从卡座区看向包房,view of the private dining area from the banquette
折叠式玻璃窗被打开,面向一览无余的城市风景
Open the folding glass windows to face the unobstructed window view
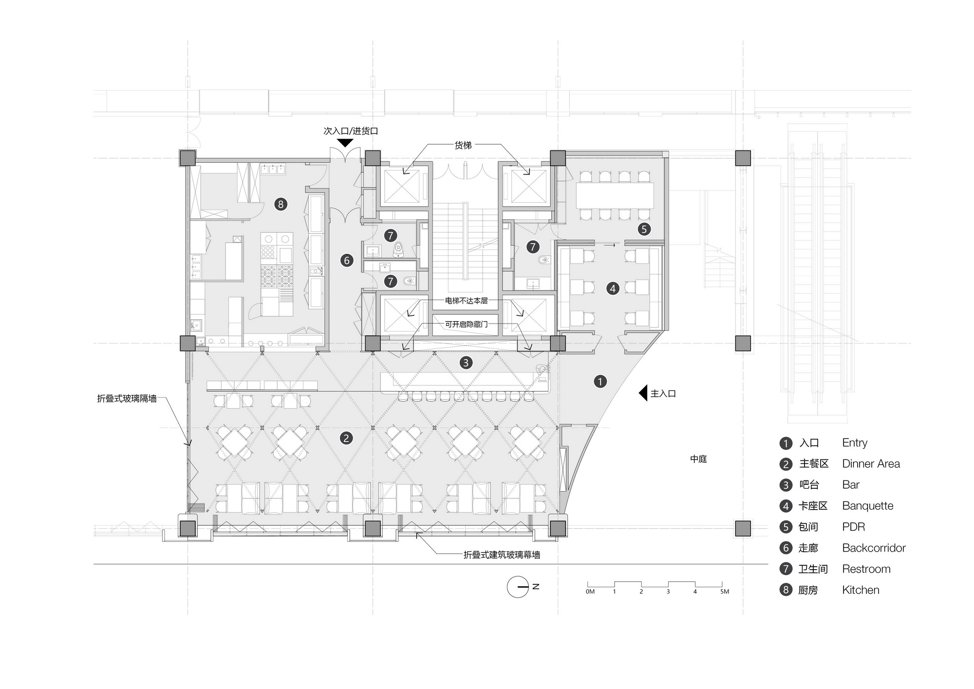
平面图,plan
项目名称:SOMESOME酒吧餐厅
设计单位:星球建筑事务所
设计时间:2020.11 – 2021.05
项目位置:北京三里屯,中国
建筑面积:306平方米
主持建筑师:马宁
项目负责:赵雪
设计团队:余杰翀,郭东远,刘亚辰,朱克,秦政
摄影:UK Studio
客服
消息
收藏
下载
最近























