查看完整案例

收藏

下载
项目为一座位于加州索诺玛乡村山顶的混凝土框架结构住宅。扎根于森林峡谷以及葡萄园所在的高原之上,这座网格结构的住宅最大限度地实现了内外的连接,允许自然采光的情况下,各房间还可直接通向外部。环绕房屋三面的凉廊,不仅为下方的生活空间提供遮阳,也为住户置身二层露台欣赏广阔视野创造了机会。
▼项目概览,Overview ©Bruce Damonte
A concrete framework establishes the structure and rhythm of Frame House, a residence atop a hill in the Sonoma countryside. Rooted on a plateau above a forested canyon and vineyards, this structural grid maximizes the connection between the inside and out, allowing for natural light and direct access to the exterior from almost every room in the house. The loggia, which wraps three sides of the house’s perimeter, shades the living spaces below, and provides access to expansive views from the second level decks.
▼轴测图,Axonometric diagram ©Mork-Ulnes Architects
房屋外部使用有机、质朴的防火材料,以抵御山火威胁。频发的山火危害使此前的住宅受到了损坏,为了保护新家,设计团队在构成内部结构的混凝土剪力墙柱之间覆盖了一层灰色木质护墙板。缜密的混凝土框架也为空间创造了一个可以俯瞰建筑内外景色的平台。
The materials of the house are organic and rustic in their appearance and tactility, while providing resilience against the threat of the wildfires which have become prevalent in the Sonoma valley and damaged the previous residence on the site. To protect the new home, concrete shear walls are clad in a sacrificial layer of greying wood siding between the columns, which also organize the interior spaces. This rigorous concrete framework creates a perch from which to take in the vistas of the property and beyond.
▼项目外观,Exterior ©Bruce Damonte
▼框架结构近景,Detailed view of the concrete frame structure ©Bruce Damonte
与覆盖防火材料的外部不同,室内则采用北美黄杉木作为装饰材料。房子与周围的景观形成一种外向的关系,使每个房间与加州的季节变换形成紧密的联系。空间内部,房屋围绕着厨房上方连接两层楼的双层通高空间展开,并由一个悬空的T型走道通向侧翼的两间卧室。
▼餐厨空间,The kitchen area ©Bruce Damonte
▼从餐厨空间望向室外,View from the kitchen area to the outside ©Bruce Damonte
▼北美黄杉木打造的厨房空间,The kitchen is lined in Douglas Fir ©Bruce Damonte
In contrast to the exterior of the house, clad in a fire-proof armor, the warm interiors are lined in Douglas Fir. The house has an extroverted relationship to the surrounding landscape, connecting the interior in almost every room to the California climate. On the inside, the home is organized around a double height space over the kitchen that connects the two levels and is punctuated by a floating catwalk leading to the two bedroom wings upstairs.
▼悬空的T字形通道,The floating catwalk ©Bruce Damonte
▼T字形通道通向两间卧室,The floating catwalk leading to the two bedroom ©Bruce Damonte
住宅内部包含4间卧室,4.5个浴室,媒体室以及一间4000平方英尺的大房间,室内家具由Charles de Lisle团队策划。这片占地18英亩的房产另有一座包含3间卧室,3间浴室的混凝土结构客房,同样由Mork-Ulnes Architects设计,Charles de Lisle负责室内设计。花园、菜圃以及游泳池则由Surface Design设计。
The program of the house contains 4 bedrooms, 4.5 baths, media room, and great room in 4,000 square feet, with interior furnishings curated by The Office of Charles de Lisle. The 18 acre property includes a 3 bedroom, 3 bath all concrete guesthouse also designed by Mork-Ulnes Architects and with interior by Charles de Lisle. The garden, vegetable beds, and pool were designed by Surface Design.
▼卧室内景,The bedroom ©Bruce Damonte
▼浴室,The bathroom ©Bruce Damonte
▼项目夜景,Night view of the project ©Bruce Damonte
▼区位图,Site map ©Mork-Ulnes Architects
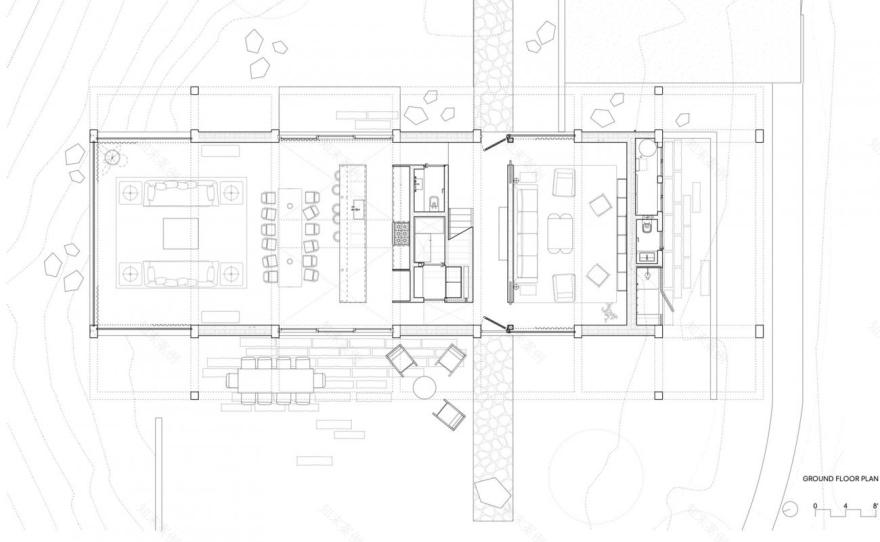
▼一层平面图,Ground floor plan ©Mork-Ulnes Architects
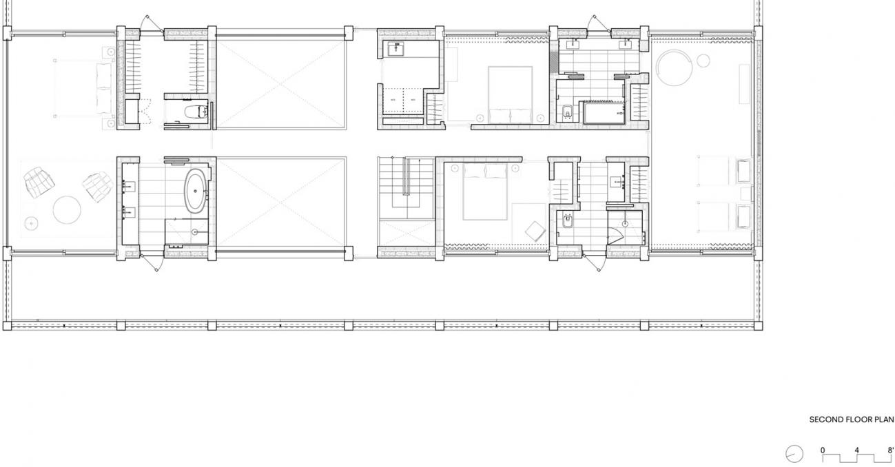
▼二层平面图,Second floor plan ©Mork-Ulnes Architects
▼剖面图1,Cross section 1 ©Mork-Ulnes Architects
▼剖面图2,Cross section 2 ©Mork-Ulnes Architects
▼纵切面,Longitudinal section ©Mork-Ulnes Architects
▼南立面图,South elevation ©Mork-Ulnes Architects
▼北立面图,North elevation ©Mork-Ulnes Architects
▼东立面图,East elevation ©Mork-Ulnes Architects
▼西立面图,West elevation ©Mork-Ulnes Architects
客服
消息
收藏
下载
最近
























