查看完整案例

收藏

下载
Casa Eri 是一栋适合有 2 个孩子的家庭的房子。这家人目前住在东京的一套公寓里,但想搬出市中心,靠近祖父母的房子。在寻找建造新房子的地方后,他们决定将其建造在与祖父母相同的地块上。
我们想设计新房子,保留现有祖父母房子的价值、景观和阳光。同时,我们想为家庭设计一个户外空间。
当我们第一次访问该网站时,业主带我们参观了该物业以与邻居见面。我们从花园开始参观,经过邻居的田地,到后院,到邻居的院子……院子和花园的关系就像邻居之间的关系一样流畅自然,就像家人之间的关系一样自然.我们想设计一所属于这种环境的房子。
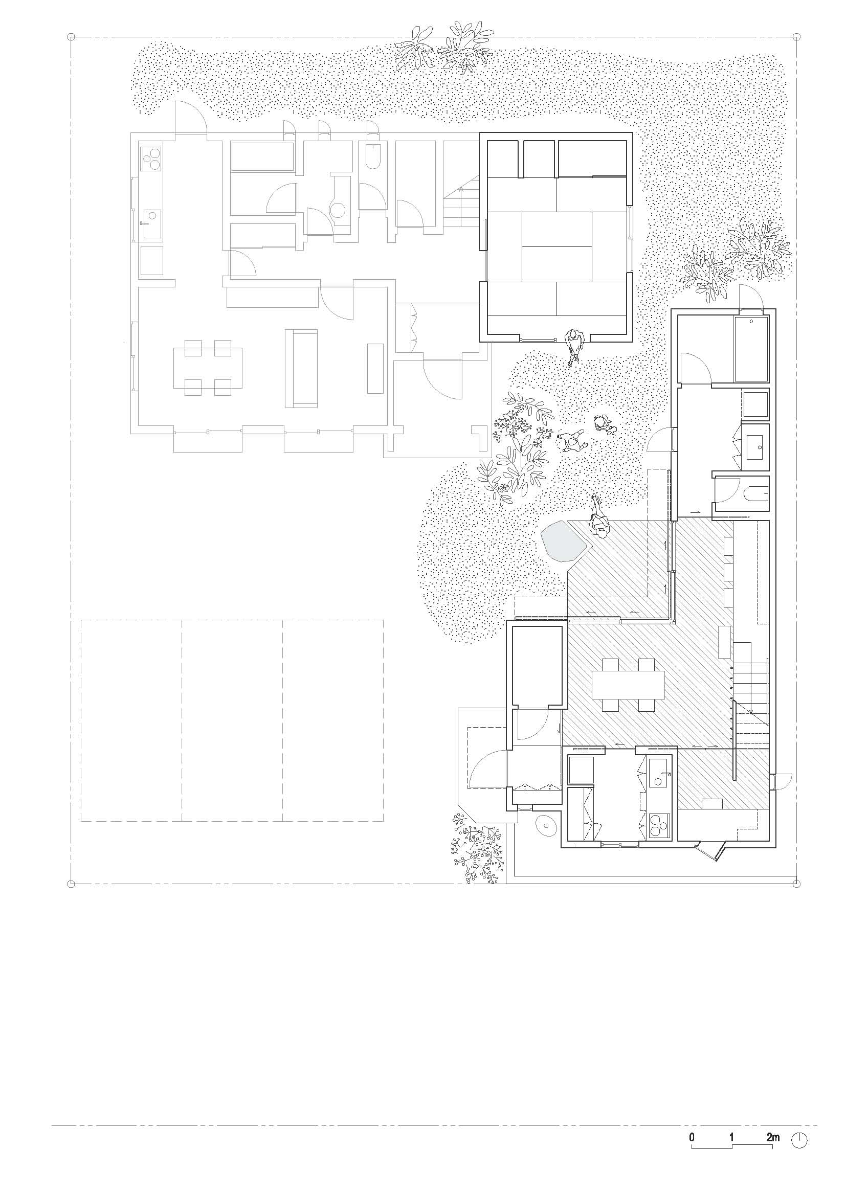
祖父母家的底层有一间榻榻米房,供侄女们玩耍和住宿。这里也是每年展示日中纱(少女的节日装饰品)的房间。我们围绕这个区域设计了新天井和新房子,在两座房子之间创造了一个户外空间,一个天井。家庭聚会的地方,同时保持独立和隐私。
房子的起居空间、餐厅和“goro goro”空间都是围绕着这个户外露台开发的,而宿舍则被放置在二楼,设计成一个榻榻米房间。宿舍壁橱的推拉门采用日本传统隔扇装饰,以表现住户的性格。一楼还设计了一个工作站,可以与起居区连接或隔离,并特别注意光线和隐私。
原本在日语中“goro”象征着东西滚动的声音,所以goro goro用于谈论躺下或翻身。随着时间的推移 goro goro 在家里躺着,花时间做任何特别的事情。这就是我们想象的生活区,goro goro 空间,一个灵活的区域,每个家庭成员都可以在其中决定做什么和怎么做。一个可以躺着、坐下、走路、阅读、绘画、观看、折纸、花道……或什么都不做的流动空间。这个空间位于餐厅和二楼宿舍之间,在夜间活动和日常功能之间增加了一个新的维度。是一家人、父母、孩子放松、聚首、交流、交流的场所,是一个积极放松的空间。 Goro goro space 是孩子们将来会记住的地方。
在二楼,我们发现宿舍的推拉门被装饰成日本传统的隔扇,以表达居民的性格。
平面与结构图:
设计师:YSLA Architects
坐落:Tokyo / Japan / 2021
语言:English
客服
消息
收藏
下载
最近



















