知末
知末
创作上传
VIP
收藏下载
登录 | 注册有礼

Seeya Nail 美甲美睫店室内设计丨中国深圳丨三思设计工作室

2024/04/26 10:59:00
查看完整案例
微信扫一扫
收藏
下载
这是一个39平面积的店面,业主是一对情侣,第一次开美甲美睫店,女孩子比较喜欢暗调氛围感诧寂风,找了很多类似的风格参考给我,但由于店面空间有限,而且是处于公寓写字楼里面,在我再三的建议下,减少了大面积的暗调,选用当下流行的奶油微法式的风格
Seeya Nail 美甲美睫店室内设计丨中国深圳丨三思设计工作室-1
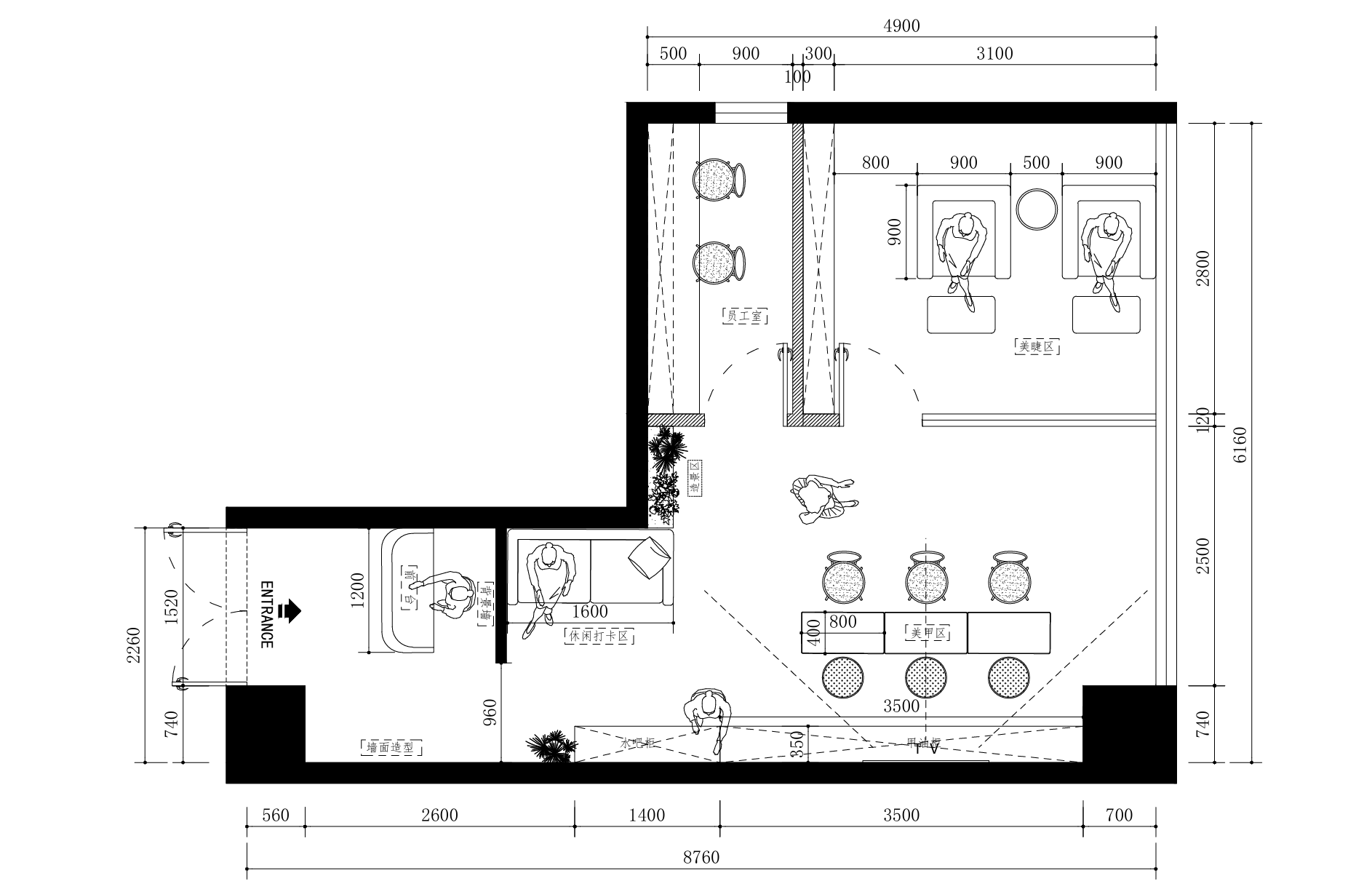
空间规划
Seeya Nail 美甲美睫店室内设计丨中国深圳丨三思设计工作室-3
进门处前台
Seeya Nail 美甲美睫店室内设计丨中国深圳丨三思设计工作室-5
美甲工作区,结合水吧台
Seeya Nail 美甲美睫店室内设计丨中国深圳丨三思设计工作室-7
角落造景
Seeya Nail 美甲美睫店室内设计丨中国深圳丨三思设计工作室-9
一个靠窗边的休闲区
Seeya Nail 美甲美睫店室内设计丨中国深圳丨三思设计工作室-11
法式门框,做侧推门
Seeya Nail 美甲美睫店室内设计丨中国深圳丨三思设计工作室-13
美睫区
Seeya Nail 美甲美睫店室内设计丨中国深圳丨三思设计工作室-15
水吧台衔接入口和工作区,做水吧台的同时还是个装饰区域
关于三思设计工作室
Seeya Nail 美甲美睫店室内设计丨中国深圳丨三思设计工作室-18
南京喵熊网络科技有限公司 苏ICP备18050492号-4知末 © 2018—2020 . All photos and trademark graphics are copyrighted by their owners.增值电信业务经营许可证(ICP)苏B2-20201444苏公网安备 32011302321234号
客服
消息
收藏
下载
最近