查看完整案例

收藏

下载
房屋,翻新,巴西圣保罗
设计师:Play Arquitetura
面积: 1075 .2501349m²
年份:2019
摄影:Fran Parente
原建筑建筑师:Henrique Cambiaghi
负责建筑师:Juliana Figueiró e Marcelo Alvarenga
项目团队:Daniela, Felipe e Isabella
业主:Helena, Daniela e Vicente
执行:Construtora Lock
城市:São Paulo
国家:巴西
设计师描述 | Designer description:
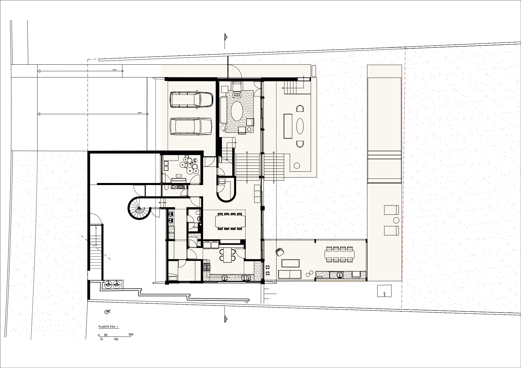
这所房子由 Henrique Cambiaghi 于 1980 年代设计,其混凝土结构的美丽设计、大木窗和土地后面的树木景观吸引了客户。然而,它有一个非常规的特点:厨房在楼上,这导致最后的业主乱改,他们建造了与原房屋没有建筑联系的附属建筑。
此外,下层的社交区域没有与花园或厨房融为一体。 另一个拥有美丽比例的大型社交空间占据了房子的中间层,也没有很好地与花园和景观连接,最终没有得到充分利用。
在改造工程中,中层成为房子的主要生活区,厨房被转移到下层,连接餐厅和新的休闲区。 为了更好地整合这两层楼,我们重新设计了主楼梯。
主要入口也发生了变化; 以前通向较低楼层的社交入口经过修改,可以通过在侧面挫折中创建的走道进入中间层。该池也进行了重新设计和重建,因为旧池不尊重现行法律要求的资金提取。
正面的主要视觉变化是创造了垂直木鳍,覆盖了各种各样的窗户——浴室、储藏室、洗衣区等——面向街道。
项目完工照片 | Finished Photos
设计师:Play Arquitetura
语言:英语
客服
消息
收藏
下载
最近























