查看完整案例

收藏

下载
当生活的琉白素瓦有岁月磨痕的时候它或黯然失色,
或格格不入,
或疏疏残雪把时间暂停在那里
当一切重生,
银白金黄一身的时候它或飞秋似雪,
或焕然一新,或诗意栖居把生活重新梳理了一翻
项目原始大堂▲
沉淀视觉
光穿过植物迎着晚风
吹过每一处细节
空气之中弥漫着巧妙的设计
一窗一景一生活
将生活写成一页页信纸
把故事装进信封
把信寄到下一处目的地
如一层层紫陶碎瓦的堆叠的厚重感、层次感
似远梦归侵晓
古城好烟月
设计将美学代入空间
与原空间形成了鲜明的对比
长石灰木材的质感强烈
给人一种高贵、沉稳的感觉
再配上珍珠灰的高冷
项目原始客房▲
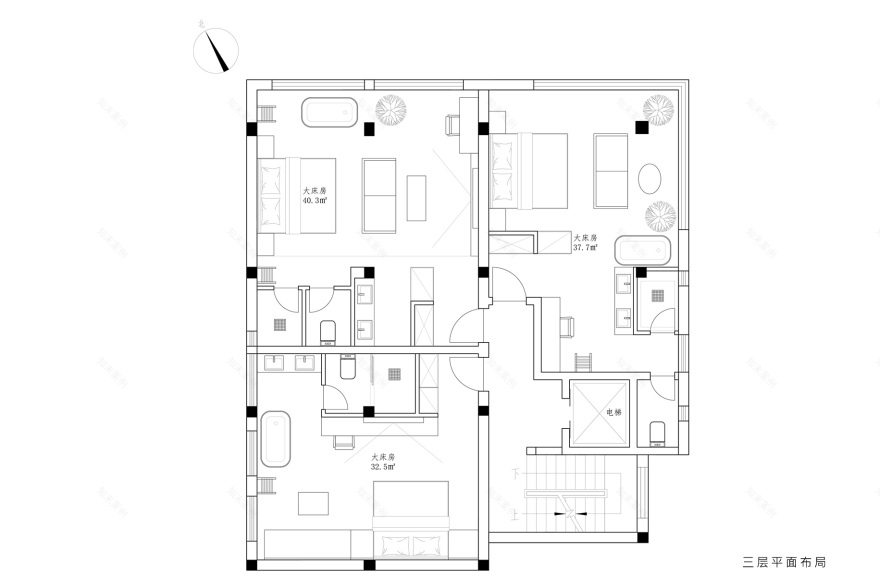
项目原始四层▲
项目信息
项目名称|喜宿
项目地址|云南 建水
项目业主|建水客喜住宿
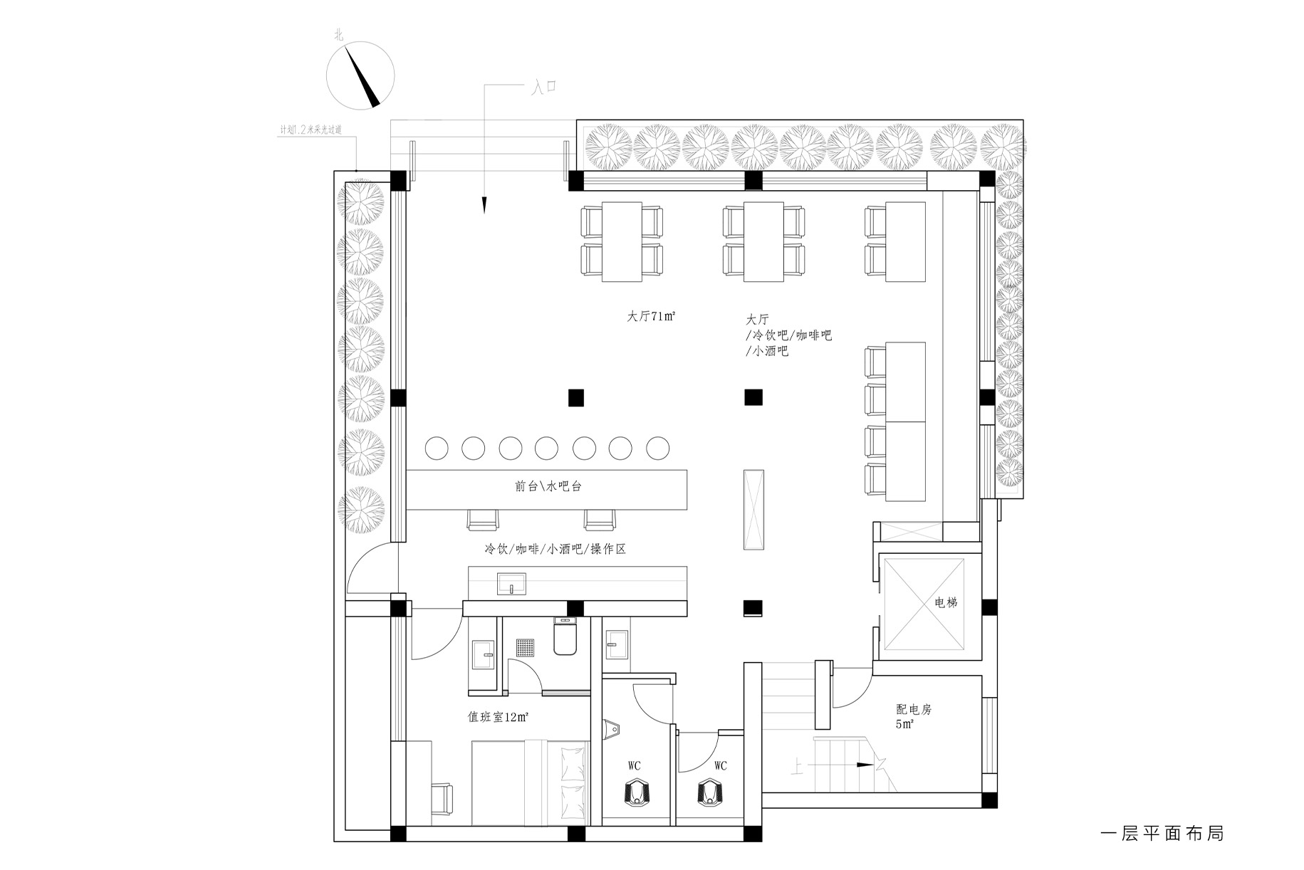
设计面积|591㎡
设计时间|2023.05
竣工时间|2024.01
全案设计|长空创作
设计主创|张宝华
参与设计|李泉江、张定远、李星瑶、王瑞、张庭恺、赵权
项目摄影|喜宿民宿
项目状态|已建成
客服
消息
收藏
下载
最近








































