查看完整案例

收藏

下载

翻译
Architects:Mork-Ulnes Architects
Area:411ft²
Year:2023
Photographs:Bruce Damonte
Manufacturers:Hansgrohe,Duravit,Blanco,Cembrit,Daltile,FLOS,Fleetwood
Design Team:Casper Mork- Ulnes, Phi Van Phan, Robert Scott, Lexie Mork-Ulnes, Kaoru Lovett
Job Captain:Kaoru Lovett
Structural Engineer:David Strandberg
Civil Engineer:Adobe Associates, Inc. (Aaron R. Smith)
Contractors:Damner Construction, Axelson Builders
City:San Anselmo
Country:United States
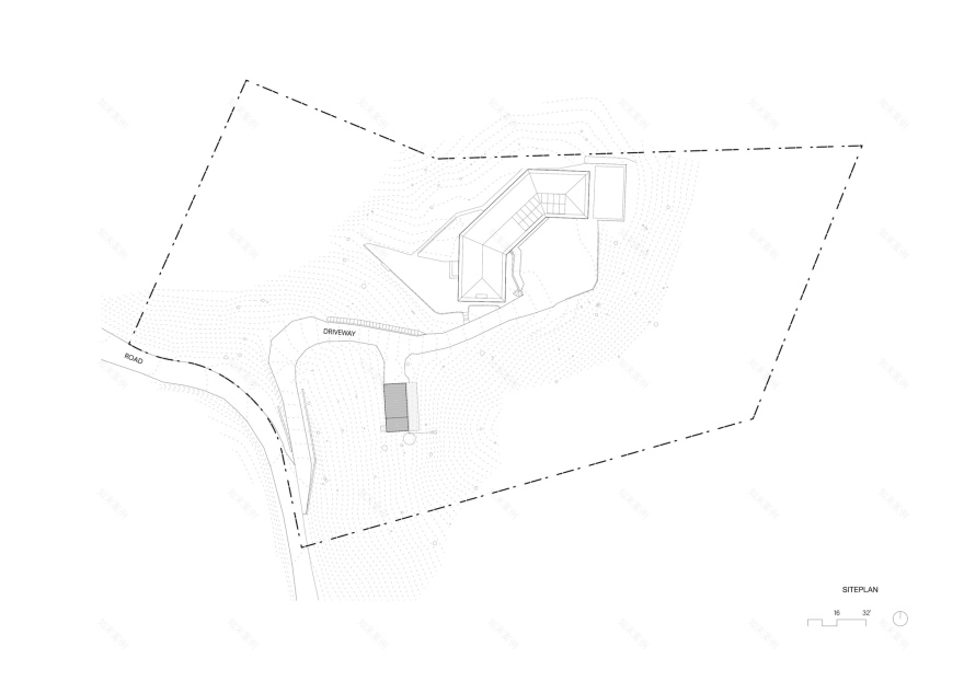
Text description provided by the architects. To create a small guesthouse and rental unit on a steep hillside property in Marin County CA, Mork-Ulnes Architects took the foundation from an old garage. They built a new Accessory Dwelling Unit (ADU) on the exact footprint of the old garage.
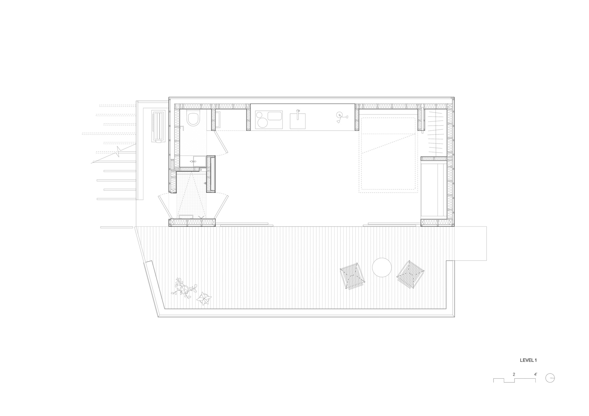
The building’s sharply angled roofline mirrors the site's slope and gives a high clerestory window light above the cabinetry wall, while a playful flip in the roof provides a punched window from the loft viewing the trees. Cement board was used to provide a fire resistant cladding in the wooded hillside, and also for ease of maintenance. Due to the incredibly steep hillside, a deck was added on the front of the ADU to add more usable exterior space to take advantage of the mild California climate, essentially doubling the ADU’s usable area.
Designing for the utmost effective square feet (411 sq. ft. / 38 square meters), flexible programming was deployed: a rolling kitchen island can be moved in or outside when space or utility is needed, and a Murphy bed hides in the wall during the day and folds down at night for sleeping. The loft space, with a window out towards the trees and down to the living space, is accessed by a ladder that tucks into the wall.
The bathroom is split into two smaller rooms – a toilet/sink and a forest-green tiled shower room with a glass door out to the tree-covered hillside. The ADU is currently being used by the owners as their vacation cabin while their main house is being renovated.
Project gallery
客服
消息
收藏
下载
最近





















