查看完整案例

收藏

下载
项目名称:意大利Jonction社区服务楼
位置:意大利
设计公司:Lacroix Chessex
该项目属于Jonction生态区。这座公共建筑服务于现有三座住宅的居民。它包括幼儿园、体育场、课外活动场所和多功能厅。在场地内,该建筑的设计原则需既与其他建筑区分开又保持联系。建筑的紧凑设计为新区节约出一块舒适的城市公共空间。该广场与一系列城市开放空间连成一体,一直通往Gazomètres大街的拐角处,为Artamis旧址增添了新的入口。该项目位于Saint-Georges大道,凭借其引人注目的设计强调了沿街立面的特点。该设计重新诠释了社区功能的公共建筑理念。三类建筑功能的空间分布十分清晰:成年馆(体育馆和多功能厅)位于底层,面向街道,儿童空间位于上层,通向天空。一个大型的混凝土平台结构与两者形成清晰的界限。该平台作为荷载分布板,解决了大跨度难题,并起到隔音作用。幼儿园则像一座大型砖砌建筑,建在平台结构之上。这个未来儿童世界沿向天空开放的中庭分布,让人想起童年时代的沙堡。该建筑仿佛一座城市环境中的小城堡,代表着安全的港湾,让孩子们可在城市中心场所中茁壮成长。
意大利Jonction社区服务楼外部实景图
意大利Jonction社区服务楼外部实景图
意大利Jonction社区服务楼外部实景图
意大利Jonction社区服务楼外部实景图
意大利Jonction社区服务楼外部实景图
意大利Jonction社区服务楼外部实景图
意大利Jonction社区服务楼外部实景图
意大利Jonction社区服务楼外部实景图
意大利Jonction社区服务楼外部实景图
意大利Jonction社区服务楼外部实景图
意大利Jonction社区服务楼外部实景图
意大利Jonction社区服务楼外部实景图
意大利Jonction社区服务楼外部实景图
意大利Jonction社区服务楼外部实景图
意大利Jonction社区服务楼外部实景图
意大利Jonction社区服务楼外部实景图
意大利Jonction社区服务楼外部实景图
意大利Jonction社区服务楼外部实景图
意大利Jonction社区服务楼外部实景图
意大利Jonction社区服务楼内部实景图
意大利Jonction社区服务楼内部实景图
意大利Jonction社区服务楼内部实景图
意大利Jonction社区服务楼内部实景图
意大利Jonction社区服务楼内部实景图
意大利Jonction社区服务楼内部实景图
意大利Jonction社区服务楼内部实景图
意大利Jonction社区服务楼内部实景图
意大利Jonction社区服务楼内部实景图
意大利Jonction社区服务楼内部实景图
意大利Jonction社区服务楼内部实景图
意大利Jonction社区服务楼内部实景图
意大利Jonction社区服务楼内部实景图
意大利Jonction社区服务楼内部实景图
意大利Jonction社区服务楼内部实景图
意大利Jonction社区服务楼内部实景图
意大利Jonction社区服务楼内部实景图
意大利Jonction社区服务楼内部实景图
意大利Jonction社区服务楼内部实景图
意大利Jonction社区服务楼内部实景图
意大利Jonction社区服务楼内部实景图
意大利Jonction社区服务楼内部实景图
意大利Jonction社区服务楼内部实景图
意大利Jonction社区服务楼内部实景图
意大利Jonction社区服务楼内部实景图
意大利Jonction社区服务楼内部实景图
意大利Jonction社区服务楼内部实景图
意大利Jonction社区服务楼内部实景图
意大利Jonction社区服务楼内部实景图
意大利Jonction社区服务楼内部实景图
意大利Jonction社区服务楼内部实景图
意大利Jonction社区服务楼内部实景图
意大利Jonction社区服务楼内部实景图
意大利Jonction社区服务楼内部实景图
意大利Jonction社区服务楼内部实景图
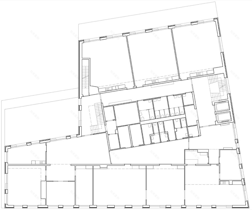
意大利Jonction社区服务楼平面图
意大利Jonction社区服务楼平面图
意大利Jonction社区服务楼平面图
意大利Jonction社区服务楼平面图
意大利Jonction社区服务楼平面图
意大利Jonction社区服务楼平面图
意大利Jonction社区服务楼剖面图
意大利Jonction社区服务楼剖面图
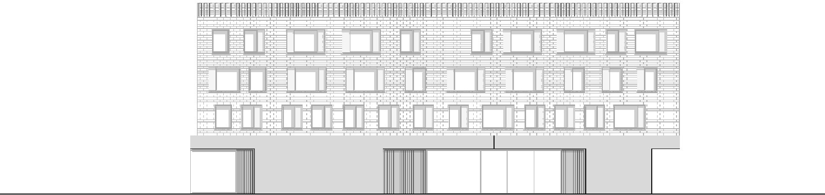
意大利Jonction社区服务楼立面图
意大利Jonction社区服务楼立面图
意大利Jonction社区服务楼立面图
客服
消息
收藏
下载
最近




































































