查看完整案例

收藏

下载
勤诚达正大城 位于光明新区光侨路与松白路交汇处,作为勤诚达集团22周年重点打造的项目之一,集住宅、公寓、商业、写字楼办公、学校为一体的大型城市综合体;无缝接驳地铁6号线光明首站,10 分钟抵达光明城高铁站,同时,龙大和南光双高速免费通行,外环高速快速贯穿深圳六区,互通深莞惠,打造广深港澳湾区一体化大都会生活圈。
大城六时辰之食时【猫咖】P1
▼ 拿起耳机 “机”动一下
你可能不知道的事......
吸猫吸狗正在渐渐变成一种主流的生活方式!
其实,根据马斯洛需求理论,消费行为将逐渐从物质享乐向精神愉悦转化,而体现为一种对爱和归属感的强烈需求。那么,如何平衡好人与动物之间的关系?又如何让他们融入生活当中,成为家的一部分呢?
猫喜欢跳跃、攀爬、窥探、晒太阳、睡觉。
和我们一样,在不同的时辰。
猫也会有自己的生活方式于是依据猫的生活习惯我们尝试在空间当中设置出猫的活动空间。
除了强调空间固有的机能外每一个空间都能找的到猫与人互动的影子同时暖暖的色彩更是强化了空间的舒适度氛围及慵懒情调。
使用功能与活动区的完美融合,多功能桌即应用于餐饮也能用于阅读让空间得到了最大化的利用也加强了人与动物的互动。
除了在功能性的设置外,在每一件物件上让能发现很多趣味和惊喜让宠萌形象更好的融合于生活当中。
大城六时辰之日中【筑梦】P4-1
一个有趣的灵魂之家总是充满了艺术感与个人魅力在仅有的空间上尽可能的延展,在空间中尽情的挥洒想象的笔墨。
而真正能够融入生活之中的也有可能是一个简洁朴素的空间。
去掉时尚的标签之后也要回应生活的琐碎也要舒展心内的诗意。
就像你看不见的是风但是你看的见树叶在摇曳。
在你看的见的部分感受到看不见的存在。
每一根线条的勾勒,都是一种状态和情绪的传达即通往内心也描绘其中。
大城六时辰之日昳【美妆少女】P2
色彩是一种语言是情绪、空间、艺术、时尚、的表达而粉色则被优雅、柔和、美妙、温柔、浪漫所浸泡。
通透式开放空间让光线引入到每一个角落,每一个物件的材质也得到展现。
大面积的色块避免了空间的艳俗平衡了色彩关系浅蓝色与粉红色的互相衬托增添了空间的层次感和少女的清新气质。
大城六时辰之晡时【IRON MAN】P4
漫威,陪伴了我们数十载在我们的青春岁月里留下了无数关于英雄的印记。
每一个人物的喜怒,都被深深根植除了有关正义与勇敢的英雄梦更是精神信念与情感的归宿。
空间中提取钢铁侠作为元素几何图案和线条贯穿其中更为空间增添了几分硬朗的气质。和整体空间形成对话和互动。
经典的红色和炫酷的黑色相结合和投射图案“方舟反应炉”给人以强烈的视觉冲击情景带入感。
每一个细节里都融入了漫威英雄元素给空间注入了许多动感及力量同时也满足了我们对于英雄的幻想。
大城六时辰之日入【今晚吃鸡】P3
科技的日新月异的发展人们填充闲暇时间的模式也越来越丰富。
手游作为一种快餐式游戏也逐渐融入我们的生活当中。
以当今热游刺激战场为主题的空间,也就迎合了市场的需求三维游戏转向了实景的三维体验。
枪支弹药一应俱全在这你你都能找到。
室内增加投影布直观游戏直播配置的吃鸡装配应用于现场吃鸡竞赛增加了互动体验。
整体格调简洁大气,游戏主题及体验的融入,也为整个空间注入趣味性。
项目名称:勤诚达光明正大城样板间
项目时间:2019年8月-2019年9月
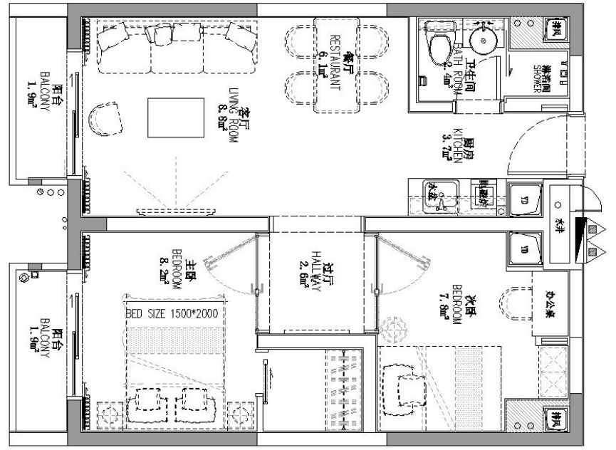
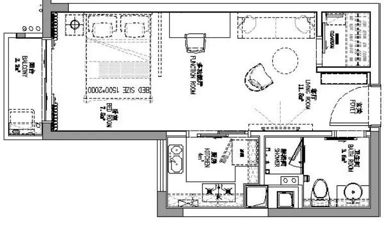
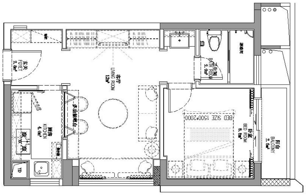
项目面积:P1:47 / P2:23 / P3:37 / P4:25 / P4-1:52
项目地址:深圳市光明新区光侨路与松白路交汇处
设计介入:Stone Design 团队
文案 摄影:Stone Design 企划部
STONEDESIGN - 经典案例
石头兄弟作品【 一路时光 】
石头兄弟作品【 泊在湖湾 】
石头兄弟作品【 前海之耀 • 耀动湾区】
石头兄弟作品【城市新标•用自然生态造情趣生活】
石头兄弟作品【天鹅飞过的地方,惊艳了时光】
石头兄弟作品【深业东岭】
石头兄弟作品【福晟天地营销中心】
石头兄弟作品【 马放南山·中山沙溪福晟钱隆御府售楼处】
石头兄弟作品【 安宏基天曜·城市未来的精神阶梯】
王新时作品【 SHEN DUAN身段】
王新时作品【 諾圖格】
华业玫瑰四季 | 我在深圳的第一个家
石头兄弟作品 | 宝能城三代居:一碗汤的距离
都市山水梦·盛汇花园湾营销中心
STONEDESIGN办公空间
现代 住宅 简约 朴素
客服
消息
收藏
下载
最近








































































