查看完整案例

收藏

下载
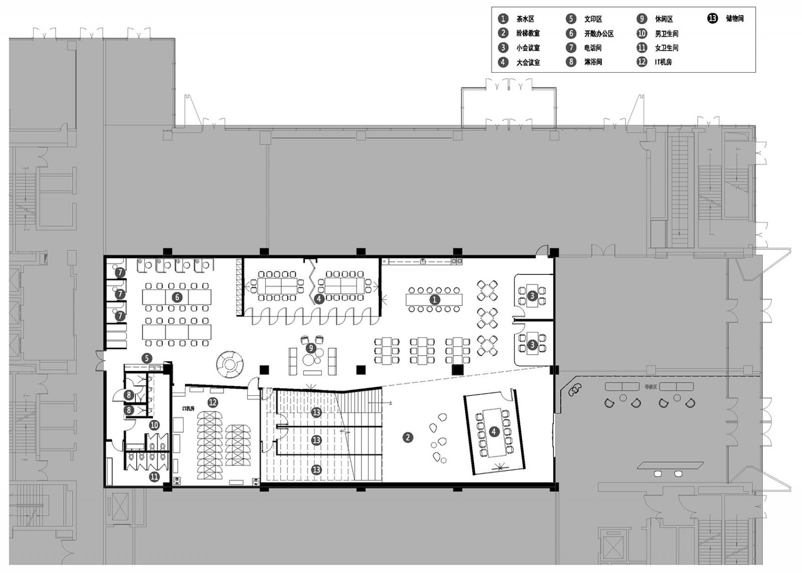
百融云创,是一家利用人工智能、大数据、云计算等先进技术帮助金融客户提升运营、管理水平。本次邀请优景公司为其设计北京6000平米总部,设计上首先保留原有大挑空天井,以其为空间中的核心区、交通汇集区、交流讨论区,将楼梯、茶室、茶水间、会议室等交织在此。设计上不是简单的排列上面功能,而是将它们巧妙、合理的穿插在空间中,在视觉上让它们相互形成对景。这样更好的把靠窗采光区安排给员工。
天井有着三层高的挑空区,巨幅的“延绵雪山”实景图,一下就把大家带入欧洲的阿尔卑斯山脉,几位勇攀高峰的登山者,也是暗示激励着百融人不断探索前进和挑战自我。从二层到三层的空中楼梯犹如“空中楼阁”,意境来源于中国山西的悬空寺,木构的造型映射中国古建筑中的斗拱,在其内行走也正好对望雪景。
天井边上的狭长讨论室,犹如“幽深峡谷”,层层曲折变化,概念来源于美国大峡谷,是膜拜大自然的鬼斧神工。
将景点带入办公室,这是设计师的初衷,也是对大自然的敬畏和搬运,让员工身临其境,惊叹大自然的巧夺天工、并能感受到它的优美,在心情愉悦中更好提升工作效率。
空间名称:百融云创科技股份有限公司
空间类型:办公空间、科技公司办公室、精品办公室
空间地址:北京市朝阳区望京阜荣街
设计公司:优景室内设计
施工单位:技良行(北京)建筑装饰工程有限公司
空间面积:6000平方米
空间主材:实木方、木饰面、木地板、超白钢化玻璃、办公地毯、软膜天花、铝塑板、钢网、乳胶漆
现代 办公空间 简约 绿植
客服
消息
收藏
下载
最近


























