知末
知末
创作上传
VIP
收藏下载
登录 | 注册有礼

个性90后的暗黑系之家,沉浸在属于自己的纯粹世界

2019/10/11 19:22:00
查看完整案例
微信扫一扫
收藏
下载
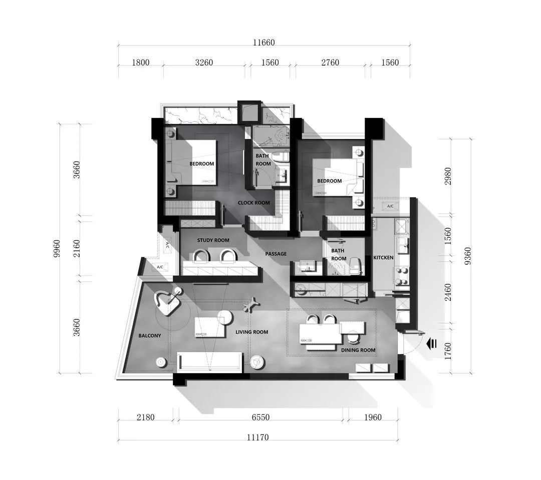
业主是一位90后,个性独特,喜欢独自享受电影、音乐、游戏,他希望能拥有一个与外界分明的空间,特立独行,所以我在规划整个空间氛围的时候运用了大量的棱角,在这个属于他的世界里,充满了灰白分明的墙面,冰冷的石材,深色的鱼骨地板,他的世界不需要过多复杂的修饰,只需要打开角落的落地灯,戴上耳机,一曲宋冬野的《郭源潮》,完全沉浸在这个只属于他的干净世界里。
个性90后的暗黑系之家,沉浸在属于自己的纯粹世界-1
个性90后的暗黑系之家,沉浸在属于自己的纯粹世界-2
个性90后的暗黑系之家,沉浸在属于自己的纯粹世界-3
个性90后的暗黑系之家,沉浸在属于自己的纯粹世界-4
个性90后的暗黑系之家,沉浸在属于自己的纯粹世界-5
个性90后的暗黑系之家,沉浸在属于自己的纯粹世界-6
个性90后的暗黑系之家,沉浸在属于自己的纯粹世界-7
个性90后的暗黑系之家,沉浸在属于自己的纯粹世界-8
个性90后的暗黑系之家,沉浸在属于自己的纯粹世界-9
个性90后的暗黑系之家,沉浸在属于自己的纯粹世界-10
个性90后的暗黑系之家,沉浸在属于自己的纯粹世界-11
个性90后的暗黑系之家,沉浸在属于自己的纯粹世界-12
个性90后的暗黑系之家,沉浸在属于自己的纯粹世界-13
个性90后的暗黑系之家,沉浸在属于自己的纯粹世界-14
个性90后的暗黑系之家,沉浸在属于自己的纯粹世界-15
个性90后的暗黑系之家,沉浸在属于自己的纯粹世界-16
个性90后的暗黑系之家,沉浸在属于自己的纯粹世界-17
个性90后的暗黑系之家,沉浸在属于自己的纯粹世界-18
个性90后的暗黑系之家,沉浸在属于自己的纯粹世界-19
个性90后的暗黑系之家,沉浸在属于自己的纯粹世界-20
个性90后的暗黑系之家,沉浸在属于自己的纯粹世界-21
个性90后的暗黑系之家,沉浸在属于自己的纯粹世界-22
个性90后的暗黑系之家,沉浸在属于自己的纯粹世界-23
个性90后的暗黑系之家,沉浸在属于自己的纯粹世界-24
个性90后的暗黑系之家,沉浸在属于自己的纯粹世界-25
个性90后的暗黑系之家,沉浸在属于自己的纯粹世界-26
个性90后的暗黑系之家,沉浸在属于自己的纯粹世界-27
个性90后的暗黑系之家,沉浸在属于自己的纯粹世界-28
个性90后的暗黑系之家,沉浸在属于自己的纯粹世界-29
个性90后的暗黑系之家,沉浸在属于自己的纯粹世界-30
个性90后的暗黑系之家,沉浸在属于自己的纯粹世界-31
个性90后的暗黑系之家,沉浸在属于自己的纯粹世界-32
个性90后的暗黑系之家,沉浸在属于自己的纯粹世界-33
个性90后的暗黑系之家,沉浸在属于自己的纯粹世界-34
个性90后的暗黑系之家,沉浸在属于自己的纯粹世界-35
个性90后的暗黑系之家,沉浸在属于自己的纯粹世界-36
个性90后的暗黑系之家,沉浸在属于自己的纯粹世界-37
个性90后的暗黑系之家,沉浸在属于自己的纯粹世界-38
个性90后的暗黑系之家,沉浸在属于自己的纯粹世界-39
个性90后的暗黑系之家,沉浸在属于自己的纯粹世界-40
个性90后的暗黑系之家,沉浸在属于自己的纯粹世界-41
个性90后的暗黑系之家,沉浸在属于自己的纯粹世界-42
普通住宅 现代 高级黑 个性
南京喵熊网络科技有限公司 苏ICP备18050492号-4知末 © 2018—2020 . All photos and trademark graphics are copyrighted by their owners.增值电信业务经营许可证(ICP)苏B2-20201444苏公网安备 32011302321234号
客服
消息
收藏
下载
最近