查看完整案例

收藏

下载
与同一所房子的二次邂逅,是这个作品不同于其他的独特故事背景,五年前业主找到我们做设计,因为私人原因没有落地实施。
时隔几年业主再次找到我们,同一所房屋、同一个设计师,不同的是居住理念与设计思维的变迁,“旧”房新思考我们与业主重新出发,第二次合作感叹的不仅是设计上的优秀表现, 以及时尚的更迭变迁、家居生活解读的差异与成长。
卡洛·斯卡帕(Carlo Scarpa)
意大利现代理性主义建筑大师
从卡洛·斯卡帕的 Brion graveyard作品中汲取灵感,建筑的外部形式载入内部结构,空间用建筑的形式来表达;形状不拘泥于任何内涵或延伸的意义,它只代表它本身,它只代表美。
入户廊道与厨房之间隔墙,一体两个立面形成小V角,以微调的隐晦手法扩展廊道,不限于入户端景的局部处理,更是关照几尺廊道的入户感受。
趣味传达开阔通透,玻璃隔断显露的厨房配色与比例分割,看似无意识的装饰巧合,不乏殚精竭虑的自然手法填充空间情绪。
整合空间一体化,气息的徜徉与互动,窗外绿意室内肆起,沙发的色、材质的面,与光的舞动,影的斑驳,赏画亦是画。
顶面艺术装置随风而起,摇曳变幻,静默表演一场舞剧,等风归,等来去。
自月夜到白昼,由林野至人间,裹挟优雅馥郁的绿散落客餐厨始末。
自白立体、结构的交接,书房开放式呈现对话过渡,亦外亦里、亦静亦动,细部的探究触及,立面凹凸感、层次与渐进、光的亮度与阴影神秘多变的姿态创造,材料肌理的表达变化见著于光之中。
皎洁的月光穿越圣殿,载指引以探索。
知实用的克制手法推侧墙,留出空白的楼梯一旁,变量削体的空间形态,从感受情绪出发,得到比失去的远远要多。
多角度光线的投射,水平空间的互动,垂直空间的交流,看似闲置的区域,却是给予太多空间感受可能的隐晦技法,打开整个居室上下楼层之间更多的流畅互动。
质朴泥灰色的侘寂氛围, 坠入星辰云海、踏入乡间泥塘,风吹起的褶皱波澜,水荡漾的卷曲与柔让,生物体多变的形式,炼万物形态藏于精神之上。
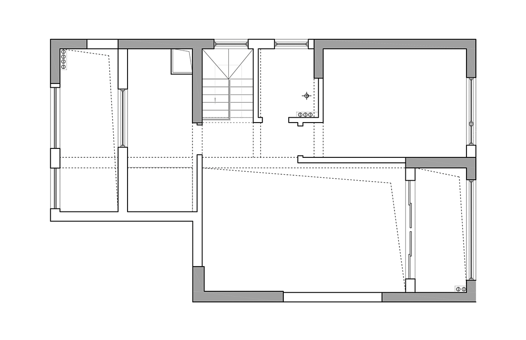
动静分离有序的空间布局,睡眠空间居于二楼;分层不断风格,泥土灰搭配黑白打造静谧、清爽的居室氛围。
设计机构:菲拉设计
项目地址:浙江杭州 · 广宇鼎悦府
项目类型:全案
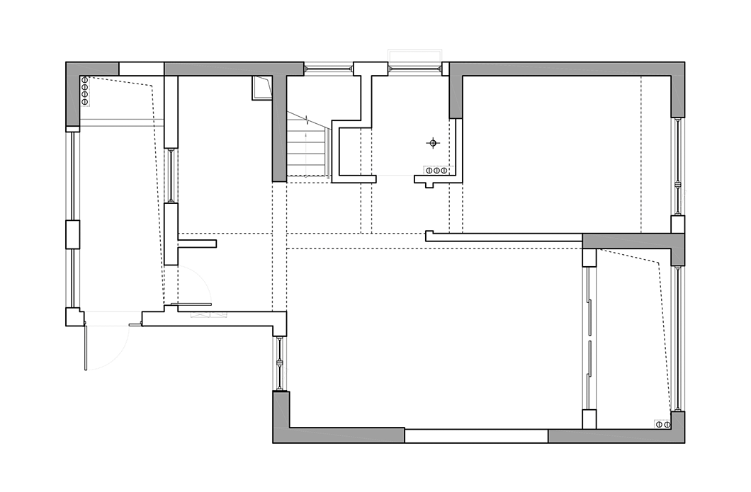
项目面积:170.2501349㎡
项目户型:跃层
空间摄影:林峰
客服
消息
收藏
下载
最近










































