查看完整案例

收藏

下载
对每个人来说,意义都不一样
它是一种很私人、源于内心深处的情感
Christopher Kostow
Christopher Kostow出生在芝加哥,34岁便荣获得米其林三星殊荣,是美国史上最年轻的米其林三星大厨。之前在美国开了三家餐厅,分别是The Restaurant at Meadowood、The Charter Oak、The Farm,深圳新开的Ensue是他首家海外餐厅。
△深圳Ensue朴实无华的设计细节
深圳ENSUE主创设计师
邵程(Chris Shao)
设计师邵程(Chris Shao)于2016年在纽约创立了Chris Shao Studio LLC。在纽约室内设计学院攻读美术硕士学位期间,获得了他的第一个重要委任设计——111 Varick,是一个多户型住宅公寓的室内设计项目。
△纽约Chris Shao Studio LLC
2018年,邵程(Chris Shao)在中国上海开设了第二个设计工作室,召禾室内设计(上海)有限公司。他的设计理念着重于削减美学和对材料的尊重,于此同时,在不牺牲经典的格调的前提下加入前卫的元素。目前,两家工作室都在国际范围内扩大了其在高端住宅、酒店和商业领域等领域的影响力。
△111 Varick建筑设计
111 Varick高30层,由开发商Lou Madigan开发,建筑由著名的建筑事务所S9 architecture操刀,室内设计则由邵程(Chris Shao)担纲。
△111 Varick室内设计
项目位于一个很国际化的街区SoHo,坐落于Varick街111号。他的设计里不仅有男性的荷尔蒙,也有也的女性的细腻,丰富的面料和前卫的现代感,浪漫的理想与古典的斯多葛主义相得益彰,他用自己的方式给空间赋予了新的诠释。
02. 关于Ensue的设计故事自述:邵程(Chris Shao)
第一次与主厨Christopher Kostow见面是在他美国加利福尼亚州St. Helena的农场。在陈述完Ensue的设计想法之后,他问我“你觉得奢侈是什么?” 我当时的回答是:对我来说能唤起人们情感的东西是最奢侈的。
△Christopher Kostow的农场
Kostow说:“奢侈,对每个人来说,意义都不一样,它是一种很私人、源于内心深处的情感。这时,他指着农场里的一棵树告诉我,这对他来说就是最奢侈的。”在那个瞬间,我有了设计这个餐厅的灵感和方向,我想把这种朴实无华的自然主义带到深圳这样一个极其现代的城市里,看似冲突,却又浑然天成。
△Christopher Kostow的农场
从小受到纳帕自然景观及侘寂美学的启发,Kostow用最简单的形式来呈现他的烹饪哲学。
△Christopher Kostow农场里的食材
在Ensue的设计中,我希望通过当地工法与当代思想融合,找到一种新的情感奢侈品,创造一个独特的空间,唤起一种新的时代风格和优雅气质。
这个概念用侘寂审美来实现,颂扬瞬间的不完美,它巧妙地暗示着佛教的三个标记,分别是无常、痛苦与空虚,以及缺乏自我本性。此外,这个空间体现了火与冰之间的有趣互动,视觉和概念上的碰撞,营造宁静的平衡感。
△深圳Ensue部分食材
△Christopher Kostow深圳Ensue团队
在中国的成长经历也潜移默化的渗入到了Ensue的设计中。我探访很多广东当地的工匠和制造业,重新思考中国制造在设计行业的现代意义,更多的自豪感和极少的失望,Ensue真正唤起了我对自己国家文化的新思考,那是之前在设计上还未曾尝试的部分。这个经历对我来说非常私人,当然也倾注了我前所未有的感情,这个项目对我来说,就是一种“奢侈”。
03. 餐厅入口:一段旅程开始的地方
走进Ensue,幽暗的入口开启了设计的故事,首先感受到的是纳帕(Napa)的自然景观和深圳的粤韵风情。简约自然的元素为客人带来全新的美食体验,现代质朴的美学,融合细腻的设计细节来重新定义“奢侈”。
这个充满故事性入口背景由当地艺术家手绘完成,搭配马饰壁灯,它描绘了一个雾气弥漫的场景,给整个空间定下了一个幽暗、舒适、亲近的基调,让人感受到自然的弥足珍贵。
在入口同样值得一提的是Rosie Li Studio手工制作的入口迎宾雕塑吊灯,这个吊灯用现代的方式和技术展现了花和树枝这样的自然元素。同时,花卉雕塑又能柔化空间的氛围,抛光黄铜材质又让它很有存在感。天花板上倾斜的瓦片来自传统的广东建筑。门口天鹅绒纺织品冷冷的色调可以平衡亮眼的花枝吊灯和石头材质瓦片,为空间带来所需的柔软。定制的鹿角接待台灵感来自于大厨Kostow书中的元素,让人联想到纳帕乡村生动的自然景色。
04. 首层大厅/包间
暮光:当太阳低于地平线时,来自天空柔和的光,是由太阳光线从大气中折射和散射引起的, 这是一种朦胧的状态。
大厅的设计为了着重凸显食物的色香味,背景颜色选择了灰色这样的中性色调。没有明亮的色彩,木工、墙板、及结构中微妙的细节成为了项目的核心和灵魂。空间里面丰富的灰蓝色调和质朴的细节更加烘托出了厨师Kostow的料理风格和理念,没有花哨的外形,致力于将食物最本真、最原始的风味做到极致,并用最质朴的形式呈现出来。自然元素被运用到设计的每一个细部,富有自然气息的定制树枝吊灯,连接主餐厅和酒吧,俯瞰繁华的都市。
餐厅的设计氛围深受暮光这个想法的影响,在这个时段,空间的氛围安静而而富有渲染力,餐厅的色彩及亲密感也因太阳的落山而被唤起。可以容纳十位客人的私人包厢,意大利Minotti浅色橡木桌和三个Apparatus的装置吊灯,给人一种庄重的仪式感。镶有黄铜边的木地板让这个空间多了几分典雅,定制的地毯起到了极好的柔和作用。落地窗采用了浅米色透明面料从深色的木质墙壁中缓缓延伸出来,与白色威尼斯石膏天花板相结合,营造出柔和梦幻的感觉,跟大厅的深色暮光感形成对比。包厢由铜木材质的双拉门隔开,给在这个空间用餐的客人提供一种特别定制的VIP体验。
△花艺:深圳山茶岛-Fanfan Chow作品灵感源于美国纳帕农场的自然植被
朝暮:日出前的蓝光时段被誉为一天之中最美的时段,北加利福尼亚早晨被雾层覆盖,模糊了景观与物体之间的距离。你会在这个朦胧的风景中迷失自己,因为你不敢相信你所看到一切美好。
设计这个餐厅最大的挑战之一就是如何利用好香格里拉酒店顶楼这个空旷高挑的空间,最大限度地利用这一优势,欣赏深圳的无敌景致,层高足足有13米。
为了让首层空间拥有极好的挑高空间、充足的光线和景致,二层采用退让的设计手法,将视线往上延伸,营造空间的震撼气势,同时一、二层可以相互交流,提升空间的互动。
△花艺:深圳山茶岛-Fanfan Chow作品灵感源于美国纳帕农场的自然植被
特别设计的树枝艺术吊灯,将大自然朴质的氛围带进室内,由一个树枝与圆形灯饰做了一个左右平衡的杠杆,并点亮树枝端点,成为整个挑空公共空间的点睛之笔,同时也象征着自然与现代设计元素的重组与和谐共处。
吧台背景墙采用折叠状的玻璃,高达7米,这个类似折扇一样的玻璃不仅是一种自然景象的延续,同时玻璃上隐隐约约的纳帕风光也让你有种虚幻的心灵体感,身处繁华都市却又能感受到纳帕山谷的幽静。空间采用浅色橡木映衬黎明前的第一缕光,营造自然的轻盈感。夜晚,浅浅的橡木加上幽暗的灯光,整个空间充满了浪漫轻松的情调。
晨露:当大气蒸汽凝结时,在冰凉的树叶表面形成的水滴,清新自然中透露出高贵的气质。
二楼包厢的设计,设计师希望采用一种清新自然的设计语言营造舒适的氛围,相对较为明亮、轻松、愉悦。包厢挑高的空间让人格外惊喜,精心设计的树叶水滴灯被玻璃环绕。
△树叶水滴灯空间示意图
二层包厢的设计灵感源自晨露,传统的中国厨师会在晨间第一缕光升起的时候采集睡莲上的露水,并用其为客人沏茶,因其纯净的特质,所以被认为是最奢侈的天然成分。
树叶水滴灯悬挂的枯叶又正与晨露的概念相反,灵感来自于干花和干植物,表达大厨Kostow想要的侘寂的感觉。地毯选用蓝色,象征从叶子上滴下来的露水,将这种干湿元素并置。
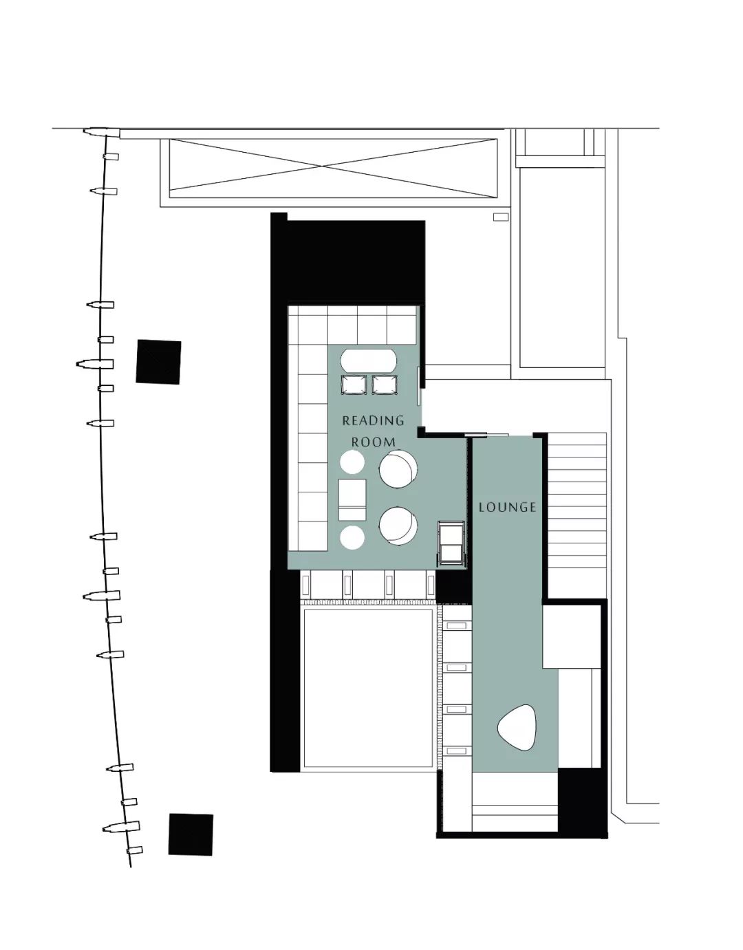
三楼设有“秘密”区域,通过酒廊背后的楼梯客人会发现两间私人暗房。在食物和鸡尾酒的服务之后,顶层密室的神秘感,给客人的体验创造了更多戏剧性和独特性。去往三楼密室需要通过白色大理石楼梯,楼梯扶手设计灵感来自花蕾,每个铁杆形成一个花骨朵。手扶栏杆上楼梯的时候,让人想起农民和厨师在土地里收集露水的过程。抵达后,客人唯一能看到的是一个暗门书柜。在书柜看似漫不经心的陈列品中,隐藏了一个暗门开关,按下最左边的书,书柜将缓缓挪开。
书柜打开后内置是一个阅览室,玻璃窗下面定制的柜子上摊开着精心挑选的书籍,鼓励客人翻阅。透过玻璃,窗外是之前介绍的枯叶水滴灯,往下能看到二楼包厢的景致,往左能看到三楼的另外一个包间,里面有着相似的书籍展示柜和休闲沙发,不同的是里面的设计加入了更多的中国元素,用刺绣面料装点灯饰,并且用格子西装的灵感做了拼接的地毯。
Ensue的设计,是邵程(Chris Shao)对朴实无华的自然设计的反复推敲及思考,于设计中融入东西文化,营造宁静的侘寂氛围,探索“奢侈”的新定义。
现代 餐饮 奢侈 时尚 朴实无华
客服
消息
收藏
下载
最近

















































































