查看完整案例

收藏

下载
一饮而尽 当你走进这里,所有的梦与想,都被允许,欢乐或忧愁,我们一饮而尽。这次的项目是以正宗意大利菜和产自威尼斯的Prosecco起泡酒为卖点的时尚酒馆——“ La Goccia ”,La Goccia为意大利语“一饮而尽”的意思。整个项目设计师通过观感、触觉、听觉及消费感受向消费者传达“新式小酒文化”、“自由的混搭感”以及“自由搭随便耍”等耍家文化概念来凸显成都本土与国际相融的城市特点。
项目位于成都中心太古里商圈,紧邻量子光电竞场和滑板广场,是一个年轻、时尚、充满活力的社区活动中心,然而这个片区类似案例已有不少,那么如何确立好自己独特的IP呢?设计师试图从威尼斯与成都的渊源入手,13世纪马可·波罗见到成都水上繁荣之景象,恍然以为见到“东方威尼斯”。这一点,单单从地名就能如实反映,《华阳国志》记载:“蜀江众,多作桥,故蜀立里多以桥名。
于是,设计师从东西方不同特点的桥梁中,去寻找共鸣点,并从中抽离出了最基本的构成语言——“拱”。无论是翡冷翠的Vecchio,还是威尼斯的里阿尔托,或者是中国的卢沟桥,“拱”是他们共有的特点。除此之外,项目中也大量运用了威尼斯的元素来为该店添加特色。狮子是威尼斯的标志,设计师选用艺术装置来抽象的表达,入口处的狮头便是用切片的方式,将导光板插入墙面,形成艺术装置。
为了打破在竖向空间上的限制,设计师对二层楼板进行了开凿,形成了天井,并把吧台背后的酒架,直接冲上二层,形成了十四层拥有七米高的酒塔。在平面布局上,酒塔是由两个“L”型和中间一个“T”型所组成的围合结构。因此,室内空间形成了三座有立体感的高塔,气势感十足。
竹是四川的特产,而借景则是中国古典园林常用的手法,两者看似跟意大利餐吧没多大关系,不过意外的惊喜总是会被用心的人发现。当拿起酒杯,或敬朝阳或敬月光,寒窗外的竹影可不仅仅温柔了你我,逆风飞翔的也不仅仅是东西方的设计差异。然而设计它也不仅仅局限于室内,这和外部的环境也紧密相关,设计师发现酒吧南侧墙外是茂密的竹林,对设计师而言,这几乎是捡来的宝贝。于是设计师在南侧外扩的墙体上留了一排高窗,并听取灯光顾问的建议,在竹下加一排光源,于是,神来之笔应运而生。竹影的生成让空间变的灵动富有生机,形成了在空间进深轴线上的第六道,也是最后一道景观。
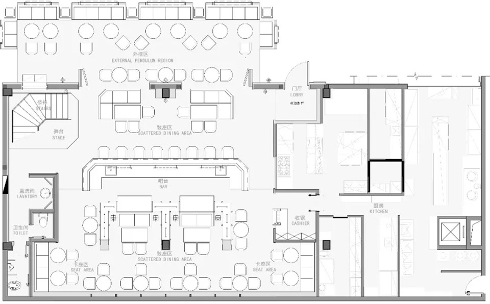
整个项目面积约380㎡,分为上下两层,一楼以意餐为主,楼上则更侧重于酒吧。原始建筑空间,一楼的平面进深很浅,设计师试图将吧台置于中间,结果发现,实现不了中岛的格局。纠结中,发现一个惊喜,南侧外墙后面有一个可利用的空间,于是设计师把外墙向南移动了两米多,增加了二十几平米的面积,中岛吧台的格局也成立了。
北侧是外摆区,为了让空间的进深更有层次,设计师将北侧的开启面尽可能的做大,室内外的界面模糊化处理。再加上地面材质一体化的延伸,外摆区三米多的尺度也纳入一体化的空间视觉感受里。因此,原本局促的空间延伸得到了极大的改善。
项目名称:LA GOCCIA 设计公司:成都万谦集环境艺术设计有限公司 空间设计:汪宏 郭楠 软装设计:许冬梅 照明设计:阿特露祺欧末照明 项目设计时间:2018年7月 项目完工时间:2019年6月 项目地点:中国 成都 太古里 项目面积:380㎡ 主要材料:水磨石 黄铜 镜面不锈钢 艺术涂料 空间摄影:形在建筑空间摄影 贺川
现代 酒吧 水磨石 黄铜 镜面不锈钢
客服
消息
收藏
下载
最近






























