查看完整案例

收藏

下载
潮汕的南边作为实业发达区域,密集的人口,大型机械,与全球不远万里前来采购的外宾构成了这座城市的画像。基于此对于高品质服务业态有着刚性需求。
【泰象】源自泰国的概念,长于潮汕并辐射全国的一个“正宗泰式massage”管理机构,本案【泰吉】便是其中之一的高阶子品牌。
【泰象massage】管理方委托设计师林彦先生与他创立的【好好设计GOOD²Design】设计事务所进行全案设计。我们试图颠覆区域对于“高级理疗”的认知偏差,将在原有的建筑物内部进行全面改造。力图打造一座工业大城之中的“城市绿洲”。
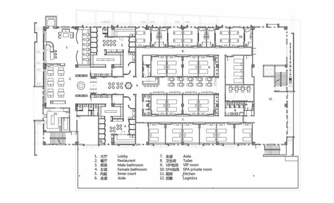
【初极狭,才通人。复行数十步,豁然开朗。】空间位于建筑物顶层,为了让来宾得到充分的过渡,我们单独建造一条专属的垂直动线,仿若一条时空隧道般,带客户穿梭至泰国秘境。外向的大门既是满足了风俗与承载了机能,亦分外显眼引人入胜。让人不禁多窥两眼,试图一探究竟。
为了营造出静怡的氛围,GOOD²Design在内部造景,双层玻璃的运用隔绝了外部的喧闹,有效的隔音降噪。同时精油香薰的使用,令来者倍感放松与宁静,用泰国原产浴盐为来宾沐足的仪式是来自【泰吉】古法最真挚的祝福。
设计的过程中受到普吉岛延绵的山峦启发,弧形与重叠的山墙形成了雕塑,引导来访者穿梭在这波晶格化的热带丛林之中。亦好似郁郁葱葱的森林提供了天然的视线盲区,极高的私密性并不存在人为生硬的屏障,一气呵成行云流水。吸引来宾在空间中不断深入探索。
【好好设计】在空间中轴线处“开天窗”让光线驱散了大平层中段的压抑,双层中空玻璃及智慧调光卷帘可以分析日照及天气的变化,有效调节照度及过滤紫外线,【沐浴吉光】享受这份自然的恩赐。
“我们希望这里不存在幽闭的空间”林彦先生如是说,他通过巧思让“中庭的光”找到一丝刻意的罅隙,柔柔地渗透到房间内,挥洒在微粒质感的墙面上,每个来宾都被包裹在这个安全感极强的专属空间,享受着这缕私享的【吉光】所带来的暖意和无与伦比的“海之音”身心惬意。
贵宾房由来自泰国的21个小岛分别命名,延续了【泰吉】充满故事性的叙事环境,仿若穿梭在不同的岛屿之中,各具特色。
自然形成可供人小憩的空间。中间种植热带植物,遮阴的同时,形成空间的聚合性。设计了部分座椅,鼓励来宾逗留与社交。体验型经济驱动下,将周边产品精心陈列,这些泰国制造的产品极具观赏性,亦是中泰经贸的缩影。采光井的设计提升了空间品质亦降低了能耗,【坐井观天】换个视觉欣赏四季更替。
艺术作品【无齿】警示着人类切勿为一己私欲,大量猎杀导致非洲大象濒危,谴责狩猎者在利益趋动下,无下限的猎牙行为,野生大象数量急速减少中,呼吁保育工作需得到正视与政策保护。
贵宾SPA房间享受定制的水疗服务,SPA的愉悦身心,为内心囤积的压力、疲惫、惶惑找到一个出口。恍若隔世,桃源与喧嚣,仅在一墙之隔。
身与心经过洗礼,细细的享受着窗外小雨,餐厅是“旅途”的终站,精致的佳肴出自泰国米其林大厨之手。在此听觉、嗅觉、视觉、味觉、触觉、得以全面满足,身临其境泰正宗。
“象鼻神” 毗那也迦,成就一切善事,消灭灾祸,守护【泰吉】
主创及设计团队:林彦丹仪怡敏
项目地址:中国/广东省/汕头市
建筑面积:1600M²
摄影版权:灿铭林荟摄
合作方:软装:好好优选/工程:文锦工程
主要材料:大理石/金属/手工涂料/木/墙布/马赛克/线型灯/工艺玻璃
林彦,高级环境艺术设计师,于2016年创办「好好设计」机构,秉承“好设计 好执行=好结果”为目标导向,定制最合适于“第一用者”的专属设计。从业近10年以来创作无数「好设计」,是无数甲方项目“吸睛”秘密武器,与忠实合作伙伴。
「好好设计」是极富创意思维,追求人文气息的精品型设计团队。作品涵盖各类业态,多元化的经验积累与探索,夯实的理论与实践体系,尤为擅长捕捉项目优势,突破认知局限。我们主张理性科学的设计方法,讲究设计策略,善于解决问题,注重塑造作品气质。赋予每个项目鲜明的个性与长盛的生命力。
现代 泰式 美容养生 绿植
客服
消息
收藏
下载
最近







































