查看完整案例

收藏

下载
Dana Oberson Architects Studio 最近在位于荷兹利亚海滩的码头综合体中完成了一个新项目。业主选择该公寓是因为它靠近大海,并希望保留它带来的空间感和宁静感。
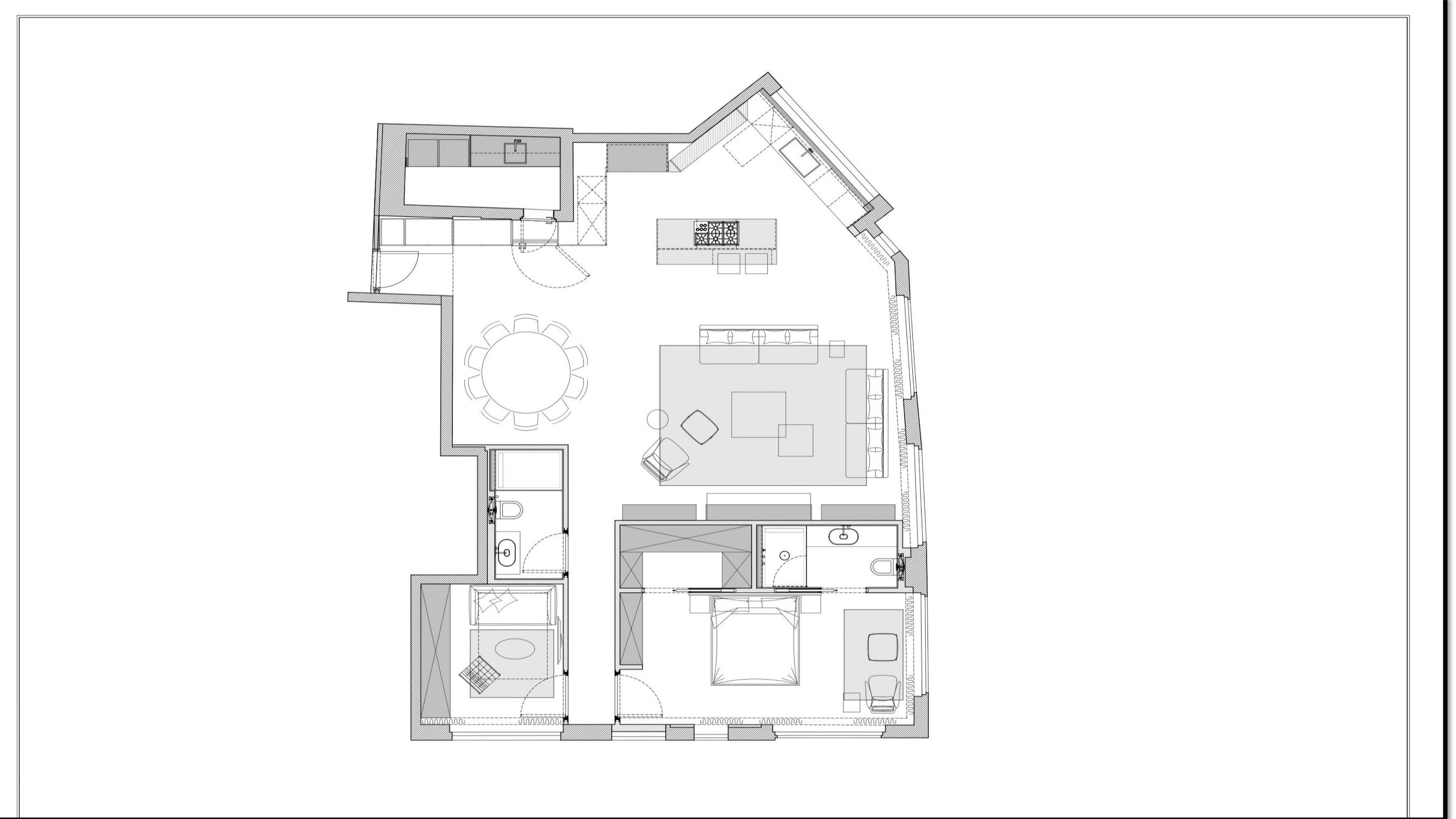
该计划具有明确的公共和私人区域,包括带客厅、厨房和用餐区的开放空间。私人区域有一间主卧室、两间浴室和一间用作孙辈房间的书房。
公寓俯瞰地平线和大海。 “我们希望保留设计中的宁静感,将这种精神带入室内,”建筑师 Dana Oberson 说。公寓的地板是浅沙色的 Rezina,让人联想到海沙,并遍布整个空间。天花板也安静而简约。厨房岛台上方的装饰性玻璃灯具让人联想到水的透明度,并允许景观的连续性。 “厨房岛就像沙中的岩石,”奥伯森说。岛表面和所有外墙都覆盖着与厨房正面融为一体的暴风雨灰色大理石。它们由石墨色铝以及褪色的浮木外墙和不锈钢制成。 “目的是在自然、平静和透明的材料与位于空间中并锚定它的主导和黑暗材料之间建立平衡。当你看着石头,或者一棵被水冲刷多年的树赋予它个性时,你会感受到大海的力量。”
透明和简单是客厅图书馆的设计愿景。对透明度的追求导致与米兰的 SANTAMBROGIO Studio 合作,专门从事玻璃家具和空间的创作。 “我称之为虚无的连续性,”奥伯森说。在浴室和书房外墙重复使用浮木外墙。 “由于这是房主用来工作和接待孙子孙女的房间,因此有必要进行封闭式书房。我们设计了一个在轨道上移动的滑动木门,让两种功能共存。
公寓内的艺术品选自泽马克当代艺术画廊。 “结合艺术总是强化设计理念,与空间密不可分。我一直在寻找在强大而动荡的环境中表达沉默的艺术,比如在海上,展示自然是如何一致和坚定的。 “Yigal Ozeri 的作品被选为公共空间,反映了大海的力量及其宁静。”Dana Oberson 是以色列领先的建筑师,专门从事各种规模的项目设计。从豪华别墅和公寓、私人和公共商业空间、办公室到以色列和世界各地的酒店和度假村。 Oberson,Bezalel 艺术学院毕业生,曾任特拉维夫大学建筑讲师,目前在阿里尔大学任教。 2002 年成立了 Dana Oberson Architects Studio。该工作室对所有规划组件保持整体方法,从环境和景观方面到对建筑空间的复杂理解以及对家具、照明、室内和产品设计的独特视角。合并和联合过程源于与客户不断发展的对话以及对其需求和愿望的深刻理解,从而产生独特而丰富、详细和定制的设计。
项目名称:A New Serenity
设计公司:Dana Oberson Architects Studio
设计团队:Dana Oberson、Oded Livyatan、Dana Keshet
地点:以色列特拉维夫
摄影:Amit Geron
客服
消息
收藏
下载
最近























