查看完整案例

收藏

下载
Concrete 建筑事务所与 Stephen B. Jacobs Group 及 DeSimone 咨询工程公司合作完成了美国最高的模块化酒店 CitizenM Bowery 的设计。该项目位于曼哈顿下东区,21层的建筑面积约为10万平方英尺(约9290平方米),有300间模块化客房和各式各样的酒店设施。他的酒店包括一个屋顶酒吧和休息室,一个小酒馆风格的餐厅,一个地面工作的公用空间以及一个4000平方英尺(约371米)的广场。
这个项目是 citizenM 在纽约的第二家酒店,第一家店开在时代广场。
DeSimone 设计团队面临的挑战不仅要传达“美国最高模块化酒店”这个概念,还要将结构安装在最初为浇铸混凝土结构而开发的建筑围护结构中,同时确保它符合当地的规范要求。
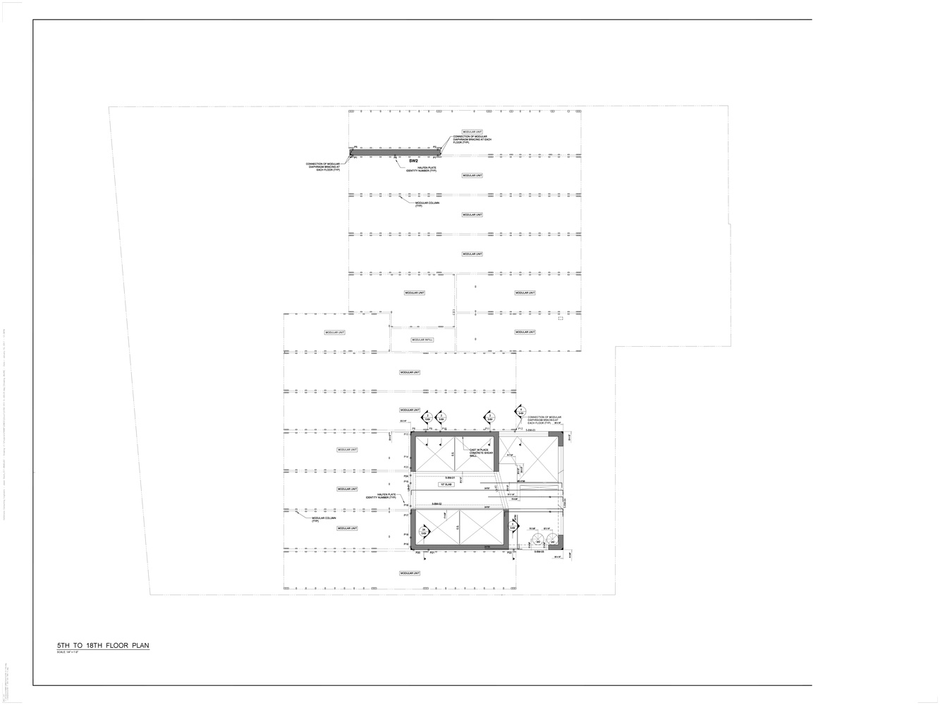
转换到模块化系统得到了由三个主要结构部分组成的建筑。最低的部分直到第四层,全由现浇混凝土建造,以保持以前设计的舒适空间在较低的楼层。
第4层的混凝土板有36英(约91厘米)寸厚,跨度可达38英尺(约11米),作为传递板来支撑模块层。
第19层到屋顶的框架则采用结构钢,以提供上层舒适的开放空间。整个建筑有一个独立的混凝土核心和一个叶片剪力墙,在两个北部模块之间作为建筑的横向系统。
执行设计和建造带来了额外的挑战。模块化的现场连接必须能够承受高层建筑产生的巨大压力,提供足够的场地公差,避免与相邻模块的干扰,并在现场组装模块。
“我们很荣幸有机会参与到这个独一无二的项目中” Desimone 在纽黑文的管理负责人 Benjamin Downing 表示。“项目团队面临着无数的设计挑战,但我们迅速有效地解决了这些问题,帮助实现了美国最高的模块化酒店。”
模块化酒店 画廊 现代 时尚
客服
消息
收藏
下载
最近





























