查看完整案例

收藏

下载
独立住宅, 泰国
建筑师:Alkhemist Architects
项目年份:2021
建筑师:Kraipol Jayanetra
Country:泰国
设计师描述 | Designer description:
TYH住宅位于曼谷北郊Nonthaburi省的一个庞大的住宅区内。项目场地位于一条死胡同的圆盘末端的一块不规则地块上。该住宅由不同的充满活力的对比元素拼贴而成,使用了多层次的材料调色板和不同的空间品质。其中最重要的是在对周围保持开放的同时保证隐私性。
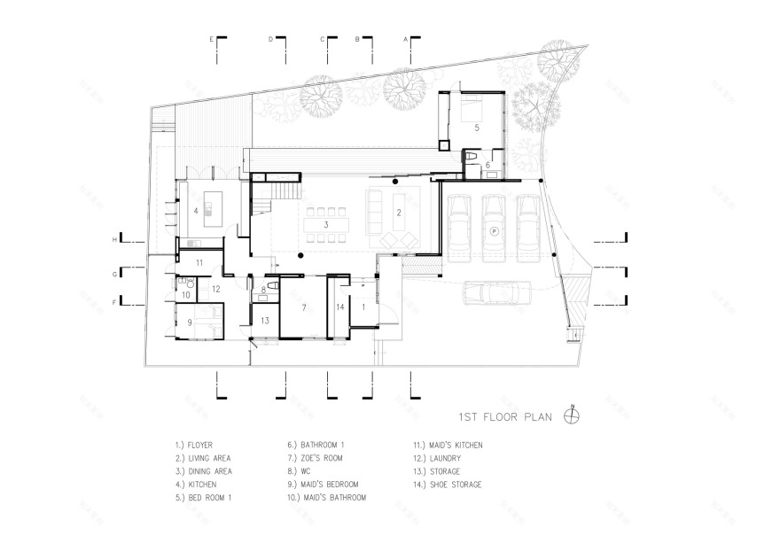
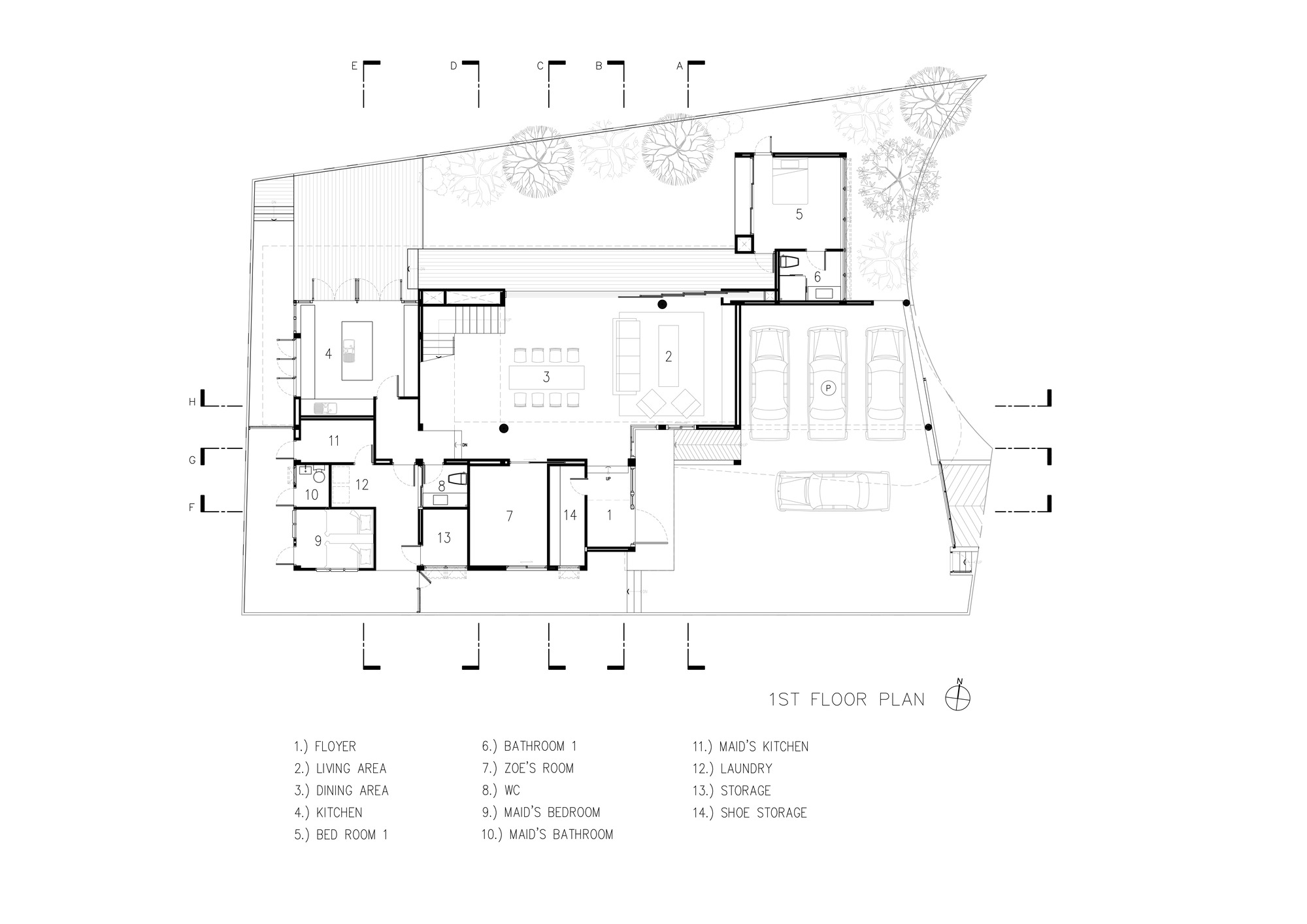
设计的主要意图之一是让居民可以在自己的家中不会感到束缚。这一点在一楼的起居和用餐区得到了体现,这是一个低而长的水平空间,完全与街道隔绝,通过一扇跨越整个房间和半室外露台的大型滑动玻璃门向基地北侧的花园开放。
住宅的内部空间主要面向这个方向,因为该场地上的邻居住宅也包含一个花园,在视觉上创造了绿化的延续性的同时,也最大的保证了家庭的隐私。一楼生活区宽敞但却封闭,与二层挑空、采光充足的生活区并列,较小的空间和下沉式座位加强了生活区的休闲和亲密氛围。
在二楼,许多精心布置的开口使得住宅更加开放,提供了面向整个社区的观景视野,大多数较大的开口位于北侧的外立面。考虑到当地的气候,二层也被通高的空间和阳台所穿透,促进了自然通风。同样,房子的其余部分也设计了开口,以促进空气流通。
住宅的分区可以从建筑物外部所区分,两层砖墙体量容纳了主卧室和两个较小的儿童卧室,客房位于基地东北角的一层体量中。在浴室所在的地方,砖墙体块向外移动,形成了一个采光井。交替铺设的砖层以一定角度旋转,创造出一个多孔的建筑外立面,既可以保证采光和自然通风,又在视觉上保持与外界隔绝。
TYH之家是对泰国文化里折衷主义的庆祝。尤其是在曼谷,与视觉风格的冲突紧密相连,无论是传统的还是当代的,设计过的还是当地的,纯粹主义都是一种例外而非常态。这体现在各种材料和纹理的使用上,从粗糙的深色泥土色调的抛光混凝土和裸露的砖墙,到更抛光的木材,光滑的白色墙壁和拥有丰富图案的石头表面,以及具有温室风格和工业色调的厨房。
现代主义的线性形式被屋顶的不对称、不规则的开窗和凸出的车棚屋顶轮廓所抵消,这些轮廓反映了死胡同的曲度。该设计融合了不同的细节和其他与众不同的部分,在一个平衡的行为下形成了一个独特的整体,在物质上和精神上与当地的环境相联系。
文字描述由建筑师提供。
译者:李佳翼
项目完工照片 | Finished Photos
设计师:Alkhemist Architects
语言:简体中文
翻译:Archdaily
客服
消息
收藏
下载
最近































