查看完整案例

收藏

下载
▲ 客厅整体采用白色 原木色 墨绿色搭配,营造出明亮通透的清爽北欧风。
▲ 玄关采用白 灰 墨绿的配色,清爽自然。墨绿色的留言板黑板墙随意变换着回家的心情~
▲ 电视柜和飘窗卡座连成一体,原木 白色的经典配色,仙人掌/量天尺,一闪一闪的三角形装饰灯,任何角度拍照都是妥妥的美丽。
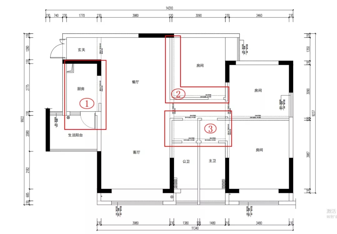
▲ 厨房地面砖和玄关同款,橱柜采用白色 深灰色台面的设计。原来出阳台的门洞改造成窗户,打开后可以跟东南方向的窗户形成很好的对流关系,厨房也更加的宽敞明亮。
▲ 卫浴间干湿分离,玻璃为磨砂材质,保证空间光线充足的同时还能保护业主隐私。整体配色采用黑白灰,简洁明快。
普通住宅 现代 自然 清新
客服
消息
收藏
下载
最近






















