查看完整案例

收藏

下载
FAMILY No.5
K-2020公益5号家庭
A HOUSE OF GROWING UP FOR FAMILY
旧住宅改造项目,业主是幸福的一家三口。
K计划的设计团队——ACE
业主经过充分交流,了解需求后,打乱原有的结构,重新分区,围绕健康生活、
人与人的关系、成长之家、设计共创这四个关键词将空间完全归于生活,来打造一个温润的居住空间。
Healthy life
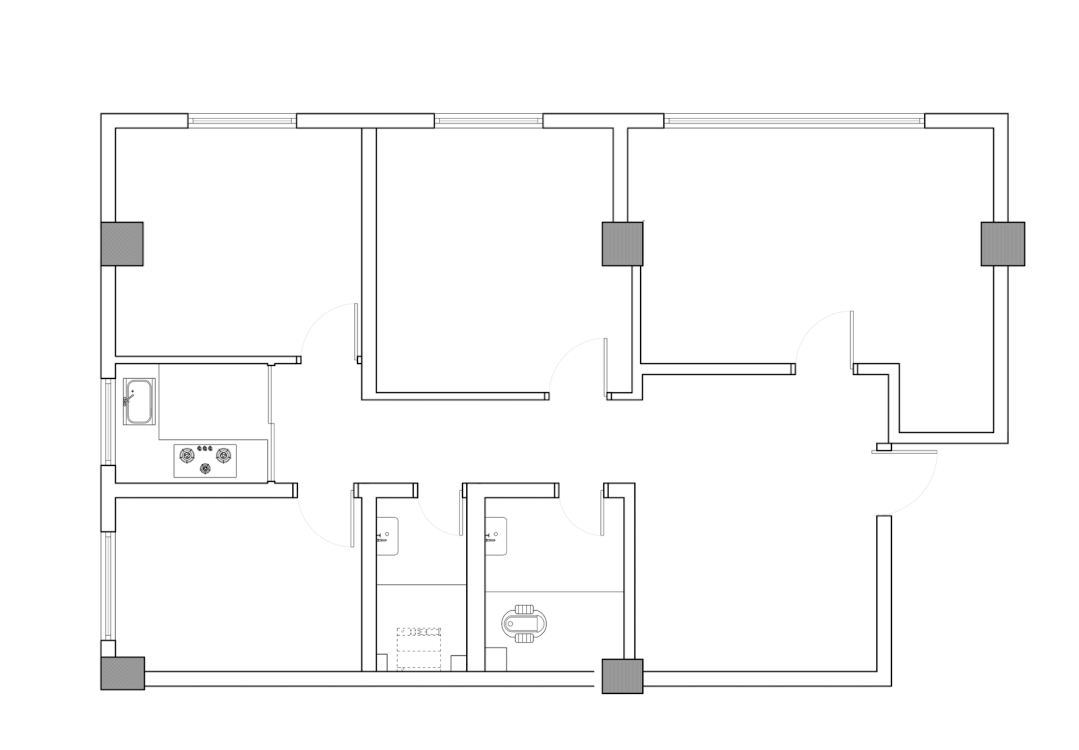
2020年一场突如其来的灾难席卷全球,你我可能从未想到过生活将离不开口罩,消毒水将伴随着每一天,也从未那么在意一个空间是否可以有良好的通风、采光,空间是否可以自由地呼吸。本案原结构为一处商业办公改造为居住空间的宿舍, 结构上可变空间比较大,但是原卫生间为暗卫,原室内空间分散,采光通风都非常差。
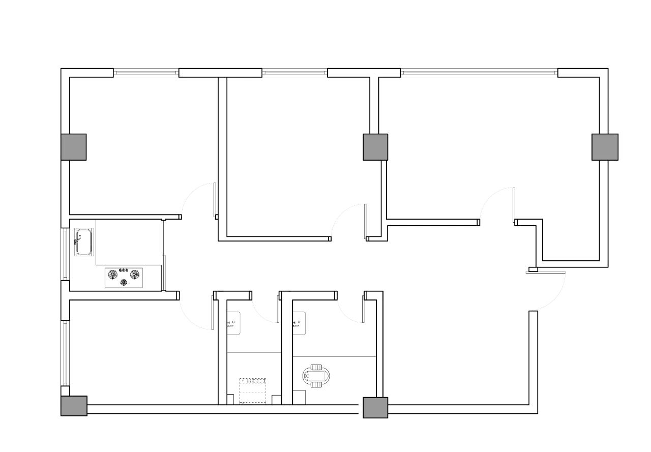
改造前(左)- 改造后(右)
将生活空间重新分区叠加,放入一个打开的敞亮空间里,清新空气和自然阳光透过窗户进入室内,大大提高采光和通风条件。
、餐厅、厨房、儿童活动区、等区域功能,
一起形成整个空间的包围感。视线在整个空间并无死角。
观影、儿童的学习玩耍、
Relationship
本案业主是一名医生,是武汉封城疫情最为严峻时华西医院支援武汉的预备队成员,作为抗疫一线的医生,她深知一个健康舒适的家对自己与家人多么重要,她提到疫情后最在意的是在家里如何去维护和改善家人之间的关系。
所以在一个有限的公共空间里我们希望创造一些区域与角落,在柱体的区隔下,形成空间之间的穿插,视线的对望,在这些角落中,有独处、互动、相遇等等空间趣味与生活的融合。
我们理解的空间与人的关系是丰富而包容的,有家人相聚时的欢乐,也有一人独处的惬意,还有陪伴孩子时的温情与学习工作时的安静,健康的生活状态一定是家人之间的和睦与自我身心的放松与安宁。
Learning - Growth
业主前期与我们沟通,由于工作性质在家也会处理一些工作,也会在家有学习看书的习惯,另外小朋友才不到三岁,未来在家学习的时候也很多,除了日常的游戏玩乐,还希望能有几处可以独立工作学习的地方。
于是在公区与各自的卧室区我们分别设置了共计六处学习与工作的区域,其中餐厅长桌为一家人共同使用,依靠飘窗台前移动的小书桌,儿童区玩耍区面窗的书桌,主卧室内靠窗处的条形书台,儿子房面窗处的书台与衣柜旁的专用学习书桌椅。这些或大或小的区域设置为未来十年的可变提供弹性,满足不同情况下安静与喧闹的多种选择。
值得一提的是飘窗座前可滑动的小书桌,源自业主在外地游玩时偶然使用过的一个木桌升级设计定制而来,整体的高度根据业主的身高定制,下方加了滑轮可随意滑动,并且设计了脚可以放的位置,既满足了业主希望在窗前看书处理工作的需求又巧妙的与空间结合,使用便利又舒适。
在整个空间中,我们设置了多样的书架用以承载业主一家大量的书籍,它们分别散落于空间的各个区域,陈列出来后呈现一种闲适的美感,方便随时取阅的同时也变成家里一道美好风景。
Design co-creation
k2020的公益共建计划提倡疫情后设计者与居住者共同的反思:从最初的重装修重装饰到轻装修重装饰,再到轻装修巧装饰,最后到今天我们探讨如何用设计实现一种健康的居住状态,从而实现居住的精神诉求,探讨作为设计者我们还可以哪些方面深入用力而非浮于表面。
而作为居住者本身也需要反思:我的生活到底需要怎样的空间承载?我梦想中的家到底需要些什么元素构成?我的家需要解决什么具体问题?我希望在家的空间实现什么精神诉求?
带着这些问题我们开始了这次的设计共创,一个故事有两个书写的角度,这也让这次合作有了很多趣味,比如业主说我来设计我们橱柜内部的储存空间分隔,于是就有了一张诞生与业主自己的设计草图;
业主希望在不大的空间中实现种花种草的需求,于是便有了悬挂于窗外的花槽,种上她喜爱的各种香料;再比如定制的可移动的小木桌、象征着一家三口的猫猫地毯、业主自己的大脑扫描出来二次创作的波普艺术图....
在这一次的公益共创中,我们结合了后疫情时代的特性,用设计师与居住者的两个角度去思考,书写了一个有阳光、家人、陪伴、成长的故事,建造了一处温馨和坚固的港湾。
| ABOUT K-2020共建设计师 |
ACE设计总监 创始人
客服
消息
收藏
下载
最近










































