查看完整案例

收藏

下载
客厅,是全家待在一起时间最久的空间,也兼具会客功能。常规的布局基本是以电视机为核心,人们各占一个沙发座椅,或喝茶或聊天。随着移动互联网时代的发展,许多人并不会常看电视,人们开始更多关注阅读、音乐、绘画、新闻、游戏等多方面信息。
来自重庆物集设计团队带来的两套温暖住宅,设计师与业主方不仅对家具材料、色彩、尺寸、品质等都格外考究,在客厅布局上也在尝试着新的变化和创新。
这套作品中,客厅以温暖的木色与洁净的白墙为基底,设计师将传统意义上的客厅与开放式厨房、书房等相结合。临窗的餐厅大木桌除了平日用餐,屋主还能在这里办公、陪孩子一起做手工、欣赏音乐等等,配上旁侧玻璃柜的生活方式饰物,也展现了屋主的个性。
根据自己的生活习惯及爱好,书房也可安置在客厅一角,便于日常的阅读,让家充满阅读氛围,而不仅仅是各自埋头玩手机。书房与传统客厅自然隔断,空间运用更加灵活,客厅不仅仅是影音视听交流区、游戏区,更是增进家庭情感的纽带,互动紧密又不粘腻。
项目地址:中国/ 重庆
设计师:郑宏飞 / 谢斌
设计机构:重庆物集装饰设计有限公司
家具提供:LIVIN 利物因、壹集collection
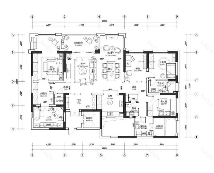
项目面积:170平方米
家具的选择、摆放有时会潜移默化地改变人们的生活方式,行走路径甚至起到有效的隔断作用。
比如这套作品中,客厅是一个较大户型的开放式空间,黑色多人牛皮沙发、白色亚麻单人沙发、造型别致的藤编座椅所包围起来一个“内厅”,而沙发周围余留的空间都自然形成通往其他场所的通道。传统格局中,人们习惯将大沙发靠墙置放。但作品中,黑色多人牛皮沙发宽敞,且几何线条明显,更能与餐厅区自然隔开,使得两空间既独立又彼此连接。
项目地址:中国/ 重庆
设计师:郑宏飞 / 谢斌
设计机构:重庆物集装饰设计有限公司
家具提供:壹集collection、LIVIN 利物因
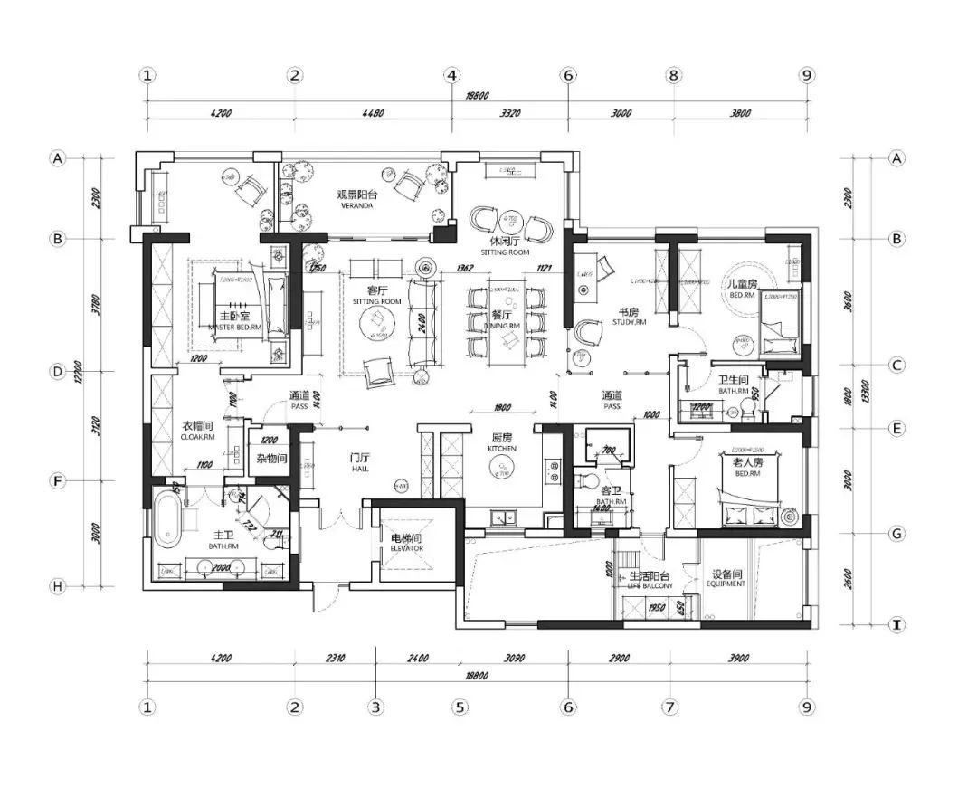
项目面积:185平方米
客服
消息
收藏
下载
最近















































