查看完整案例

收藏

下载
卓越蔚蓝海岸销售中心 - 水迹
宁波,地处东南沿海,临水而建,依水而生,拥有七千多年的文明史,为“海上丝绸之路”的起点之一。作为海港城市,宁波亦是典型的江南水乡,其中河流纵横交错,蜿蜒曲折,桥梁林立,两岸景色如画。宋朝时期,诗人吴潜在宁波为官,曾作诗“春涨半篙波潋滟,晓山一带色微茫”赞扬当地山水之景。宽广的沧海,娇柔的水乡,浸染了宁波的人文,赋予当地的生活美感。
设计师有感于宁波的人文,为盈盈流水呈现出的简洁洗练的美感所动,试图让项目留住当地人的水漾记忆,便以水为媒介,藉由自然光影与建材纹理,捕捉水波的艺术姿态,注入设计理念,并将其贯穿在空间当中。
水滴湖面,形成微小暗涌,漾起层层晶莹的縠纹,设计师将其形态捕捉,化为前台的艺术装置,以此作为空间韵律。水波装置虽玲珑剔透,又有水汽氤氲弥漫之感,呈现出静中有动、动中思静之势。
身处室内,不经意间的抬眼,便见水波潋滟,化为渺渺纹路,无限延伸于空间。天花采用镜面不锈钢材质描绘水湖纹理,宛如风吹湖面所激起的片片涟漪,人倒影其中,化作水中之象,虚实相交,造就澄澈之意。
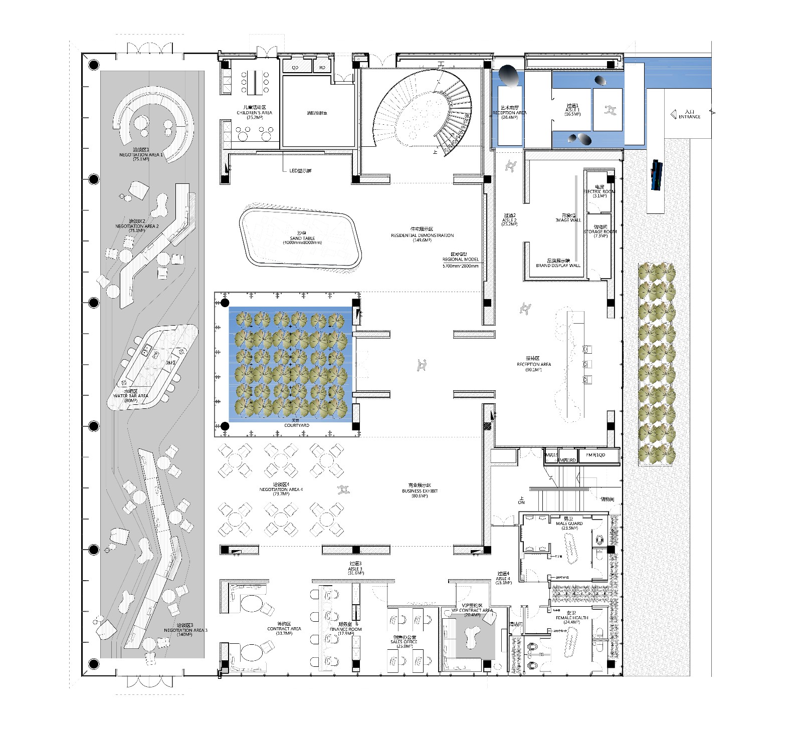
各个空间相互串通,人于空间内游走,颇有移步异景之趣。洽谈区呈条带状,地毯纹路如盈盈流水,不规则座椅作溪石,地毯曲线宛如“水”遇“溪石”所呈的蜿蜒曲折之状,于空间中增添趣味。
纵观本案平面,空间结构宛如密封的盒子,却有水有景,实现空间与自然的相融。设计师于室内开辟一处天井,天井中植一丛竹,造一方竹林。绿竹挺拔,苍劲有力,青翠欲滴。风起,竹摇,倒影于室内,引微凉入室。
全案采用大面积的落地玻璃,打破室内与室外的藩篱,让空间与自然形成整体,造纯粹通透的格局。室外之景为室内之画,人立于室内,见水动云移,观碧树黛山,自得闲适惬意。
连绵波涛化为艺术楼梯,将空间进行分割,起伏流畅的曲线勾画了别样浪漫,让静中有动,动中带静。错落有致的吊灯宛如静止的水滴,溶于空间中,带来了美妙的视觉冲击。
全案采用现代极简手法绘制空间,以纯净白为主调,不作过多繁杂装饰,偶有几抹跳动的蓝点缀空间,以此突出自然人文的主题。设计师故意模糊了室内与自然的界限,让人即使身处室内,视野与心境却越过空间的限制,与自然展开对话。
项目名称:卓越蔚蓝海岸销售中心 - 水迹
特别鸣谢:卓越置业集团(南京) 有限公司 左晓舰、龚欣、苏裕
室内设计:广州道胜设计有限公司
软装设计:广州道胜设计有限公司
设计团队: 赖添保、刘丹云、黄峥华、黄秀华、吴乃善
客户名称: 卓越置业集团(南京) 有限公司
设计面积:1800 ㎡
主要材料:拉丝处理石材、原色肌理不锈钢、黑白根大理石砖、墙布(硬扪)、黑色不锈钢;
项目摄影:东晴SAPLINGFILM
视频拍摄:东晴SAPLINGFILM
设计时间: 2018.06
竣工时间: 2019.03
奉行“适合”就好的设计哲学,2003年创立何永明设计师事务所,2005年成立广州道胜设计公司,广东省陈设艺术协会副会长,中国建筑学会会员、中国建筑学会室内设计分会理事,专注设计工作之余亦曾担任广州美术学院、华南师范大学室内设计系客座讲师。
近年来荣获国内外设计奖项超过100多项,其中更获德国红点大奖、德国IF设计大奖、美国BEST OF YEAR AWARDS设计金奖、安德鲁马丁国际室内设计大奖、意大利A design 设计金奖 、美国IDA设计大奖银奖、香港环球设计大奖 、 APIDA香港亚太室内设计大奖。
(保利水木芳华销售中心)
(K11 Mays 餐厅)
(K11 Mays 餐厅)
(阳江北洛湾C1户型)
现代 售楼处 自然 人文
客服
消息
收藏
下载
最近
































































