查看完整案例

收藏

下载
设计:HofmanDujardin
设计团队:Barbara Dujardin、Michiel Hofman、Thom Zijlstra、Nuno Urbano、Nagore Fernandes and Joana Barriocanal
地址:荷兰 鹿特丹
面积:3,800 平方米
时间:2021年
摄影:Gastonomy
Tags:保险,历史建筑、复合多元、协作与专注、企业属性表达、时尚温馨活力、绿色植物和艺术作品、红与绿
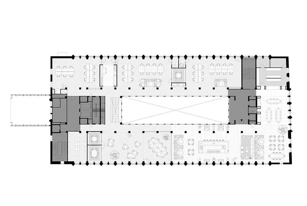
HDI Global SE鹿特丹办公室位于市中心的一座纪念性历史建筑内。HofmanDujardin设计了该办公室,除了工作区,还包括一个餐厅、安静的阅览空间和一个入口接待区。接待吧桌和等候休息区又兼作非正式会议区,促进员工在这里喝咖啡时自然地遇见和交流。
01/
平衡协作与专注需求的多元工作空间
这是一个平衡了团队协作和专注工作的多元办公场所。除了规划有高度可调的升降桌工作区外,还有几处会议室和其他可供选择的协作区,以提供更多的舒适选择、并鼓励更多的即兴协作。
安静的区域配置了大型阅读桌为专注工作提供了宁静的空间。
02/
源于企业属性的调色板
HDI Global SE是一家国际工业保险公司,为制造业提供保险服务。其独特的行业属性为本案的材料板选用提供了灵感来源。在由浅色的钢、铝和梣木饰面构筑的中性基调里,加入提取自企业标识系统的绿色和红色焕活了整个空间氛围。比如,连接两个楼层的红色楼梯就是最好的例证。最后,大量活力盎然的绿植和艺术作品更是赋予空间无与伦比的品质表达。
03/
温馨活力的餐厅
布局紧凑的餐厅配置了三张大长桌,旨在邀请不同部门的员工一起享用午餐时光。这样的设计促进了更多的交流、增进了同事情谊、也增强了凝聚力。
就像欢乐的彩色水磨石地面一样,红色的设计元素为这里增加了温暖和开放的情感表达。简洁的配色却让这里焕发着温馨与活力。位于一侧的两个车厢座则提供了一个较为私密的小空间,提供更亲密的用餐氛围。
特色产品应用——
1、Slit 茶几,品牌:HAY
2、Drop圆凳,品牌:COR
3、Clerici休闲椅,品牌:Mattiazzi
4、Rival 木椅,品牌:Artek
5、Lab S73 吧椅,品牌:Lapalma
6、Revolver吧椅,品牌:HAY
7、Cosm办公椅,品牌:Herman Miller
客服
消息
收藏
下载
最近
































