查看完整案例

收藏

下载

翻译
Architect:KAAN Architecten
Location:Sausolitolaan, Spadinalaan, Amsterdam, The Netherlands; | ;View Map
Project Year:2024
Category:Car Parks;Apartments
The development of Aan het IJnorth of Amsterdam's city centre embodies the balance between individuality and community. Situated within Geurst & Schulze's 2003 master plan, The Stack celebrates urban living in the new neighbourhood. The design aims to minimize repetition within the project. KAAN Architecten explored two key elements to produce this diversity:different outside spaces, and a variety of apartment layouts. It results in 120 distinctive, spacious apartments housed in two interconnected villas that share a deck and a garden.
Strategically situated located on the IJ opposite the Central Station within Amsterdam's bustling landscape, Aan het IJoffers a generous option for city residents seeking intentional,calm living. With its unique location just beyond the city centre the development invites those who desire both engagements with urban vibrancy and moments of tranquillity.
The masterplanused residences and residential hotels from the 1930sas a reference, to develop housing with communal facilities where living and working functions could be interchanged. The green character dominates the neighbourhood atmosphere, and the placement of the buildings forms public urban spaces and communal interior areas. Aan het IJprovides a new kind of living and working environment for the city with a very strong urban identity.
The neighbourhood itself can be regarded as a park-like grid with evenly distributed buildings. The tissue is diverse; consisting of roads, streets and paths. Sometimes,absence of a building creates an open space. The structure seems to amalgamate the former industrial area street pattern here and the ‘Van der Pek’ neighbourhood on the other side of the ‘Buiksloterkanaal’. It reverses the formal city with stately buildings and invisible personalised courtyards into an informal neighbourhoodwithout front odr backsides and with accessible buildings and expressive personalised balconies. KAAN Architecten takes these premises into the “The Stack” as the design and development starting point.
At The Stack, architectural envelopes contain qualities such as 'light', 'sparkling', 'premium' and 'flair'. They require a sophisticated approach that avoids rigidity in favour of flexibility. Recognising that architecture serves as a conduit for personal expression. The project addresses the relation of the individual with the city. It emphasises the relationship between neighbourhood and home. Taken that as key features of the master plan, it includes gracefully contoured buildings that offer panoramic views and a generous sense of space. The architecture incorporates stepped configurations and elongated balcony panels to add elegance and playfulness to the landscape. The indentations of the façade line express individuality and complement the building envelope. The apartment layouts seek to maximise natural light and capture the sun with units strategically oriented. The overall impression of the staggered terraces and balconies is vibrant and welcoming.
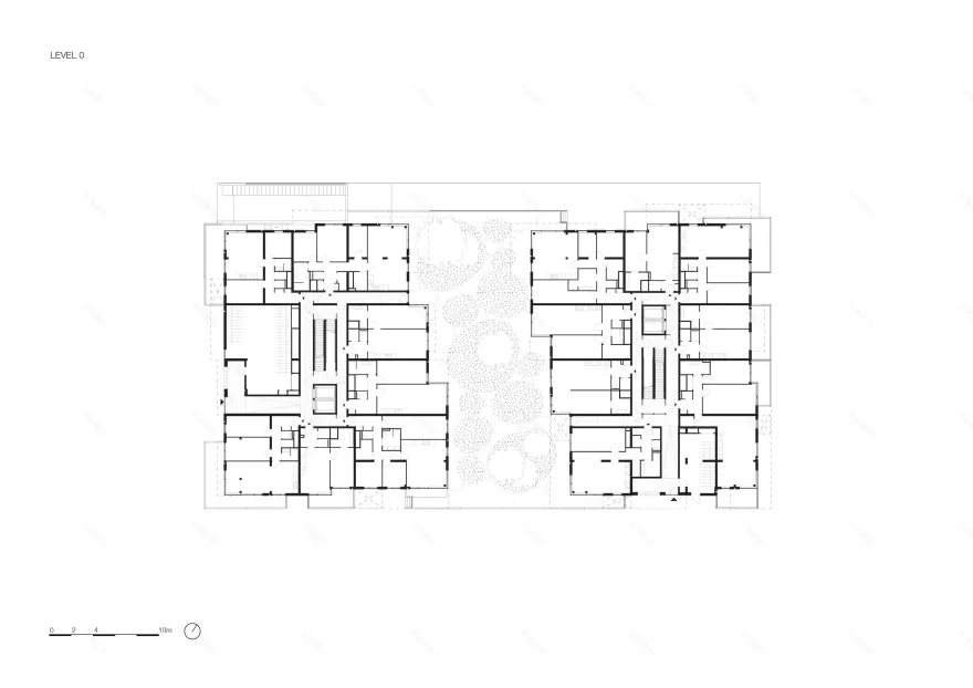
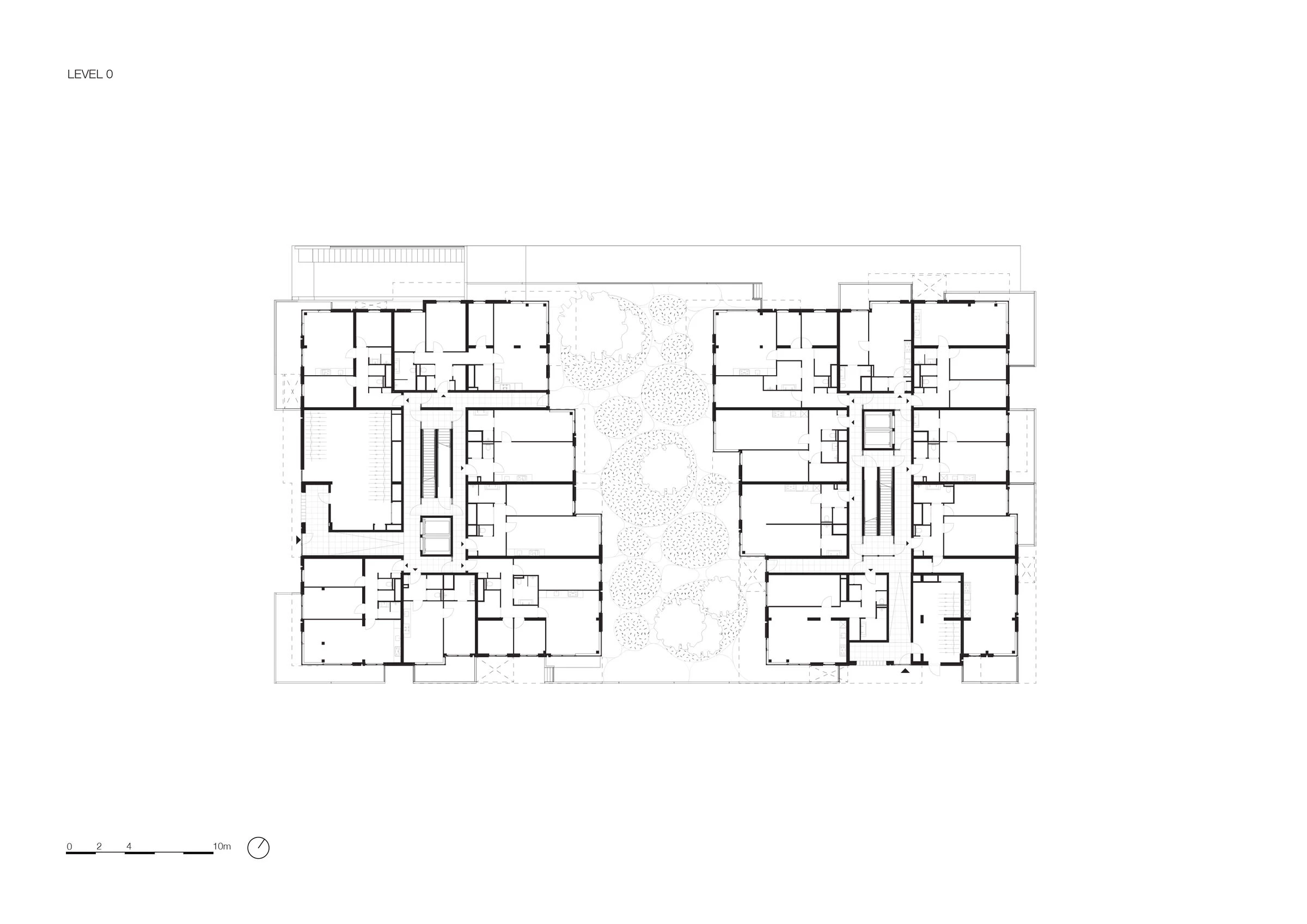
For this specific location, the urban plan prescribed two smaller separated buildings with a communal garden in between. The eastern building, with seven floors, has its entrance along the Spadinalaan, and the western building has eight floors along the Sausolitolaan, giving both villa’s a clear address. The natural stone-clad entrances lead to the central core with clearly visible stairs. On the ground floor, the entrance also gives access to the communal garden situated in between more private terraces.
Both buildings have similarlayouts, but the alternating façade contours generate different floor types and apartments.Smaller appartments are situated on the lower floors, while the bigger ones are located on the upper floors. Sizes range from 49m2 to 105m2 for standard apartments in both buildings. The eastern building has one extra floor with two penthouses of approximately 160m2 and wide-open views over the neighborhood. This extra floor subtly respondsto the central positioning between two pocket parks. Building installations of both buildings are embedded in the volume keeping the roof landscape clear from technical components except the solar panels.
Although entirely different, both blocks share a coherent visual identity. Light grey concrete is the unifying element for the façade panels, balcony slabs and balustrades. Using the same colour palette for the metal railings at the openings contributes to the continuity and sophistication of the complex.
Attention to detail extends to the connections between concrete elements, where interlocking ensures structural integrity and visual unity. Careful consideration of joint dimensions and alignment prevents fragmentation and maintains the cohesiveness of the design.Within this concrete canvas, light bronze window frames add refinement and subtle colour nuances, reinforcing the architectural composition. Thisis reflected in the entrances, which feature grey and beige natural stone, further emphasising Aan het IJ's overall aesthetic.
In essence, Aan het IJ transcends traditional notions of urban planning, creating a dynamic and inclusive community where the scale of the city converges with the individual experience to form a truly unique identity.It is exactly this quality that is synthesized in the Stack, a testament to KAAN Architecten's commitment to excellence in contextual design.
Architect: KAAN Architecten (Kees Kaan, Vincent Panhuysen, Dikkie Scipio)
Project team: Allard Assies, Andreas Alevras, Beatrice Bagnara, Sjoerd Boomars, Koen Bosman, Timo Cardol, Di Fang, Michael Geensen, Cristina Gonzalo Cuairán, Thomas Hayat, NarcisaIonita, Kees Kaan, Laura Ospina, Vincent Panhuysen, Dikkie Scipio, Katarzyna Seweryn, Aldo Trim, Claudia Vermeulen
Client: Amvest, Amsterdam
Landscape designer: Sant en Co, Den Haag
Urban design: Geurst en Schulze, Den Haag
Building physics supervisor: DGMR, The Hague
Fire safety engineer: DGMR, The Hague
Acoustics advisor: DGMR, The Hague
Building costs advisor: Total Cost, Harmelen
Management: Rienks Adviseurs, Utrecht
Main contractor: Kondor Wessels, Amsterdam
Construction advisor: Diocon, Limmen
Constructor W(erktuigbouw): P.C. van der Horst BV, Uitgeest
Constructor E(lectrical): Blom elektrotechniek, Beverwijk
Technical installations advisor: Mabutec, Snelrewaard
Photography: Sebastian van Damme
▼项目更多图片
客服
消息
收藏
下载
最近




























