查看完整案例

收藏

下载
如果有一天,你家娃一夜长大,变成一个顶天立地的小怪兽,怎么办?
以“让生活回归本真”为主题,该户型兼顾美学与功能一致性的基础上,将生活精细化,优化生活场景,摆脱花哨的表面,而抵达产品的本质。
幼儿园的便当日
幼儿园的便当日,也是妈妈的战斗日!幼儿园每周都会有便当日,是为了让忙于工作的家长们能够融入到孩子们的生活中。便当讲究营养搭配、食物本味,最最最重要的就是设计感,孩子们之间会相互交流比较,妈妈的胜负欲瞬间燃起啊,完全是一场艺术的战争。
一园青菜成了精
客餐厅一体化的设计,延贯而出的阳台,空间视觉效果更加宽阔通透,花园菜园幼儿园,是孩子的最爱。妈妈希望孩子有一个快乐的童年,提供足够的条件去探索去体验,学习到属于自己的知识,开心菜园里不仅有菜,还有机器人小胖的陪伴,营造尊重孩子意愿的地方,和小胖一起自由成长。
我是大艺术家
喜欢画画的孩子,已经是妈妈眼中的大艺术家。交织的色彩、流动的线条为生活注入生机与律动,儿童房以大艺术家为主题,从壁纸到配饰都是以大艺术家系列产品进行延展,幸福感十足的儿童房充满生机与艺术。傍晚时分,家长可以坐在长凳,辅导孩子做功课,陪伴孩子睡觉,共享安静亲子时光。
妈妈测评-你的健康呵护指南
直播房是为女主人专门打造的工作空间。
对于妈妈来说,护肤是日常生活,把经验直播分享更是热爱的工作。带娃出门尽情撒欢,还晒不黑的秘密,就是用了妈妈测评的儿童防晒霜。
妈妈的充电站
喜欢测评护肤的妈妈,卧室空间设计更加年轻化,飘窗是提升幸福感的必备空间,夜深人静神兽归笼,二十不惑,三十而已,四十依旧,五十也值得期待......
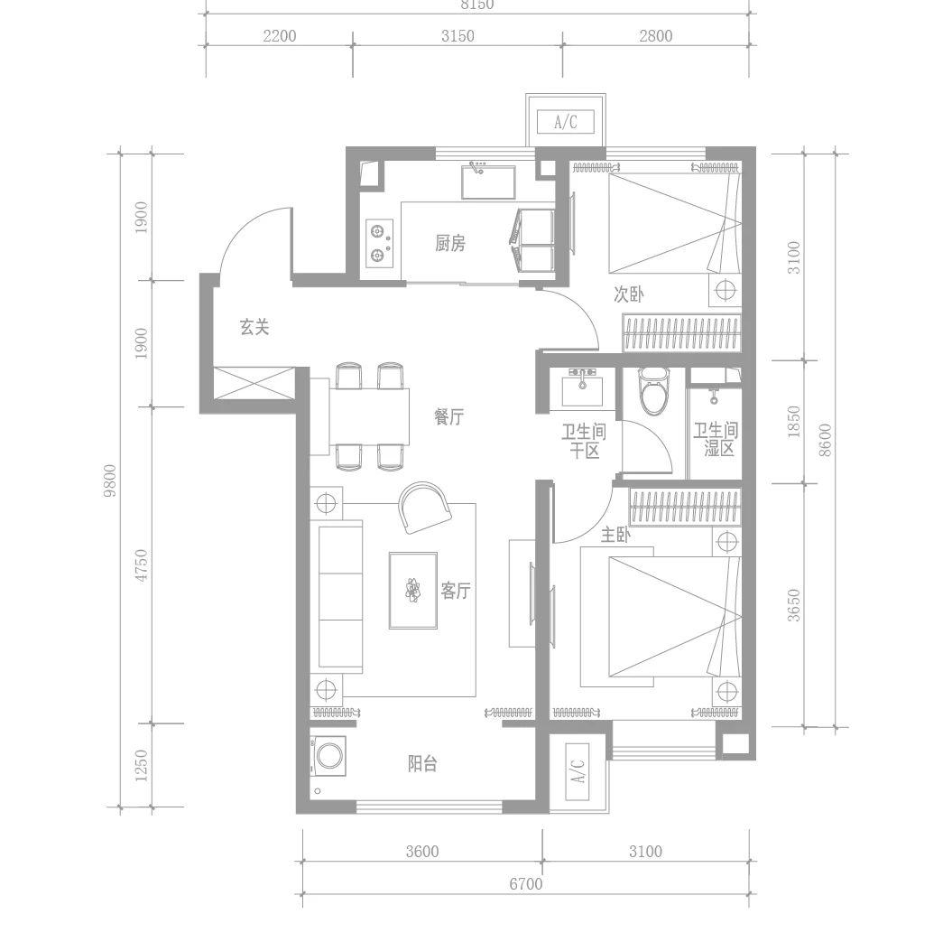
# 平面布置图 #
95 后到底是如何生活的,在这里可以找到答案。他们追求时尚与潮流,注重自我表达,整个体验空间以“无定义、无边界”为设计理念,唤醒生活的质感,坚持独立思考的生活价值观及自由精神,去表达不被定义的生活。健康养生要趁早 95 后的朋克养生大法,运动食补齐上阵,主张随时随地健身,收纳更像是展示陈列。针对肌肉训练、平板撑、步伐训练等需求,我们将室内的活动空间尽可能放大,将餐桌进行折叠。健身配置有:定制地垫+智能健身魔镜+百变收纳+拉伸立架+拳击立式沙袋
颜值即正义。客厅空间搭配时尚单品及智能开关系统,在此可演绎居家、聚会、健身等多种极具体验性的场景故事。大胆新奇的时尚单品的聚集,智能可变灯光带使家增添了特殊的魅力。
卧室空间,红色装饰品成为整个空间视觉焦点,让原本直白的空间变得有趣,使空间充满故事性。
懒吃懒住不出门。叫上好基友一起开黑吧,“要是有这样的一个家,我还找什么女朋友啊”直男同学发出了这样的感慨,他说这简直是所有男人梦想中的家!电竞房内配备人体工程学设计的电竞椅,遍布在电脑周围的幻彩 RGB 灯光瞬间点燃你的战斗热情,高光与荣耀即刻予你独享!
# 平面布置图 #
该户型以现代轻奢为主题,全屋以灰白用作主色调,包容着丰富而细腻的情绪,表达成功人士对未来生活的期待与向往。
邂逅精致
空气中弥漫着简奢的复合气息,优雅的和弦声像是从客厅装饰画的花丛中流淌出来,米色沙发抚慰着身体的疲惫,超大尺度的飘窗沙发,透过大面积的落地窗,城市的半空与自然的景色,带来无与伦比的舒适。
设计师对空间进行了优化处理,客餐厅一体化的设计使空间视觉开阔明朗。在灰白调的色系中,原木色恰到好处的点缀,凸显了空间的丰满和层次,营造出内敛轻奢的质感和简约独特的艺术氛围。
承载丰富的内心,延续灰白色基调,营造出温馨舒适的空间氛围。兼具充沛采光性能与轻办公功能的惬意飘窗,在闲适沐浴阳光的同时,更将收获生活难得的宁静时刻。
邂逅自由
儿童房以自由、探索、机械的理念为灵感,结合赛车模型元素设计,并以蓝、白、灰等颜色相配,构建出符合男孩天生爱玩、活泼、喜欢器械的特性,象征着孩子无惧未来,自由探索的美好愿望。
学习书桌及墙上收纳柜设计集收纳与美观于一体,整洁干净,让一切繁杂化为精简。可放置照片、书夹等,让零散学习物品收纳更简单,孩童学习更专注。
邂逅格调
“一个好的调香师鼻子和心灵该是同样敏感,她是生活的观察者,体验者,领悟者,她必然是热爱大自然,亲近大自然的。”
进入闻香室,融合着些许的颗粒感与烟草气的木质香气扑面而来,让整个人仿佛置身于午后阳光中,温暖而安定。在朦胧的灰白间,复杂细腻的情绪推波助澜,终又归于平静,仿佛平和淡然,才是真正享有自由的开始。
# 平面布置图 #
项目信息:
项目名称 | 万科公园都会
项目地点 | 河北 唐山
业主单位 | 冀北万科
竣工时间 | 2021 年 06 月
甲方团队 | 冀北万科产品设计部
全案设计 | 北京墨亦 MOI
文章来源 | 北京墨亦 MOI
室内摄影 | Remex 飞羽
墨亦建筑装饰设计(北京)有限公司,成立于 2014 年,办公地点坐落在北京市东城区亮点文创园,是一个专业从事房地产相关业务的室内设计团队。
业务领域的专业性:公司整体运营方向锁定在房地产室内设计与销售包装板块,多年的经验积累,形成了与房地产开发商相同的设计语汇及设计规范体系;
业务领域的丰富性:软硬装一体化设计。在效果方面,从方案前期的意向选择,到后期执行落地,形成了无缝对接,使方案效果前后气韵贯通;在执行方面:明确设计及执行各环节主要对接人,提高甲乙方在设计对接环节的效率,保证设计意图的正确传达,为项目落地打好基础。
业务领域的稳定性:设计师的流动频率低,为全项目设计周期提供了良好的人员保障;多年的设计经验积累,也为项目最终效果的呈现提供了坚实的基础。
战略伙伴:万科地产;华润置地、融创地产、龙湖地产、中海地产、远洋地产、首开集团、华远地产;奥山地产、中信地产等。
客服
消息
收藏
下载
最近










































