查看完整案例

收藏

下载
MASAAKI HISATAKE Architects Inc.:本案为一个办公总部大楼改造类项目。
MASAAKI HISATAKE Architects Inc.: This is a renovation project of an office headquarters building.
▽入口视野 View from the entrance
▽入口屏幕 Entrance screen
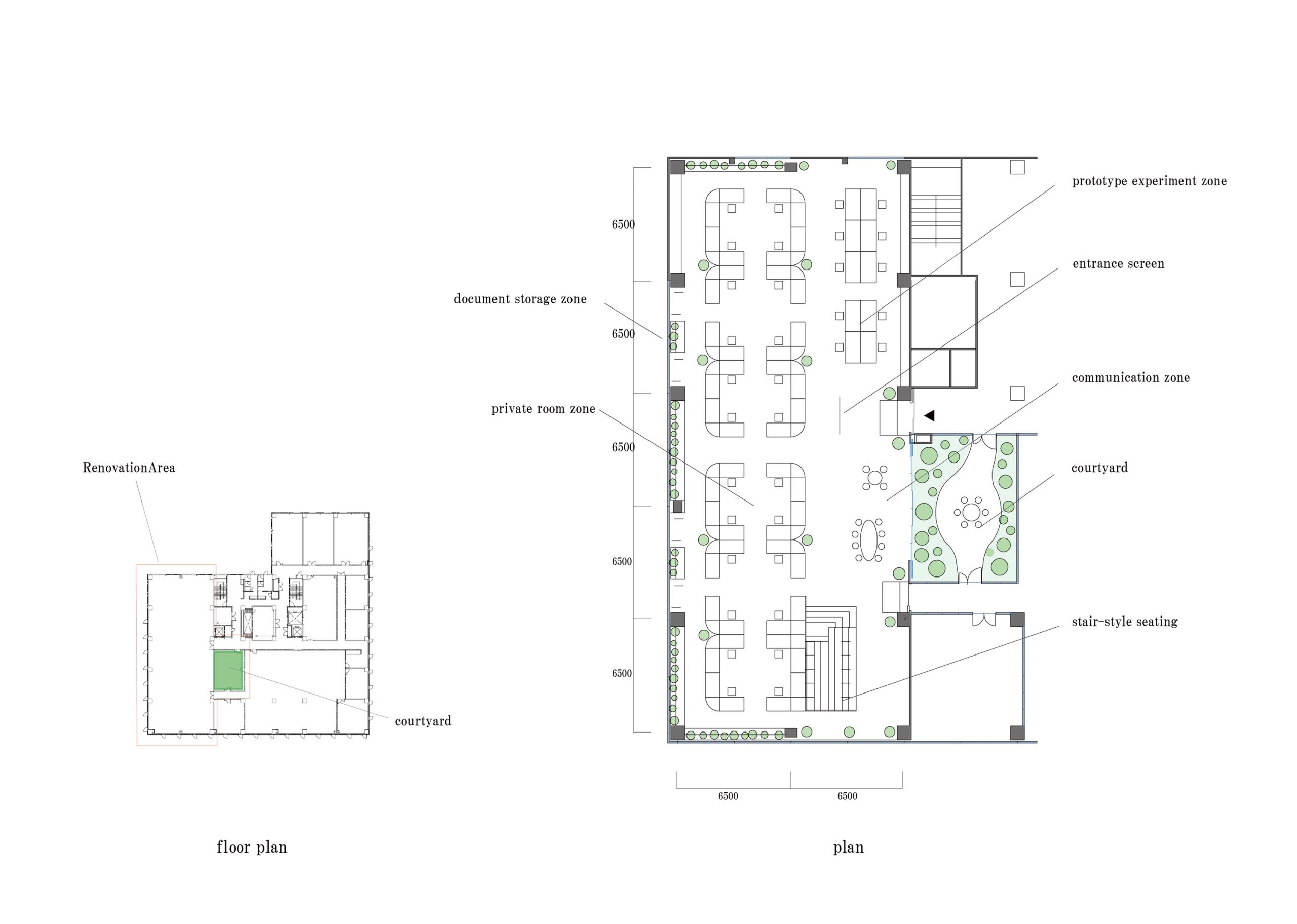
创意诞生于庭院 Innovation is born from the “courtyard”。设计旨在为人们打造一个可以激发创新灵感、让人集中精力和舒适交流的地方。设计方案中构想了一个室内的“庭院”,它位于楼层的中心,周围是可以打开和关闭的玻璃屏,创造了一个从楼层的各个角落都能感受到大量绿色植物的办公环境。
A place where innovation can be born and where concentration and communication can be comfortable was sought. The concept was to create an interior “courtyard. The “courtyard” was placed in the center of the floor and surrounded by a glass screen that can be opened and closed, creating a workspace where the volume of greenery can be felt from anywhere on the floor.▽平面图 Plan
▽交流区 Communication Zone
“庭院”中的绿色植物被天花板上的反射板放大,工作空间外如大自然般的存在刺激了观者的感官,同时也能抚慰心灵,营造了一个能激发创意的工作环境。随着远程办公在疫情期间的推行,人们需要一种无法在网络上获得的沟通,这就是“Nakano”空间发挥作用之处。随着疫情的发展,我们也再次意识到人们需要一个重视人与自然之间联系的工作空间。
The greenery in the courtyard is amplified by the reflective panels on the ceiling. The presence of nature outside stimulates the viewer’s senses and soothes the soul, creating an environment where creative ideas can naturally arise. As telecommuting advances in the Corona Disaster, there is a need for communication that cannot be obtained online, and that is where the “Nakano” space comes into play. What stimulates these sensors is the nature of the “courtyard. People cannot live apart from the earth. With the Corona Disaster, we have once again realized a workspace that values the connection between people and nature.
▽从交流区观看庭院 View of the courtyard from the communication zone
▽庭院中种植的各类植物 The courtyard is planted with various types of plants
▽庭院,植物倒映在天花板的镜子面板上 Courtyard. Plants are reflected in the mirrored panels on the ceiling.
舒适的专注和交流 Comfortable concentration and communication
该楼层分为五个区域:私密办公区、交流区、原型区域、资料储存区和庭院。资料储存区所在的窗户一侧是隔热层,而私密办公区位于最为宽敞的楼层中央,办公桌在场地中围合留出一条环形流线,方便员工进出。面向“庭院”的交流区还配备了用于演讲的阶梯座椅,“庭院”中的会议桌也可用于远程会议。
The floor consists of five zones: private rooms, communication, prototype experiment, material storage, and courtyard. The material storage zone is a thermal barrier on the window side, while the private room zone is spaciously located in the center of the floor, with a circular flow line that allows easy access to the workspace. The communication zone facing the courtyard is also equipped with stairway seating for presentations, and the meeting tables in the courtyard are also used for remote meetings.
▽阶梯式座椅 stair-style seating
▽私密办公区,四张 L 形书桌宽敞地排列成一组 Private room zone, with L-shaped desks spaciously arranged in groups of four.
▽从私人房间区观看庭院 View of the courtyard from the private room zone
有助于放松的柔和光线 Soft light for relaxation
房间中央笔直的天花板营造了一种开放的感觉,悬挂在天花板上的帘幕会根据观看者的位置而呈现不同的形式。房间周边的空调设备以及大梁的管道保证了室内均匀而舒适的空气,形成向下的气流。一条强烈的照明灯沿着构成房间框架的大梁流淌,周边的间接照明暖光笼罩着整个房间。
A line of light runs along the large beam that forms the framework of the room. Indirect lighting around the perimeter of the room warmly envelops the entire room. The table in the private room zone is an L-shaped wooden table with partitions, which creates an environment for concentration and also serves as a countermeasure against infection. The flat corners are rounded to facilitate smooth flow of flow.
▽从阶梯座位看向原型区域的视野 View of prototype zone from stairway seating
▽从交流区看向原型区域的视野 View of the prototype zone from the communication zone
丰富心灵的绿色植物 Greenery to Enrich the Mind
“庭院”里的植物采用水培的方式,便于管理,每棵植物都由员工取名并精心养护。种植植物也是一种激发想象力、丰富心灵的方式。
Plants in the courtyard are hydroponically grown for easy management. Each plant is given a name by an employee and carefully nurtured. Growing plants is also a way to stimulate imagination.
办公室内在天花板角落里安装了弧形照明,窗户一侧安装了电动木质百叶窗,提高了空间的私密性,墙上的镜面板也进一步放大了空间的体量感。
The mirrored panels on the walls give the room an expanded appearance. Indirect, curved lighting is placed in the corner of the ceiling. Electric wooden blinds are installed on the window side.
▽办公室 President’s Office
项目名称:山本电气总公司大楼改造
完成年份:2020 年
总建筑面积:510 平方米
项目地点:日本 兵库县 西尻池町 长田角 1-2-3
景观/建筑公司:MASAAKI HISATAKE Architects Inc.
首席架构师:Masaaki Hisatake
绿化设计:MASAAKI HISATAKE Architects Inc.、Itsuko Hisatake
客户:Yamamoto Electric Works Co., Ltd.
建造方:PARCO SPACE SYSTEMS CO.,LTD.
Project Name: Yamamoto Electric Works Head Office Building Renovation
Completion Year: 2020
Scale: Gross Built Area:510 m2
Project Location: 1-2-3 nishijiriike-cho nagata kobe Hyogo JAPAN
Landscape/Architecture Firm: MASAAKI HISATAKE Architects Inc.
Lead Architects: Masaaki Hisatake
Design Team: Green design:MASAAKI HISATAKE Architects Inc., Itsuko Hisatake
Clients: Yamamoto Electric Works Co., Ltd.
Constructor: PARCO SPACE SYSTEMS CO.,LTD.
Photo Credits: TERASHITA JUNYA
“在建筑内部开辟一座‘庭院’,为办公环境注入自然灵感。”
客服
消息
收藏
下载
最近

















