查看完整案例

收藏

下载
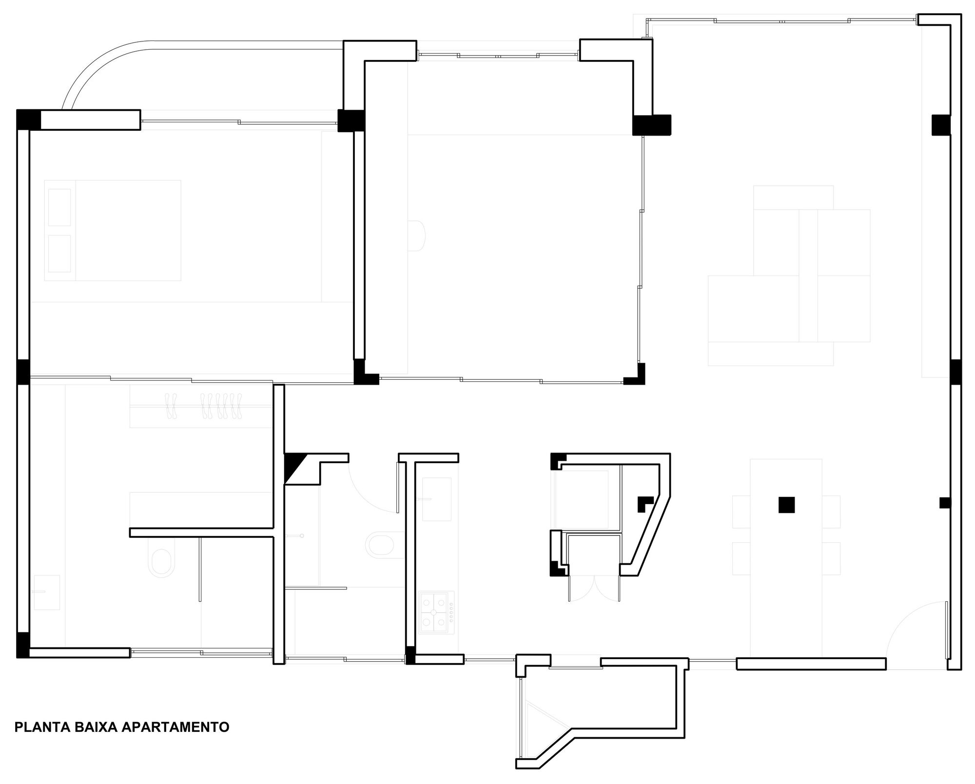
这套 110 平方米的公寓位于里约热内卢弗拉门戈社区,其设计理念旨在扩大由原始配置界定的现有空间,创造新的可能性和变化。 主要的挑战来自五个细长的支柱,它们彼此靠近且位于中心位置,这最终成为该项目的基本前提。 我们选择用不规则的原始混凝土元素包围它们,这成为了一个亮点,包围了冰箱和橱柜,并在环境中创建了一条圆形走道。
由于工作室的前提之一是跨越物质与抽象之间的界限,我们决定采用混凝土梁和柱,以及大部分不锈钢家具。 这种原始与精致之间的对比旨在唤起超现实、梦幻和雕塑般的空间。 连续的高科技水泥地板以及原始色调的墙壁和天花板的设计都是为了与现有混凝土的纹理相协调。 因此,墙壁上覆盖着有纹理的沙色涂料,给人一种不规则的手工质感,触感柔软且敏感,同时在视觉上让人想起原始混凝土。 这一结果以灰米色的色调清洗了室内,与结构保持一致,并将环境转变为“空白画布”,代表了当前和未来干预可能性的场景。
通过拆除公寓的墙壁,梁结构本身勾勒出空间,这些空间由滑动磨砂玻璃门隔开,建立一个抽象的背景,不仅反射光线,还反射从另一侧投射的阴影的细微差别。 公寓的多种配置既可以关闭这些门以创建一个新卧室,也可以将它们完全打开,从而展现出客厅、办公室和厨房之间完全集成的空间。
公寓入口附近有一张雄伟的中央混凝土桌子,固定在结构柱上。 它被认为是一个大型浮动整体结构,在材料的残酷性和其悬挂的轻盈性之间建立了一种关系,将其自身呈现为该项目中的一个重要的建筑元素。 它在环境中的位置也凸显了空间的多功能性,既可以用作餐桌,也可以用作工作区。
雕塑混凝土结构与桌子成直接比例关系,围绕现有的柱子放置。 其中集成了不锈钢橱柜 - 厨房所选的材料。 这种关系在社交浴室中得到了最大限度的体现,其墙壁完全覆盖着未加工的混凝土,与大型浮动水槽中不锈钢的反射率和亮度形成鲜明对比。
对所有空间整合的追求也体现在卧室中,卧室与衣柜和浴室仅通过推拉门隔开。 浴室内宽大的混凝土台面几乎从卧室开始,作为衣柜、卧室和浴室使用的支撑,从而增强了整个公寓的完整性。
项目设计:Nama
项目面积: 110.2501349m²
项目年份:2024
项目摄影:Fran Parente
供应商: Deca, High Inox, Jabuticasa, Legado, NS Brazil, Terracor
首席建筑师:Ana Szwarc, Marcela Rezende
项目成市: Rio de Janeiro
项目国家: Brazil
设计师:Nama
语言:英语
客服
消息
收藏
下载
最近



































