查看完整案例

收藏

下载
就像 Jardim Europa 社区边缘的一座悬空房屋一样,Nube 公寓出现了。 除了拥抱和理解居住在那里的人们的习惯和收藏之外,还将树木繁茂的景观带入居民的日常生活的愿望是一个起点。
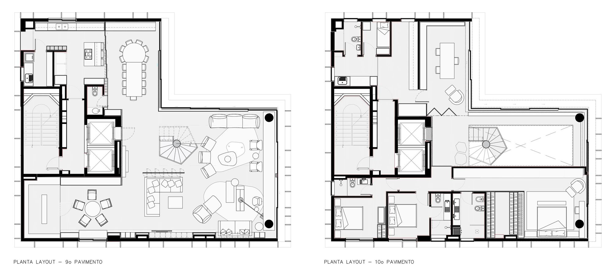
了解这对夫妇的动态是布局开发研究的主要焦点。
厨房具有私密性并与餐厅融为一体,客厅可容纳大家庭、酒吧、地窖、家庭影院和办公室。 创造不同的用途而不重复,因此没有房间变得过时。 非常重要的是,一切事物的存在都是出于必然性,并且从必然性中创造出美。
建筑结构的边梁上设置了带有 CD 架的走道。 木工中象限的重复渗透到边缘和天花板中,在客厅的双层高度和环境装饰中产生了一种好奇心。 被窗户包围,创造自支撑元素来装饰并为公寓提供舒适感是很有趣的。
Nube 公寓是一个在众多物质元素中,色调的交汇软化了整体的项目。
纹理的混合丰富了外观,并将自然元素带入房屋,这一点对于我们重新建立联系非常重要。
作为对材料的实验和探索,入口面板上覆盖着模仿的门,连接餐厅/厨房的山形墙,以及通往厨房和酒吧的原始岛的楼梯台阶,都使用了质朴的花岗岩。
木材作为社交区域地板和天花板的基础带来了热、声学和触觉上的舒适感。 由于其中性色调不会冒犯庇护所,它使台阶变得舒适,客厅也变得明亮。
色彩的点缀是通过装饰和植被带来的,在质朴的花盆中进行景观美化,盆栽的基础是为该地点设计的石头。
赤土色天鹅绒的触感温暖了环境,并与黑色格子铁制品形成鲜明对比。 平衡冷暖,将所有感觉带入同一所房子,这很有趣。
项目设计:Nati Minas & Studio
项目面积: 420.2501349m²
项目年份:2022
项目摄影:Fran Parente
供应商: Miele, Arlflex – MiCasa, Bricks Engenharia, Dimlux, Doriedson Marmores, Engehigh, FAS Iluminação, Fabrilis, Franco Berriel, Jader Almeida, Joshua, Lumini, Micasa, Nani Chinellato, Neobambu, O/M Light - Osvaldo Matos, Paglioto, Phenícia, Pro5
首席建筑师:Natália Minas, Gabriela Mestriner
项目团队: Julie Bennatar, Ana Luisa Lisboa, Pedro Pollo
项目成市: Jardim Paulista
项目国家: Brazil
设计师:Nati Minas \u0026 Studio
语言:英语
客服
消息
收藏
下载
最近




















































