查看完整案例

收藏

下载
房屋位于云南昆明滇池边,楼层适中,天光充足,在阳台、主卧均可观滇池,风景极佳;
业主一家三代同堂,喜欢茶文化,有使用书房的需求,喜欢开放式厨房;
业主很有个性,喜欢深色系极简且有调性的居家风格,然考虑三代同堂里老人的接受度,以及小孩的成长,我们色彩上整体依然保持使用黑白调,局部选用灰色,以及零星木色点缀,让业主能在自己喜好的黑白之间,寻找纯粹的美~
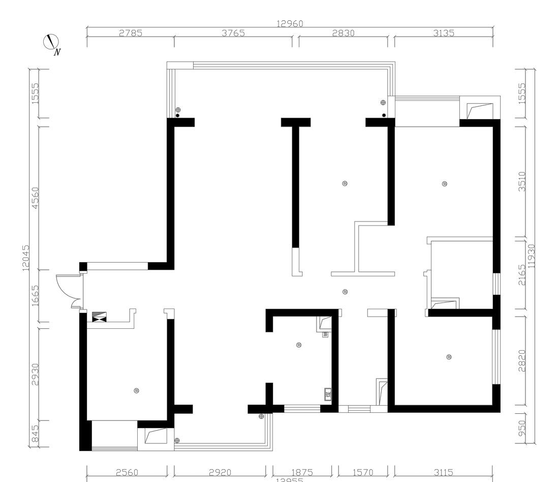
平面图分析:
1、房屋端头房,楼层适中,天光极好,有个较大景观阳台朝向西南,下午较晒。整个房屋三面都有光线很好的外窗(没有内天井内窗),每个房间都有特别的景色;
2、原房墙体几乎是剪力墙,可改动不多;
3、该区域受天然气公司约束,不可以做开放式厨房,在设计中改造受限;
4、原房主卧内可收纳空间较小,不可满足业主需求。
平面布置图分析:
1、入户鞋柜区,柜子,墙面加柜板、隐形门拉通入户视觉效果,黑柜灰墙整体时尚感拉满;
2、景观阳台风景极好,加之业主爱品茗,在景观阳台放置大桌子泡茶,茶台后部还设计了清洗茶杯的水槽柜,方便收纳清洗茶具;
3、业主需要书房,喜欢喝茶,在设计书房使用开放式洄游动线,业主在阳台品茶看景,亦可在书房穿梭自如;
4、原过道窄长并且无光,改造书房时,拓宽了部分过道,视觉上有了层次、减短了过道长度,并且书房开放式,增加了过道的光线。过道尽头墙体还安装了一墙体灯,单调墙体增加了趣味性;
5、厨房因为受区域限制,不可做开放式厨房,但业主又很倾心开放式,在设计上,厨房保留墙体梭门,开门后与外部橱柜可为一体,使用上接近开放式;
6、主卧原本衣柜收纳不足,改造书房后,利用书房空间,主卧改造出一间衣帽间,增加了收纳量。
立体平面布置图,空间构造更为直观~
入户鞋柜区,柜子,墙面加柜板、隐形门拉通入户视觉效果,黑柜灰墙整体时尚感拉满。
1、入户鞋柜区,柜子,墙面加柜板、隐形门拉通入户视觉效果,黑柜灰墙整体时尚感拉满。
2、原过道窄长并且无光,改造书房时,拓宽了部分过道,视觉上有了层次、减短了过道长度,并且书房开放式,增加了过道的光线。过道尽头墙体还安装了一墙体灯,单调墙体增加了趣味性。
客厅做了整柜电视墙,选用高低错落的柜门,是收纳,也是一面造型墙。
电视墙的收纳体,部分做了悬挑设计,顶上加装天际线灯,整体电视墙实用又特别。
电视墙的收纳体,部分做了悬挑设计,顶上加装天际线灯,整体电视墙实用又特别。
电视墙白色地柜,延展到墙体边成为高柜,结构互相贯穿完成自然收口,不仔细几乎看不出是个收纳柜。
电视墙白色地柜,延展到墙体边成为高柜,结构互相贯穿完成自然收口,不仔细几乎看不出是个收纳柜。
景观阳台风景极好,加之业主爱品茗,在景观阳台放置大桌子泡茶,茶台后部还设计了清洗茶杯的水槽柜,方便收纳清洗茶具。
杯子展示墙~
阳台、书房使用开放式洄游动线,业主在阳台品茶看景,亦可在书房穿梭自如。
在设计书房使用开放式洄游动线,业主在阳台品茶看景,亦可在书房穿梭自如。
在设计书房使用开放式洄游动线,业主在阳台品茶看景,亦可在书房穿梭自如。
远观滇池景,品茶看景好位置~
天花腰线灯带,除了是辅助光源,还可以重新分顶部和墙体,增加了极简设计里线条多样性。
主卧卫生间,局部使用玻璃,整个卫生间从内到外使用灰色,形成一个盒子。
主卧原本衣柜收纳不足,改造书房后,利用书房空间,主卧改造出一间衣帽间,增加了收纳量。
主卧卫生间,局部使用玻璃,整个卫生间从内到外使用灰色,形成一个盒子。
儿童房床尾的书柜、书桌。
餐厅在客厅边,厨房门口。墙上局部使用木色板点缀,和木色餐桌呼应一体。厨房因为受区域限制,不可做开放式厨房,但业主又很倾心开放式,在设计上,厨房保留墙体梭门,开门后与外部橱柜可为一体,使用上接近开放式。
餐桌边整面餐边柜,大大增加了收纳空间,中间开放区域放置饮水机、咖啡机等小家电。
餐厅在客厅边,厨房门口。墙上局部使用木色板点缀,和木色餐桌呼应一体。
厨房内部虽是U型橱柜,除去冰箱一面,橱柜台面空间其实有限,现台面隔着墙体延申到餐厅区,增加的地柜,也是洗碗机的区域。
移门外为生活阳台晾晒区,放置有洗衣烘干机。
整个卫生间从内到外使用灰色,卫生间墙体改动内移,设计有淋浴区壁龛,内移后过道多了一个收纳空间,设计一个收纳柜。
很喜欢的尘市集墙体灯,我们一起在墙体上挖出个城市吧~过道上的门都用隐框门,除了把手,门与墙几乎融合一起。
远观滇池景,品茶看景好位置~
客服
消息
收藏
下载
最近


































