查看完整案例

收藏

下载
业主想要两个卧室、一间书房,格局上保持不变——三室两厅的布局。为了保持公区通透宽敞的体感,客餐厨做LDK一体化设计,公区畅通无阻,自由又自在。风格上在现代中加入轻法元素,让家看起来既是清爽干净的同时,又不乏浪漫的生活情调。奶油色贯通全屋,干净温柔的颜色搭配清爽又浪漫的风格,就像是拌砖都好吃的酱料,这个家不美都不行~~
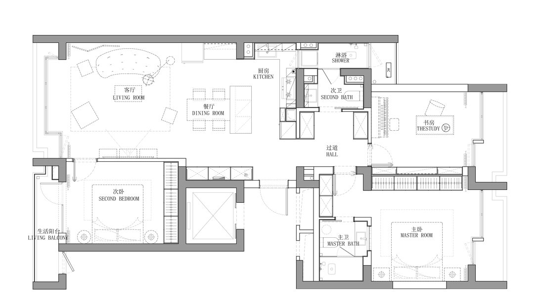
原始户型图;
平面设计图;根据业主的需求,户型格局保持不变。 客餐厨一体化设计,宽敞又通透。 在每个功能区做细致的功能划分,将功能性与体感、美感很好地协调、共处。比例恰当、设计得体。
客餐厅一体化设计,将自然光得以撒入公区的每一处。整个公区的光感、呼吸感特别棒;搭配通刷的奶油色,温柔细腻的空间有着沐浴在自然中的闲适感。
大平顶悬浮吊顶+无主灯设计清爽利落,边边留了15cm左右的间隙,嵌入隐藏式灯带,增添光的氛围感营造。相比纯粹的大平顶加了点细节,家居的生活美感就来自于这一点一滴的细微之处。 次卧门在电视背景墙右边,做隐框门处理和墙壁同色,保证客厅视觉上不被干扰,更具纯粹的美感。
LDK一体化设计,需要注意的便是每个功能区的相对独立性。既有着公区一体化的通透大气之感,又能保持小区域下的怡然自处。对于客厅我们恰好以顶部的横梁+吊顶的形式做隐性分割。不突兀又得体的小心思让客厅有其独立性。定做的电视柜是很有意思的一个造型,悬浮式分割开来,颠覆传统的形式加持造型设计感,带有法式风味的电视柜 让看似极简纯粹的电视背景墙亦有着它的独到心思。
客厅阳台竖琴帘既能起到保护隐私又有很好的透光性,作为一道干净纯粹的光墙成为公区背景的美好存在。
一组软糯慵懒的多人沙发、一把羊羔绒单椅、一组茶几、一张地毯,便足以满足客厅的功能需求。家具挑选的体量都不是很大,多一些留白让公区空间感更大一些。
奶油风格子地毯将客厅家具串联起来,增添席地而坐的随性与温柔居家感受,谁又能不爱地毯呢~氛围感利器。沙发两侧都有两个小边几,方便随手放个小物品,轻松移动又不占空间,空间小的友友们可以考虑扔掉大而沉重的茶几用小边几替代了。
从次卧看向客厅,狗狗姿势优雅地入镜~沙发一角放置一个中古罗马柱落地灯,要说在夜晚拿捏氛围的,还得是各种灯呀。
从客厅看向餐厨区,虽说是客餐厨一体,仍可直观感受到每个空间都有它的自立性——合而有所分,很有秩序化处理的空间布局。餐厨一体,通过岛台的横向布局将餐厨区分开,再通过顶面吊顶+地面不同材质的拼接,强化餐厅和厨房各自的区域"边界"感。
厨房落地橱柜+吊柜,将空间充分利用起来加强厨房的收纳空间,让瓶瓶罐罐、储备的杂粮面粉、锅碗瓢盆都归置好,开放式厨房使用后也可以干净利落,保证公区的清爽整洁。柜门采用无把手回弹式柜门,让厨房看起来更为纯粹美观,公区看起来漂漂亮亮当然是要做好每个小细节的处理~
吸顶式油烟机“藏”进吊柜里,包括冰箱也是提前定好的款式,预留好尺寸,后期直接嵌入进去,整个厨集功能与美貌于一身,看似简洁的厨房区都需要提前安排好各个电器的去处,最后呈现出来的才能称之为一个合格、合理、又好看的厨房。
岛台可不仅是当下年轻人喜欢的时尚家居单品造型而已,在这个家里它承担着备餐功能 分担厨房的压力,内做嵌入式蒸烤箱满足厨房的功能需求,岛台可不是花瓶。
餐桌一侧增设一组矮柜增加收纳空间,上方加一组搁板可做展览空间用,放一些酒水、茶杯亦或是生活的纪念品皆可,怎么去用就看业主自己的喜好了。
餐厅另一侧靠近入户门的位置做排顶天立地柜,来补充公区的收纳功能,可以将生活的杂物都能安排进来,保持一个干净清爽的空间。柜门做圆形内扣拉手,简洁又好看,在小细节上增加一些趣味美感,便可轻松打破满柜的乏味感。
业主需要一间书房办公,其中一间次卧改成书房。延续公区的木质地板,云朵奶油书桌+中古人鱼单椅,这样的环境下办公,就算是疲惫感也会减缓几分吧。
书房做了一整面浅柜不耽误书房门开关,恰当的尺寸分担家居储物压力之外也不会压缩书房面积。柜体中间做内凹的开放式收纳,封闭柜+开放柜处理,以满足不同形式的收纳需求。同时也运用木质元素与木质地板呼应,增加空间的温润和典雅质感。 顶部做了一个圆形切口丰富空间造型,每层搁板下面加入嵌入灯带增添空间氛围感。
卧室围绕着纯净、舒缓的睡眠氛围来打造,去除多余的装饰,顶面立面奶油色艺术涂料通刷,既干净又纯粹。背景墙不要多余的造型,一张白纸,用床体、壁灯、来作画。黑色床体以重色在清浅的空间里增加其质感,颇有几分置身于中国山水墨画中的清幽之感。
来自意大利的karttell奶油色复古壁灯,小巧的身形 雅致的造型,搭配其颜色,无论是开灯关灯,都是一把氛围利器。再搭配一个不锈钢模块组合中古床头柜,单品叠加的魅力效果1+1>2。
从主卧门进到睡眠区的过道,做拱门的造型增加空间的仪式感。卫生间的盥洗区用压花玻璃替代实墙,增加空间通透感,卫生间也能多一些些自然光感。同时在下半部分做了几公分的内凹曲面造型勾勒,和拱形门呈中心轴对称,二维与三维造型的完美呼应~
次卧以简约闲适的调调铺设,实木藤编床体的文艺自然氛围,与奶油色空间相得益彰,增加家居感温度,左侧靠墙做满柜满足其衣物收纳需求。
一把复古钓鱼落地灯、一盏奶油蚕丝吊灯以其独特的造型、温柔的光感,便可将卧室的氛围感拉起。
公卫外还有部分空间空余,两侧增设柜体用作家政收纳。延续公区奶油色一体贯穿,卫生间看着清爽又宽敞。最里面淋浴间的左边是洗烘机,洗澡换下来的衣服可直接扔进去洗,方便高效。
客服
消息
收藏
下载
最近




























