查看完整案例

收藏

下载
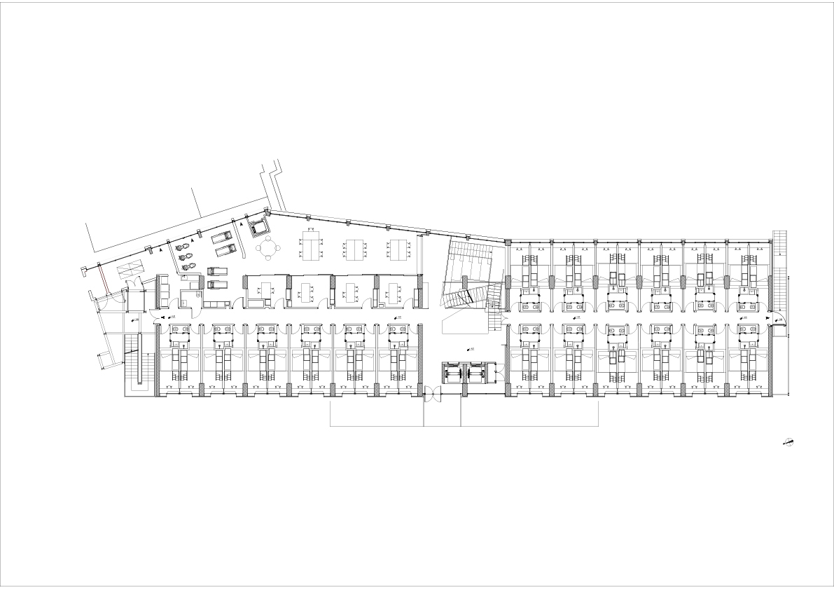
CAMPLUS San Pietro 是一所学生宿舍,位于罗马市中心,毗邻梵蒂冈城。 对一栋前疗养院的五层建筑的改造包括抗震改造以及提高其功能和能源效率。
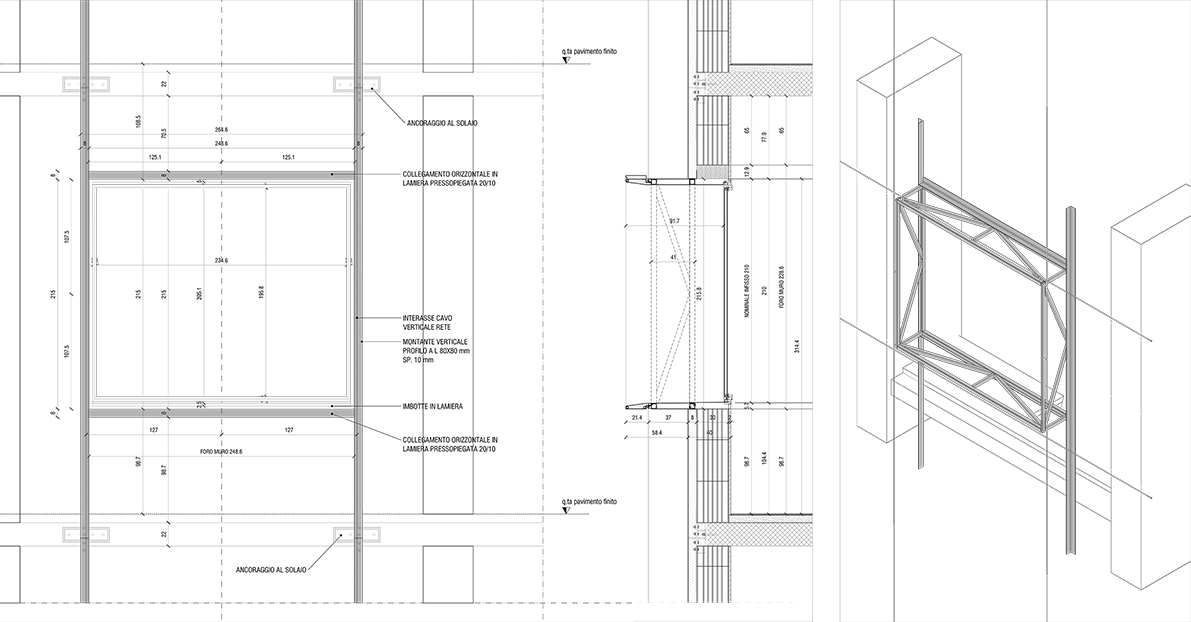
让 MEP 装置可见或部分覆盖的建筑决策,试图为结构使用的粗糙未完成材料提供优雅外观的基本方法,以及固定在墙上的加热板的最小设计和技术外观定义了 项目的简约风格。
一楼和一楼设有大厅、带辅导学习隔间的学习区、共用厨房、更衣室、自助餐厅和洗衣区。 所有公共区域都被设计成灵活的空间,以适应充满活力的学生生活所需的任何活动。 主楼梯间被拆除并在其新版本区域中完全重建,除了作为不同楼层之间的连接的主要目标之外,还提供社交互动。
该学生宿舍可为 178 名学生提供住宿,可选择单人间和双人间。 所有卧室都受益于高高的天花板,允许使用高架床作为具有不同功能的优雅金属结构的一部分。 因此,床区与房间的其他部分明显不同,给卧室一种阁楼的感觉。
建筑外部的特点是生动的立面,由不同颜色的、低维护、快速生长的常春藤类型和固定在固定在建筑结构上的金属网组成。 在其最高速度下,生活立面每年每平方米能够吸收 811 千克二氧化碳。 位于项目西侧的主要花园区域可直接从较低楼层进入,这要归功于一系列挡土墙,使建筑物的内部和外部之间可以直接对话。
停车区是根据城市可持续排水原则设计的,在车道和人行道上使用了雨水花园和排水摊铺机。 该景观项目计划通过将项目的不可渗透表面积从 44% 减少到 15% 以及种植 102 棵每年可能吸收 22088 千克二氧化碳的新树来减少全球气候变化的影响。 由于前面提到的基于自然的解决方案,每年可能会吸收大约 77 公斤的有害污染剂和建筑物的大部分碳足迹。
项目设计:Roselli Architetti Associati
项目面积:4000.2501349m²
项目年份:2021
项目摄影:Luigi Filetici
供应商: iGuzzini, ATHEA Pavimenti, Contract Arredo Design, Davide Groppi, Homes, Mc.Alf, SMEA
首席建筑师:Riccardo Roselli, Katia Scarioni
结构工程:Proges
MEP
olistudio AES
景观设计:OSA architettura e Paesaggio
灯光设计:Baldieri srl
城市规划:Bioedil Progetti
项目建造:Manager Antonio Cesareni
设计建筑师:Marta Pagliaccia, Lorenzo Miani, Gianleo Gruosso, Federico Alicanti
程序/使用/建筑功能:Student housing
项目成市:Roma
项目国家:Italy
设计师:Roselli Architetti Associati
语言:英语
客服
消息
收藏
下载
最近




























