查看完整案例

收藏

下载
-- FIRST DESIGN AESTHETIC SPACE--
麓湖.感受悠然生活/私宅设计 / 2024
Project Information
Project name:麓湖.感受悠然生活
Project area:415m²+ 113m²(garden)
Design time:2022.5
Time of completion:2023.12
Design team:成都初一美学空间设计
Design director:李海龙,张月
Design execution:罗 鑫,袁彬彬
cinematographer:又与空间摄影-普尤
主卧区域被赋予了一份沉稳安静的氛围,仿佛是一个安宁的港湾,为主人提供了一处放松心灵的空间。作为业主休憩的港湾,宽敞而舒适,柔和的灯光洒落其中,温柔而恬静,让人感受到一种舒适与安宁。
极简设计的楼梯,以仿木纹岩板为饰面,玻璃扶手如同透明的线条勾勒出空间的轮廓,将美感与功能完美融合。回型楼梯清爽的形体既实用又富有美感。阳光透过天窗洒进房间,带来了自然的温暖和生机。光线柔和地散射开来,形成一片片明亮的斑驳,投射在墙壁和地板上。每一道光束都如同温暖的丝线,轻柔地抚摸着空间,赋予了室内一种宁静而温馨的氛围。
一楼作为屋主家人更为私密的互动区,我们巧妙地将原本近一米高的建筑落差,优化为跌级而上的楼梯踏步,打破了传统的界限,让空间呈现出流动性的回形动线,增强了整个空间的开阔感与互动性。
这个空间不仅是屋主家人之间放松的互动场所,更是家庭情感的交流之地。开放式书房作为智慧与思想的休憩地,书籍静静诉说着故事,而北极熊沙发则温暖而舒适,等待着家人们的归来,为他们带来温馨与安逸。
一楼露天空间视野开阔,光线柔和,仿佛置身于大自然的怀抱中。
电动翻转百叶如同一叶巨伞轻轻展开,既能保证光影的引入,又能感受户外雨雾蒙蒙;自动升降的防蚊纱帘轻盈而柔软,仿佛一道透明的屏障将清新的空气与微风引入空间。绿植的点缀让这个空间更为轻盈活泼,为这片空间增添了一份生机与活力。
通过巧妙的形体设计和转折空间的运用,不仅增强了空间的层次感,还为使用者带来了独特的视觉和体验享受。同时突显了建筑的结构美感。
半高的电视背景墙,给人以简约雅致之感,让视线停留在静谧的画面之中;松弛感十足的沙发,宛如一片柔软的云彩,让人沉醉在舒适的怀抱中。
客餐厅被绿植轻柔地包裹着,内外景色通过窗户自然交融,仿佛让人置身于一片绿意盎然的天地间。绿植的存在,让餐厅不仅仅是一个用餐的地方,更是一处心灵休憩的港湾。
次卧不仅是一个寝室,更是一个完整的生活空间。衣帽区,卧室区,简约大方。独有的超大露台,则是次卧的一大亮点,宽阔而通风,让屋主可以在此尽情享受户外的阳光与清风,更好的感受大自然的美好。
软装产品明细
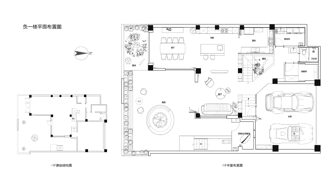
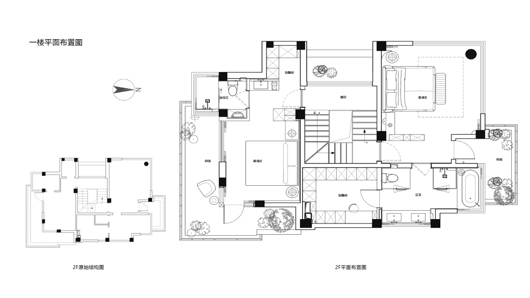
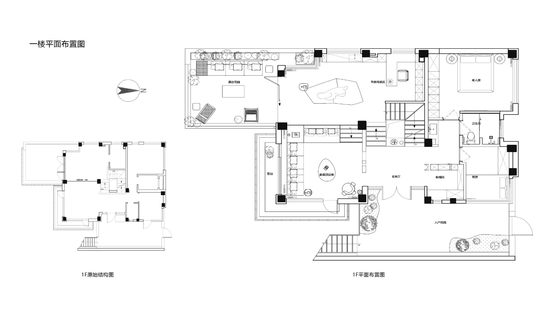
平面布置图
供应配合单位
四川大合建工;
纳莱格斯瓷砖(NANOGRESS);皇朝.自由色彩地板;三峰灯光;美景舒适家暖通;欧意科思艺术漆;良造美家定制;润禾门窗;港式梁行卫浴;滨特智慧智能;典赞家居软装
名誉奖项
2020.十间坊全国十强
2021.艾特奖银奖
2021.亚洲软装风尚大奖最佳大奖(2 套)
2021.亚洲软装风尚大奖优胜奖(2 套)
2021.金案奖全国优胜奖(2 套)
2021.ICS 国际色彩空间设计奖.年度最佳色彩空间设计奖
2021.ICS 国际色彩空间设计奖.年度色彩空间设计奖(2 套)
2021.G+AWARDS 全球精英设计大赛成都 TOP10
2021.潮设计空间 TOP100
2021.中意国际设计金指奖铜奖
2021.中意国际设计金指奖优胜奖(2 套)
2021.未来空间智装师 TOP100(2 套)
2021.红棉奖.最美雅奢空间年度最佳设计奖
2021.十大居住金奖-中国(成都)设计师设计师
2021.NCA 新商业空间大奖杰出新商业空间设计师 TOP100
2021.芒果商业类 TOP100
2021.中国家装设计百强
2021.筑巢奖普通户型专业类金奖提名
2021.WYDFWYDF 年度大中华区 100 大杰出设计
2021.金堂奖商业入围奖
2021.住小帮设计师大赛.西南赛区最佳大户型奖
2021.PchouseAward 私宅设计大奖全国 TOP100 作品奖
2022.4040UNDER40 中国(成都)设计杰出青年
2022.金案奖全国优胜奖
2022.红棉设计奖.室内设计奖
2022.亚洲青年设计之光 TOP100
2022.她设计年度优秀空间设计奖
2022.成都建筑装饰设计奖.餐饮空间实景类金奖
2022.家装中国设计百强
2022.NCA 新商业空间大奖杰出新商业空间设计师 TOP100
2022.可持续发展设计奖·年度优胜奖(室内类)
2022.新锐设计奖
2022.住小帮西南赛区中户型奖
2022.住小帮西南赛区大户型奖
2022.金堂奖年度杰出空间设计奖
2022.Pchouse Award 私宅设计大奖年度 TOP100
2022.设计本最佳商业空间奖
2022.设计本最佳商业设计奖
2023.筑巢奖入围奖
2023.4040UNDER40 中国四川设计杰出青年
其他案例
初一美学案例| 逐影.被记忆的情绪
初一美学案例 | 优雅骑士.勇敢的心
初一美学案例 | 与光共读的缱绻岁月
初一美学案例 | 星辰大海
初一美学案例 | 梦想家·诗意的生活
初一美学案例 | 屿后. 化茧成蝶
初一美学案例 | 遇见西岸
初一美学案例 | 咖啡厅+酒吧.麻省后院
私宅别墅/商业空间/民宿/软装设计
扫码咨询
设 计 咨 询:初一美学大管家
客服
消息
收藏
下载
最近









































