查看完整案例

收藏

下载
这是一个再组家庭的联排别墅改造需求。夫妻双方共有两个十几岁的孩子,以及一个蹒跚学步的宝宝。他们希望改造后的家,可以让一家五口安定下来,享受新生活。Lomax&Chi的设计师接手了这个项目,经过他们对于空间的巧妙布局,以及丰富色彩的运用,整个别墅恢复了时代特征,成为一个独立的空间,又具有家的凝聚力。
因为别墅的公共空间既要考虑这对夫妇的娱乐和休闲放松需求,也要考虑三个孩子的需求,包括在厨房烹饪的夫妇对于孩子的关注,所以设计师
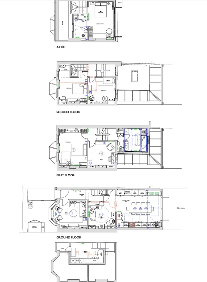
创建了一个带休息区的大型厨房用餐区,再加上一个独立的家庭客厅、一间供青少年使用的大卧室,以及一间供父母使用的平静舒适的主套房。
改造后的一楼延伸到侧院,形成一个社交厨房用餐区。因为丈夫不喜欢中岛,所以设计师在中心位置定制了一个大桌子,作为家庭生活的中心。
玻璃正好穿过背面,但并非都是门。设计师表示,整个区域太宽了,所以你不需要保留全部的落地移门,有两扇窗户可以在冬天通风,而不必打开门。座位侧的窗户要低得多,所以业主一家可以坐着看外面,而不用看门槛。”
地板是回收的维多利亚式宽橡木板。
炉子旁边的墙上有两个装锅的栏杆。
因为男主人喜欢做饭,本来想在这里挂很多铜锅,但他们还没有时间买。
这对夫妇一心想要一个手工制作的复古极简混搭厨房。设计师设计了它。壁柜的正面是有花纹的玻璃。
水龙头是铜制的,这在橱柜把手和壁灯上得到了呼应。
在水槽和炉子的对面,有一排从地板到天花板的橱柜,可以提供大量的储物空间。设计师表示,大厅尽头的第一个橱柜里放满了小女孩的玩具。然后是一个冰箱、两个1.4米宽的餐具室,其中一个装有集成微波炉。因为别墅地下室有公共设施区可以放置洗衣机,所以在厨房空间就不需要为此腾出空间。
在厨房的后院尽头,是可以换鞋的壁柜。因为业主不想在这里装地暖,所以座位下面有一个散热器,房间另一端还有几个。
走廊的檐口是原始的,
前门也是原装的,只是经过翻新。设计师嵌
入了一个大的椰皮门垫,
这样来访的客人就不会在漂亮的地板上踩土了。
设计师还将客厅门口移近前门,为客厅的角落沙发创造空间。此外,她还
修复了百叶窗,在壁龛里建造了橱柜,木制品和墙壁都漆成了精致的深绿色。
这
对夫妇希望这是一个放松的聚会空间,所以除了一张黏糊糊的沙发、大量书籍和一台大电视外,这里还有扬声器,连接到舒适的主音响系统。
烟囱是有内衬的,所以如果需要的话可以生火。
在现在的家庭浴室里,窗户被一个更耐用的窗扇取代了,团队打开了天花板,放上了回收的橡木梁,赋予了它一些特色。设计师
还在浴室旁边安装了一个单独的厕所,因为一楼没有。
两个十几岁的女儿都有一间很大的卧室——一间在二楼,一间在一楼。一面定制橱柜墙提供了大量的储物空间和一个办公桌区域,用于放置家庭作业。
所有卧室的墙壁都重新铺上了隔热层。
二楼小女孩的房间是白色和淡粉色的,清新而温馨。设计师团队在壁龛里安装了书架,创造了一个可爱的阅读角。
原来的楼梯占据了房间的很大一部分,这影响了布局和光线。设计师
从楼下的大前室(现在是最小的十几岁女儿的卧室)偷了一些空间来重新定位楼梯。
这也允许房间在楼梯间安装一扇双高的推拉窗,这有助于将光线透过房屋。
改造后的阁楼成为一个舒适的空间,这对夫妇可以在这里放松。
巨大的窗户在顶部完全打开。
由于阁楼层高较低,设计师选择了一张低床,所以当这对夫妇坐在床上时,他们的眼睛不会碰到那根横杆。
这里有很多天然材料——木材、砖、剑麻——来加强与自然的联系。
橱柜是由橱柜制造商制造的,是胡桃木贴面。
在阁楼的浴室中,一面大镜子在视觉上使空间加倍,并反射两扇屋顶窗户,增强了光线。加热垫安装在它的后面,以防止它冒热气。深色木材在这里延续,辅以拉丝黄铜五金件。
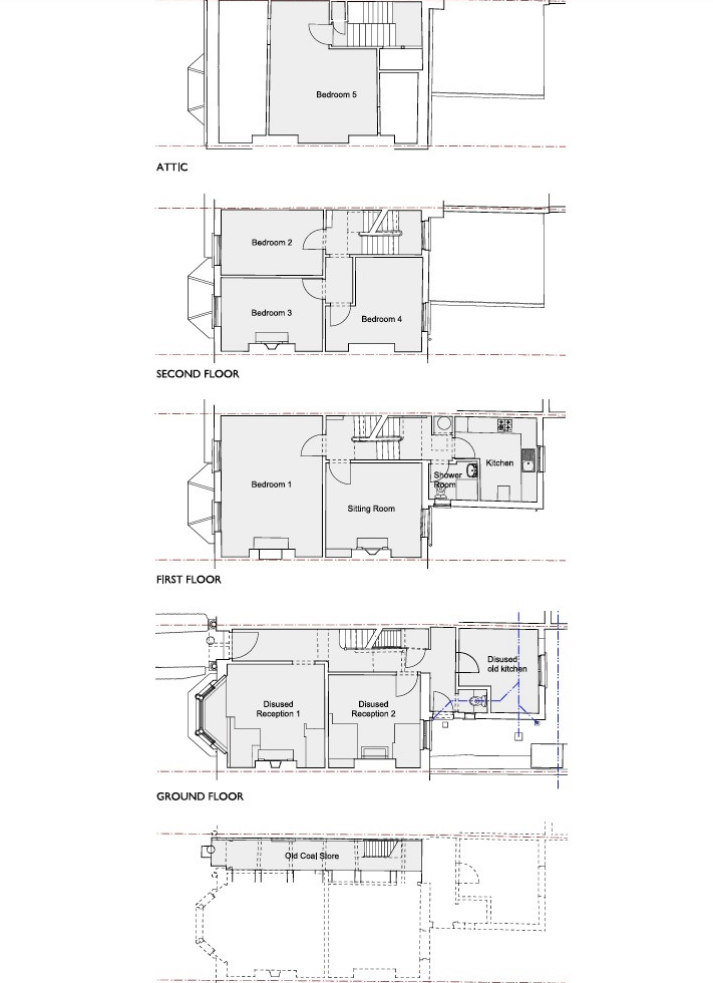
改造前
不出所料,这家人都喜欢他们的新家。这是一种令人惊叹的空间感,孩子们有自己的房间,他们可以在那里闲逛,朋友也可以过来。
项目详情:
业主信息:一对夫妇、两个十几岁女儿和一个4岁的宝宝
项目地点:
伦敦哈克尼
项目户型:四间卧室和两间浴室
设计师:
Chi Chi Lomax&Chi Baber
项目拍摄:Chris Snook
项目素材:Sarah Alcroft
投稿及
客服
消息
收藏
下载
最近























